• 手机版

    扫码体验手机版

  • 微信公众号

    扫码关注公众号

登录注册
游客您好
第三方账号登陆

[衢州] 衢州公馆16-6#100㎡现代——『向着春暖花开』

[复制链接]
发表于 2019-3-5 13:45:22 | 显示全部楼层 |阅读模式
『向着春暖花开』

格堂装饰为您全程记录装修全过程!

小区名称
衢州公馆
房屋面积
100㎡
户型结构
套房
装修风格
现代
装修方式
全包
装修造价
查看请联系客服万元
设计师
毛工
项目经理
周工
装修公司
格堂装饰
完工实景
完工实景
水电全景
水电全景
VR全景
VR全景
设计说明
在喧闹的钢筋水泥丛林里寻找属于自己的那份安宁,向着春暖花开,还有远方!
更多信息

回复

使用道具 举报

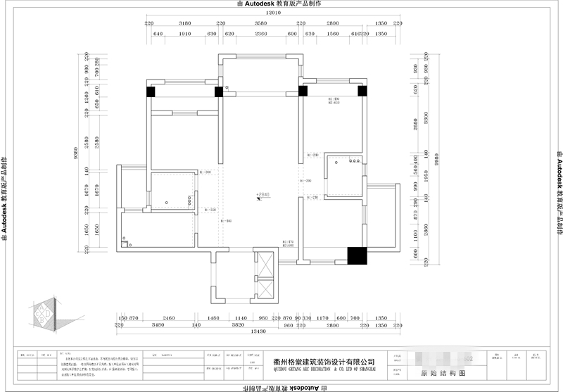
 楼主| 发表于 2019-3-5 13:48:01 | 显示全部楼层

原始结构图
b336de837d3162eebcc239482912f01.jpg
回复 支持 反对

使用道具 举报

 楼主| 发表于 2019-3-5 13:48:55 | 显示全部楼层

平面布置图
6792bdedcb042ab494db58737940fb9.jpg
回复 支持 反对

使用道具 举报

 楼主| 发表于 2019-3-5 16:30:16 | 显示全部楼层

开工前大门保护到位。
f5f258a8f5068a9729a4bde442016c2.jpg

IMG20190304140758.jpg

IMG20190304140807.jpg
回复 支持 反对

使用道具 举报

 楼主| 发表于 2019-3-5 16:31:12 | 显示全部楼层
电梯保护、地面保护,防止后期磕碰到
IMG20190304140717.jpg

IMG20190304140726.jpg
回复 支持 反对

使用道具 举报

 楼主| 发表于 2019-3-5 16:32:19 | 显示全部楼层

门槛保护到位,防止后期磕碰。
IMG20190304140818.jpg
回复 支持 反对

使用道具 举报

 楼主| 发表于 2019-3-5 16:33:07 | 显示全部楼层

简易马桶到位,要讲究卫生哦。
IMG20190304140828.jpg

IMG20190304140832.jpg
回复 支持 反对

使用道具 举报

 楼主| 发表于 2019-3-5 16:33:41 | 显示全部楼层

煤气表保护到位。
IMG20190304140845.jpg
回复 支持 反对

使用道具 举报

 楼主| 发表于 2019-3-5 16:34:46 | 显示全部楼层
本帖最后由 格堂月红 于 2019-3-5 16:36 编辑

横幅挂好、四大工种的施工规范牌,展示到位、鲜花多准备好了,只等吉时。
2a20ab10369f8c43931ee370bd56f53.jpg
回复 支持 反对

使用道具 举报

 楼主| 发表于 2019-3-5 16:40:23 | 显示全部楼层

吉时到,开工了,恭祝业主大人开工大吉。

170eeaaf180c0fba43ed8dac1f7e79e.jpg
回复 支持 反对

使用道具 举报

您需要登录后才可以回帖 登录 | 立即注册

本版积分规则

全国统一客服电话
0570-8028505

24x7小时免费咨询

  • 官方在线客服

    QQ客服:小西

    点击交谈

    QQ客服:良子

    点击交谈

    QQ客服:闵月

    点击交谈
  • 衢州市柯城区财富中心3号楼2楼

  • 衢州格堂装饰有限公司

  • 扫一扫关注官方微信

    获取一手特惠信息

快速回复 返回顶部 返回列表