[衢州] 府前一号6-1#186㎡美式——舒适 |
|
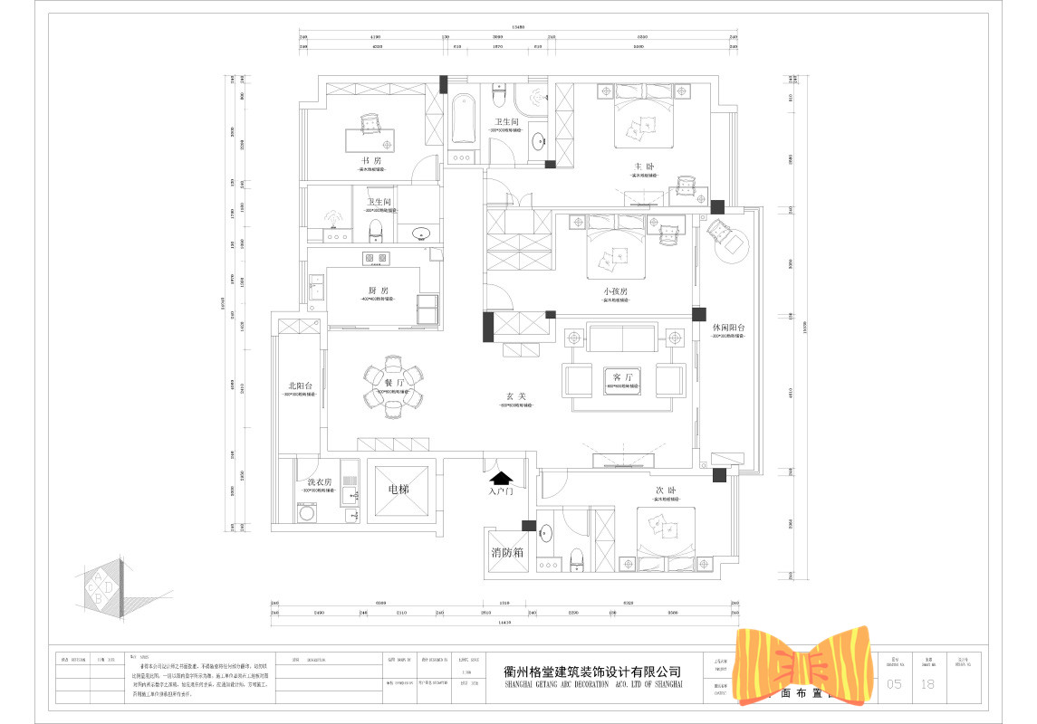
府前一号6-1#190㎡美式——舒适
格堂装饰为您全程记录装修全过程! 设计说明
这是一个拥有大阳台的四房户型,客餐厅连接在一起,几乎每个房间采光都不错。我们首先将设计重点放置在格局重塑上面,结合屋主的使用习惯和居住人员,舍去了原本第三个房间的位置做了书房兼衣帽间。在原结构上扩大了厨房,把双开门的大冰箱安置了在厨房。主任也喜欢有点小浪漫的美式风格。空间足够的情况下我们极大的增加了储物功能,保留大阳台沐浴阳光,感受生活。
更多信息
| |


在线客服
微信客服
关注有礼