• 手机版

    扫码体验手机版

  • 微信公众号

    扫码关注公众号

登录注册
游客您好
第三方账号登陆

[衢州] 衢州公馆21-11#125㎡简约——精简生活

[复制链接]
发表于 2019-2-20 11:51:12 | 显示全部楼层 |阅读模式
精简生活

格堂装饰为您全程记录装修全过程!

小区名称
衢州公馆
房屋面积
125㎡
户型结构
套房
装修风格
现代
装修方式
半包
装修造价
查看请联系客服万元
设计师
胡工
项目经理
余工
装修公司
格堂装饰
完工实景
完工实景
水电全景
水电全景
VR全景
VR全景
设计说明
最大限度保持了原结构四房的优势,开放式的书房融入客餐厅,将空间合理优化,简明的隔断,丰富了空间的线条感,场景变得不再单调。如此,拥有一个简洁明亮的新家,载着一屋欢声笑语,满足了所有关于美好生活的想象。
更多信息

效果图
2b874b028f9bc8f821147574793f28a.jpg
回复

使用道具 举报

 楼主| 发表于 2019-3-18 10:11:07 | 显示全部楼层
项目监理和业主正在卫生间水电验收。
IMG20190315125300.jpg
墙面水管布置横平竖直,卫生间水管全部走墙,离地面40-60厘米之间,水管接头外接,能及时发现漏水。
IMG20190315125305.jpg
墙面冷热水管内牙接头要求与墙面砖基本持平,内凹不得大于1厘米。
IMG20190315123027.jpg

IMG20190315123100.jpg
回复 支持 1 反对 0

使用道具 举报

 楼主| 发表于 2019-3-18 10:06:12 | 显示全部楼层
弱电走地:格堂装饰的弱电走地是德系工艺重要环节,最大化减少室内信号干扰,弱电走低从地面开槽,弱电分支到每一个房间,井然有序。
IMG20190315123334.jpg
地面线管并排2根以上管卡错位顺钉,间隙均匀
IMG20190315123343.jpg
回复 支持 1 反对 0

使用道具 举报

 楼主| 发表于 2019-2-20 11:52:26 | 显示全部楼层

原始结构图
4912ebf225bbbfcc4000af5dde6e349.jpg
回复 支持 反对

使用道具 举报

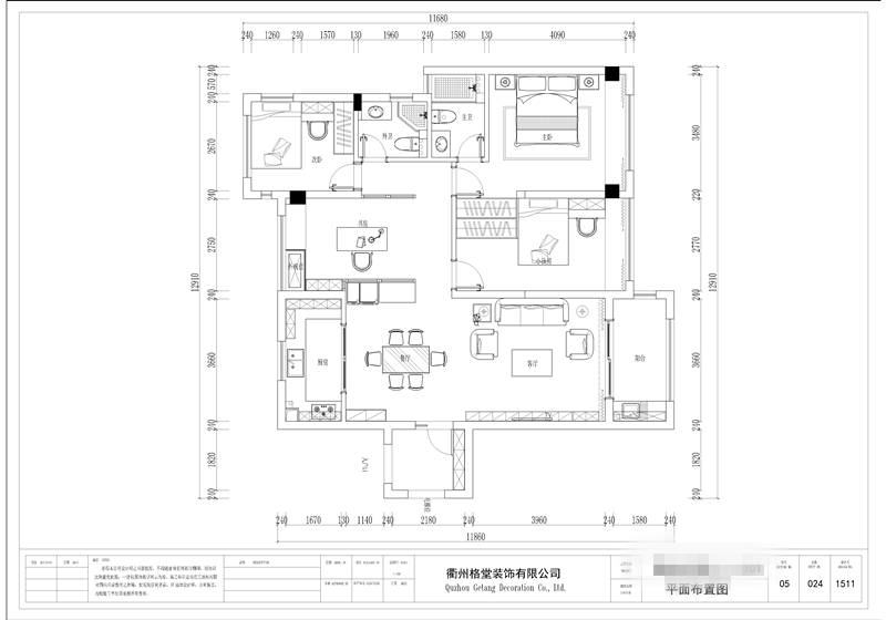
 楼主| 发表于 2019-2-20 11:53:03 | 显示全部楼层

平面布置图
c4c775afc0b80a079d8b5b5231879b4.jpg
回复 支持 反对

使用道具 举报

 楼主| 发表于 2019-2-20 11:56:55 | 显示全部楼层

开工前大门保护防止后期磕碰到。
IMG20190220090839.jpg

IMG20190220091307.jpg

IMG20190220092001.jpg
回复 支持 反对

使用道具 举报

 楼主| 发表于 2019-2-20 13:24:23 | 显示全部楼层

煤气表保护到位。
IMG20190220091721.jpg

IMG20190220091751.jpg
回复 支持 反对

使用道具 举报

 楼主| 发表于 2019-2-20 13:26:15 | 显示全部楼层
水管用格堂专用保护盖保护,防止砂石堵塞管道
IMG20190220091804.jpg

IMG20190220091740.jpg

IMG20190220091829.jpg

IMG20190220091856.jpg

IMG20190220091916.jpg
回复 支持 反对

使用道具 举报

 楼主| 发表于 2019-2-20 13:28:24 | 显示全部楼层

格堂简易马桶到位。
IMG20190220091845.jpg

IMG20190220091850.jpg
回复 支持 反对

使用道具 举报

 楼主| 发表于 2019-2-20 13:29:48 | 显示全部楼层

师傅正在准备开工用的桌子。
IMG20190220090128.jpg
回复 支持 反对

使用道具 举报

 楼主| 发表于 2019-2-20 13:31:14 | 显示全部楼层

桌子铺上红彤彤的桌布,横幅挂起来。
IMG20190220090339.jpg

IMG20190220090355.jpg

IMG20190220090420.jpg
回复 支持 反对

使用道具 举报

 楼主| 发表于 2019-2-20 13:32:26 | 显示全部楼层
四大工种的施工规范牌,同样展示到位,方便检查和验收。进度控制表,使工地进度按预定的目标进行,确保按期完工。施工铭牌上标示着设计师、项目经理、施工工人的姓名和电话,方便业主随时监督。
IMG20190220090540.jpg

IMG20190220090814.jpg

IMG20190220091222.jpg
回复 支持 反对

使用道具 举报

您需要登录后才可以回帖 登录 | 立即注册

本版积分规则

全国统一客服电话
0570-8028505

24x7小时免费咨询

  • 官方在线客服

    QQ客服:小西

    点击交谈

    QQ客服:良子

    点击交谈

    QQ客服:闵月

    点击交谈
  • 衢州市柯城区财富中心3号楼2楼

  • 衢州格堂装饰有限公司

  • 扫一扫关注官方微信

    获取一手特惠信息

快速回复 返回顶部 返回列表