• 手机版

    扫码体验手机版

  • 微信公众号

    扫码关注公众号

登录注册
游客您好
第三方账号登陆

翡翠湾2-9#251㎡新中式——何以思如意

[复制链接]
发表于 2019-2-13 14:18:54 | 显示全部楼层 |阅读模式
翡翠湾2-9#251㎡新中式——何以思如意

格堂装饰实景完工案例欣赏!

小区名称
翡翠湾
房屋面积
251㎡
户型结构
复室
装修风格
新中式
装修方式
半包
装修造价
查看请联系客服万元
设计师
何工
项目经理
余工
装修公司
格堂装饰
装修过程
装修日记
设计说明
本案设计采用新中式的设计风格,无论是天花还是地面的线条都是用线条的勾勒,整体对称的形式体现中式神韵。中式元素与现代元素的巧妙结合,呈现出雅韵,气韵,意境的居住空间,摒弃了复杂的造型,用线条做装饰,叠出层次,早闹市中得一高雅悠静的居所。
更多信息
1L6A1066.jpg
回复

使用道具 举报

 楼主| 发表于 2019-2-13 14:19:14 | 显示全部楼层
原始结构图▼▼▼

153138mm0fbmfm0vvx2eg4.jpg


回复 支持 反对

使用道具 举报

 楼主| 发表于 2019-2-13 14:19:36 | 显示全部楼层
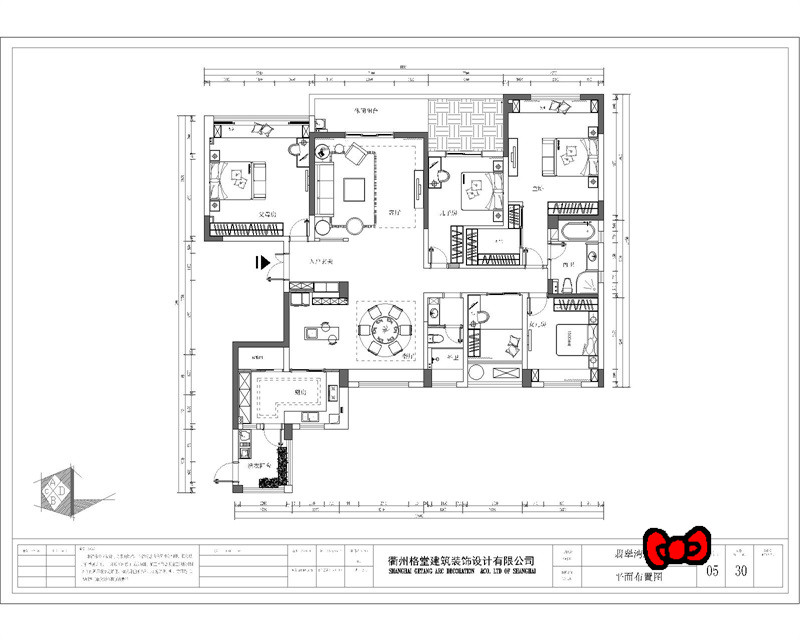
平面布置图▼▼▼

153205n2e5exx76jqzjefj.jpg


回复 支持 反对

使用道具 举报

 楼主| 发表于 2019-2-13 14:20:31 | 显示全部楼层
客厅▼▼▼

1L6A1058.jpg

1L6A1062.jpg

1L6A1066.jpg

1L6A1074.jpg

1L6A1078.jpg


回复 支持 反对

使用道具 举报

 楼主| 发表于 2019-2-13 14:21:02 | 显示全部楼层
餐厅▼▼▼

1L6A1024.jpg

1L6A1030.jpg

1L6A1035.jpg

1L6A1044.jpg

1L6A1048.jpg

1L6A1052.jpg

1L6A1054.jpg


回复 支持 反对

使用道具 举报

 楼主| 发表于 2019-2-13 14:21:48 | 显示全部楼层
主卧▼▼▼

1L6A0982.jpg

1L6A0986.jpg

1L6A0995.jpg

1L6A1008.jpg

1L6A1017.jpg


回复 支持 反对

使用道具 举报

 楼主| 发表于 2019-2-13 14:24:39 | 显示全部楼层
小孩房▼▼▼

1L6A1087.jpg

1L6A1091.jpg


回复 支持 反对

使用道具 举报

 楼主| 发表于 2019-2-13 14:26:02 | 显示全部楼层
次卧▼▼▼

1L6A1115.jpg

回复 支持 反对

使用道具 举报

 楼主| 发表于 2019-2-13 14:26:29 | 显示全部楼层
客房▼▼▼

1L6A1153.jpg

1L6A1158.jpg

1L6A1161.jpg


回复 支持 反对

使用道具 举报

 楼主| 发表于 2019-2-13 14:27:03 | 显示全部楼层
厨房▼▼▼

1L6A1174.jpg

1L6A1176.jpg


回复 支持 反对

使用道具 举报

您需要登录后才可以回帖 登录 | 立即注册

本版积分规则

全国统一客服电话
0570-8028505

24x7小时免费咨询

  • 官方在线客服

    QQ客服:小西

    点击交谈

    QQ客服:良子

    点击交谈

    QQ客服:闵月

    点击交谈
  • 衢州市柯城区财富中心3号楼2楼

  • 衢州格堂装饰有限公司

  • 扫一扫关注官方微信

    获取一手特惠信息

快速回复 返回顶部 返回列表