• 手机版

    扫码体验手机版

  • 微信公众号

    扫码关注公众号

登录注册
游客您好
第三方账号登陆

吾悦华府5-1#169㎡美式,一种休闲式的浪漫

[复制链接]
发表于 2019-2-13 11:11:54 | 显示全部楼层 |阅读模式
吾悦华府5-1#169㎡美式,一种休闲式的浪漫

格堂装饰实景完工案例欣赏!

小区名称
吾悦华府
房屋面积
169㎡
户型结构
套房
装修风格
美式
装修方式
半包
装修造价
查看请联系客服万元
设计师
余工
项目经理
余工
装修公司
格堂装饰
装修过程
装修日记
设计说明
以米色为大背景,精心挑选的美式高档家具,让整个客厅更加气势恢宏。精雕细琢的藏蓝真皮沙发一贯的奢华气派,美丽的鲜花点缀其中,如艺术品般珍藏。
更多信息
本帖最后由 格堂设计 于 2019-2-16 14:46 编辑

7E1A0747.jpg
回复

使用道具 举报

 楼主| 发表于 2019-2-13 11:12:20 | 显示全部楼层
原始结构图▼▼▼

85e41e03cd7a0c101cd9a1fb76c928d.jpg


回复 支持 反对

使用道具 举报

 楼主| 发表于 2019-2-13 11:12:39 | 显示全部楼层
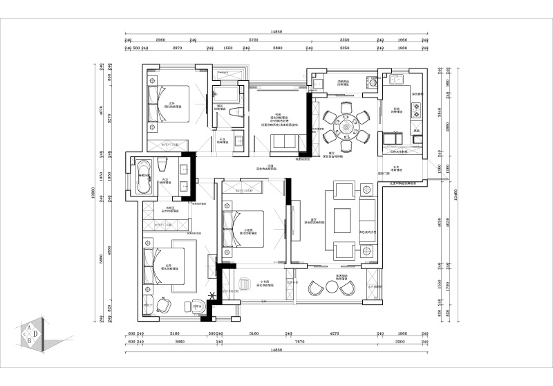
平面布置图▼▼▼

d1f48f6b34bf92f276e9c39950239eb.jpg


回复 支持 反对

使用道具 举报

 楼主| 发表于 2019-2-13 11:13:09 | 显示全部楼层
客厅▼▼▼

7E1A0745.jpg

7E1A0746.jpg

7E1A0747.jpg

7E1A0748.jpg

7E1A0750.jpg


回复 支持 反对

使用道具 举报

 楼主| 发表于 2019-2-13 11:13:35 | 显示全部楼层
餐厅▼▼▼

7E1A0769.jpg

7E1A0773.jpg

7E1A0774.jpg

7E1A0777.jpg

7E1A0783.jpg


回复 支持 反对

使用道具 举报

 楼主| 发表于 2019-2-13 11:14:00 | 显示全部楼层
厨房▼▼▼

7E1A0786.jpg


回复 支持 反对

使用道具 举报

 楼主| 发表于 2019-2-13 11:14:25 | 显示全部楼层
主卫▼▼▼

7E1A0801.jpg


回复 支持 反对

使用道具 举报

 楼主| 发表于 2019-2-13 11:14:45 | 显示全部楼层
干区▼▼▼

7E1A0805副本.jpg


回复 支持 反对

使用道具 举报

 楼主| 发表于 2019-2-13 11:15:26 | 显示全部楼层
玄关▼▼▼
7E1A0761.jpg

7E1A0754.jpg




回复 支持 反对

使用道具 举报

 楼主| 发表于 2019-2-13 11:16:28 | 显示全部楼层
主卧▼▼▼

7E1A0820.jpg

7E1A0823.jpg

7E1A0826.jpg

7E1A0837.jpg


回复 支持 反对

使用道具 举报

您需要登录后才可以回帖 登录 | 立即注册

本版积分规则

全国统一客服电话
0570-8028505

24x7小时免费咨询

  • 官方在线客服

    QQ客服:小西

    点击交谈

    QQ客服:良子

    点击交谈

    QQ客服:闵月

    点击交谈
  • 衢州市柯城区财富中心3号楼2楼

  • 衢州格堂装饰有限公司

  • 扫一扫关注官方微信

    获取一手特惠信息

快速回复 返回顶部 返回列表