• 手机版

    扫码体验手机版

  • 微信公众号

    扫码关注公众号

登录注册
游客您好
第三方账号登陆

龙游子鸣小区2#84㎡北欧————午后光影

[复制链接]
发表于 2019-2-13 10:25:45 | 显示全部楼层 |阅读模式
龙游子鸣小区2#84㎡北欧————午后光影

格堂装饰实景完工案例欣赏!

小区名称
子鸣小区
房屋面积
84㎡
户型结构
套房
装修风格
北欧
装修方式
半包
装修造价
查看请联系客服万元
设计师
郑工
项目经理
张工
装修公司
格堂装饰
装修过程
装修日记
设计说明
休闲布艺沙发,缤纷抱枕,趣味的装饰画,点缀一抹清新的绿色,塑造出北欧风的简洁优雅。
更多信息
本帖最后由 格堂方俊 于 2019-2-13 10:51 编辑

7E1A1092 拷贝.jpg
回复

使用道具 举报

 楼主| 发表于 2019-2-13 10:28:57 | 显示全部楼层
本帖最后由 格堂方俊 于 2019-2-13 10:30 编辑

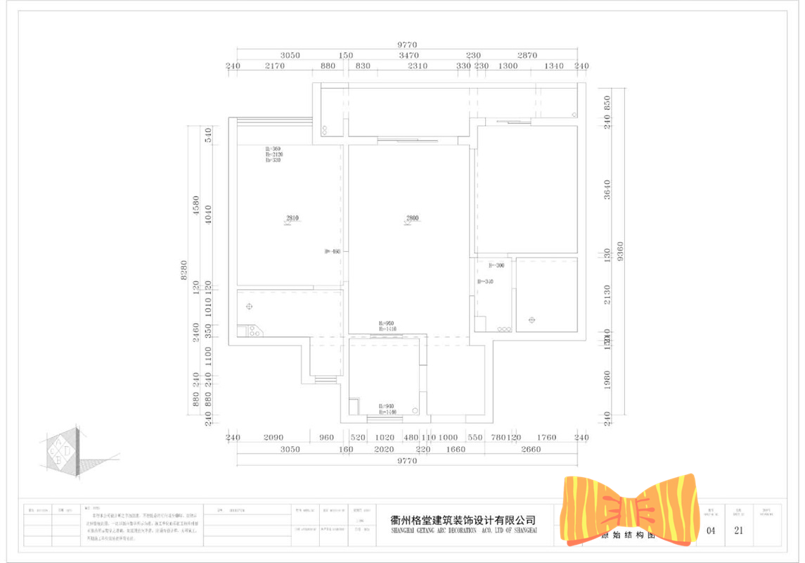
                                                                                              原始结构图▼▼▼



8fd5c84c8bb1266b8416c197dffc662_副本.jpg

回复 支持 反对

使用道具 举报

 楼主| 发表于 2019-2-13 10:31:34 | 显示全部楼层
平面布置图▼▼▼

84b40b8d53407aa26c3b4d10e4499eb_副本.jpg


回复 支持 反对

使用道具 举报

 楼主| 发表于 2019-2-13 10:32:19 | 显示全部楼层
客厅▼▼▼

7E1A1092 拷贝.jpg

7E1A1093 拷贝.jpg

7E1A1097 拷贝.jpg

7E1A1098 拷贝.jpg

7E1A1099 拷贝.jpg


回复 支持 反对

使用道具 举报

 楼主| 发表于 2019-2-13 10:34:15 | 显示全部楼层
餐厅▼▼▼

7E1A1103 拷贝.jpg

7E1A1104 拷贝.jpg

7E1A1109 拷贝.jpg

7E1A1110 拷贝.jpg
7E1A1114 拷贝.jpg


回复 支持 反对

使用道具 举报

 楼主| 发表于 2019-2-13 10:35:45 | 显示全部楼层
厨房▼▼▼

7E1A1130 拷贝.jpg


回复 支持 反对

使用道具 举报

 楼主| 发表于 2019-2-13 10:36:31 | 显示全部楼层
主卧▼▼▼

7E1A1129 拷贝.jpg


回复 支持 反对

使用道具 举报

 楼主| 发表于 2019-2-13 10:37:28 | 显示全部楼层
次卧▼▼▼

7E1A1119 拷贝.jpg

7E1A1122 拷贝.jpg

7E1A1124 拷贝.jpg


回复 支持 反对

使用道具 举报

 楼主| 发表于 2019-2-13 10:38:03 | 显示全部楼层
主卫▼▼▼

7E1A1118 拷贝.jpg


回复 支持 反对

使用道具 举报

 楼主| 发表于 2019-2-13 10:38:42 | 显示全部楼层
干区▼▼▼

7E1A1117 拷贝.jpg


回复 支持 反对

使用道具 举报

您需要登录后才可以回帖 登录 | 立即注册

本版积分规则

全国统一客服电话
0570-8028505

24x7小时免费咨询

  • 官方在线客服

    QQ客服:小西

    点击交谈

    QQ客服:良子

    点击交谈

    QQ客服:闵月

    点击交谈
  • 衢州市柯城区财富中心3号楼2楼

  • 衢州格堂装饰有限公司

  • 扫一扫关注官方微信

    获取一手特惠信息

快速回复 返回顶部 返回列表