• 手机版

    扫码体验手机版

  • 微信公众号

    扫码关注公众号

登录注册
游客您好
第三方账号登陆

[衢州] 府前一号11-1#246㎡新中式——揽一城繁华似锦,享一室静世芳华

[复制链接]
发表于 2019-1-16 15:48:20 | 显示全部楼层 |阅读模式
揽一城繁华似锦,享一室静世芳华

格堂装饰为您全程记录装修全过程!

小区名称
府前一号
房屋面积
246㎡
户型结构
套房
装修风格
新中式
装修方式
半包
装修造价
查看请联系客服万元
设计师
周工
项目经理
周工
装修公司
格堂装饰
完工实景
完工实景
水电全景
水电全景
VR全景
VR全景
设计说明
本案是府前一号250㎡的大平层,毗邻市府,面朝西区大草原。外部景观优美。
通过长达3个月的沟通与修改,最终确定了采用现代装饰的手法,中式元素的点缀。
更多信息
效果图
mmexport1547609057330.jpg
回复

使用道具 举报

 楼主| 发表于 2019-1-16 15:50:51 | 显示全部楼层

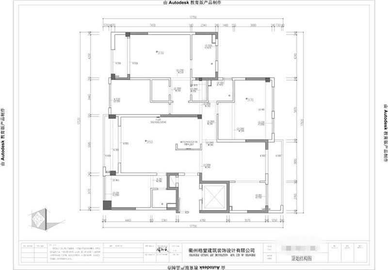
原始结构图
mmexport1547609053754.jpg
回复 支持 反对

使用道具 举报

 楼主| 发表于 2019-1-16 15:51:51 | 显示全部楼层

平面布置图
mmexport1547609047221.jpg
回复 支持 反对

使用道具 举报

 楼主| 发表于 2019-1-16 15:54:14 | 显示全部楼层

开工前大门先要保护起来,防止后期磕碰哦!
IMG20190116101347.jpg

IMG20190116101414.jpg

IMG20190116101418.jpg
回复 支持 反对

使用道具 举报

 楼主| 发表于 2019-1-16 15:55:16 | 显示全部楼层

煤气表也要保护好
IMG20190116104054.jpg
回复 支持 反对

使用道具 举报

 楼主| 发表于 2019-1-16 15:56:34 | 显示全部楼层

临时马桶安装到位,要讲究卫生哟!
IMG20190116104113.jpg

IMG20190116104118.jpg
回复 支持 反对

使用道具 举报

 楼主| 发表于 2019-1-16 15:57:45 | 显示全部楼层

水管用格堂专用保护盖保护,防止砂石堵塞管道。
IMG20190116104108.jpg

IMG20190116104133.jpg

IMG20190116104138.jpg

IMG20190116104141.jpg

IMG20190116104146.jpg
回复 支持 反对

使用道具 举报

 楼主| 发表于 2019-1-16 16:00:54 | 显示全部楼层

设计师正在准备桌子,美女们也来帮忙啦!
IMG20190116100921.jpg

IMG20190116100945.jpg
铺上红彤彤的桌布,准备开工。
IMG20190116100957.jpg
回复 支持 反对

使用道具 举报

 楼主| 发表于 2019-1-16 16:03:35 | 显示全部楼层

项目经理和师傅正在钉开工横幅。
IMG20190116101036.jpg

IMG20190116101040.jpg

IMG20190116101100.jpg
回复 支持 反对

使用道具 举报

 楼主| 发表于 2019-1-16 16:05:05 | 显示全部楼层

公司施工牌挂好了,四大工种的施工规范牌,同样展示到位,方便检查和验收。进度控制表,使工地进度按预定的目标进行,确保按期完工。施工铭牌上标示着设计师、项目经理、施工工人的姓名和电话,方便业主随时监督。
IMG20190116101120.jpg

IMG20190116101131.jpg

IMG20190116101318.jpg
回复 支持 反对

使用道具 举报

您需要登录后才可以回帖 登录 | 立即注册

本版积分规则

全国统一客服电话
0570-8028505

24x7小时免费咨询

  • 官方在线客服

    QQ客服:小西

    点击交谈

    QQ客服:良子

    点击交谈

    QQ客服:闵月

    点击交谈
  • 衢州市柯城区财富中心3号楼2楼

  • 衢州格堂装饰有限公司

  • 扫一扫关注官方微信

    获取一手特惠信息

快速回复 返回顶部 返回列表