• 手机版

    扫码体验手机版

  • 微信公众号

    扫码关注公众号

登录注册
游客您好
第三方账号登陆

[衢州] 吾悦华府6-1#112㎡美式——美式清新,这就是家的味道

[复制链接]
发表于 2018-11-29 15:39:39 | 显示全部楼层 |阅读模式
吾悦华府6-1#112㎡美式——美式清新,这就是家的味道

格堂装饰为您全程记录装修全过程!

小区名称
吾悦华府
房屋面积
112㎡
户型结构
套房
装修风格
美式
装修方式
全包
装修造价
查看请联系客服万元
设计师
王工
项目经理
余工
装修公司
格堂装饰
完工实景
完工实景
水电全景
水电全景
VR全景
VR全景
设计说明
清晨的阳光洒进房间角落
从梦中醒来
睁开眼,默念早安
一杯牛奶
两片吐司
安静地咀嚼
闲适的早餐
原来
幸福如此简单!
更多信息


612771509872902695.jpg
回复

使用道具 举报

 楼主| 发表于 2018-11-29 15:43:47 | 显示全部楼层

原始结构图
23162586683021757_副本.jpg
回复 支持 反对

使用道具 举报

 楼主| 发表于 2018-11-29 15:44:16 | 显示全部楼层

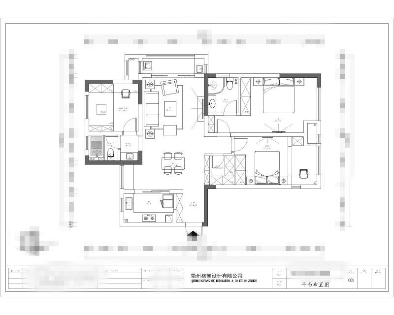
平面布置图
586760482627481985_副本.jpg
回复 支持 反对

使用道具 举报

 楼主| 发表于 2018-11-30 09:23:40 | 显示全部楼层

煤气表也要保护起来哦!
IMG_1053.JPG
回复 支持 反对

使用道具 举报

 楼主| 发表于 2018-11-30 09:25:11 | 显示全部楼层

临时马桶安装好了,要讲究卫生哦!
IMG_1081.JPG
回复 支持 反对

使用道具 举报

 楼主| 发表于 2018-11-30 09:26:32 | 显示全部楼层

四大工种的施工规范牌,同样展示到位,方便检查和验收。进度控制表,使工地进度按预定的目标进行,确保按期完工。施工铭牌上标示着设计师、项目经理、施工工人的姓名和电话,方便业主随时监督。

IMG_1050.JPG
回复 支持 反对

使用道具 举报

 楼主| 发表于 2018-11-30 09:28:03 | 显示全部楼层

礼花也准备好了。
IMG_1052.JPG
回复 支持 反对

使用道具 举报

 楼主| 发表于 2018-11-30 09:29:40 | 显示全部楼层

一切准备就绪,等待开工吉时喽!
IMG_1055.JPG
回复 支持 反对

使用道具 举报

 楼主| 发表于 2018-11-30 09:33:01 | 显示全部楼层

开工吉时已到,恭祝业主大人开工大吉!
IMG_1057_副本.jpg
回复 支持 反对

使用道具 举报

 楼主| 发表于 2018-11-30 09:34:23 | 显示全部楼层

开工第一锤由业主大人亲自来哦!
IMG_1059_副本.jpg
回复 支持 反对

使用道具 举报

您需要登录后才可以回帖 登录 | 立即注册

本版积分规则

全国统一客服电话
0570-8028505

24x7小时免费咨询

  • 官方在线客服

    QQ客服:小西

    点击交谈

    QQ客服:良子

    点击交谈

    QQ客服:闵月

    点击交谈
  • 衢州市柯城区财富中心3号楼2楼

  • 衢州格堂装饰有限公司

  • 扫一扫关注官方微信

    获取一手特惠信息

快速回复 返回顶部 返回列表