• 手机版

    扫码体验手机版

  • 微信公众号

    扫码关注公众号

登录注册
游客您好
第三方账号登陆

[常山] 常山紫荆花园26-1-18#104㎡北欧——初秋之家,静享慢时光

[复制链接]
发表于 2018-10-28 16:11:07 | 显示全部楼层 |阅读模式
常山紫荆花园26-1-18#104㎡北欧——初秋之家,静享慢时光

格堂装饰为您全程记录装修全过程!

小区名称
紫荆花园
房屋面积
104㎡
户型结构
套房
装修风格
北欧
装修方式
全包
装修造价
查看请联系客服万元
设计师
周工
项目经理
王工
装修公司
格堂装饰
完工实景
完工实景
水电全景
水电全景
VR全景
VR全景
设计说明
一尘不染的空气,和没有污染的情绪,在这个安静的空间,被放大了无数倍。或休闲小憩、或谈天说地,都不辜负这个醉人的秋季......
更多信息
本帖最后由 格堂小丽 于 2023-8-26 10:33 编辑

效果图
202376572925420046 (1).jpg
回复

使用道具 举报

 楼主| 发表于 2018-10-28 16:12:37 | 显示全部楼层
本帖最后由 格堂小丽 于 2018-10-31 10:10 编辑


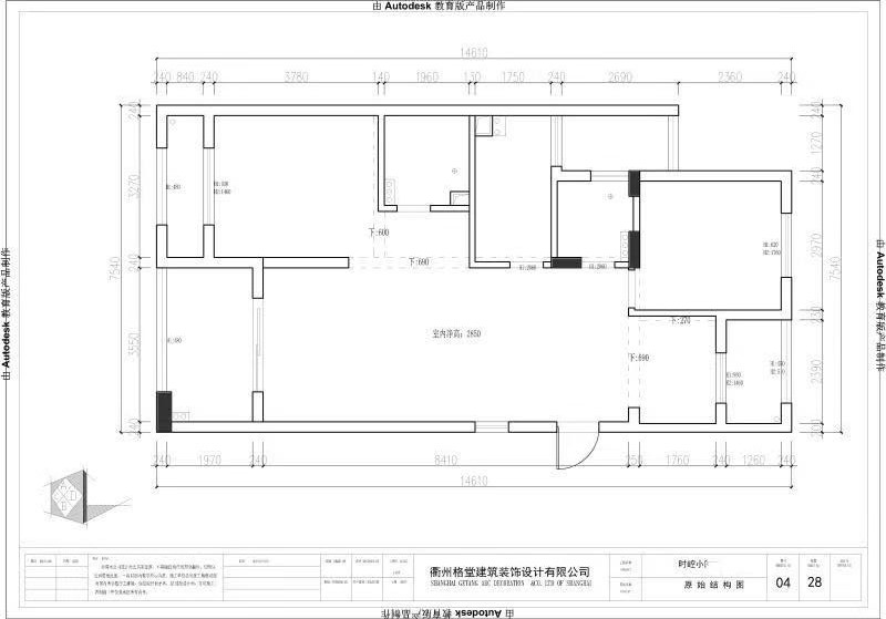
原始结构图

121226552799080625.jpg



回复 支持 反对

使用道具 举报

 楼主| 发表于 2018-10-28 16:12:54 | 显示全部楼层
本帖最后由 格堂小丽 于 2018-10-31 10:10 编辑


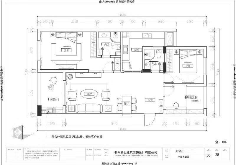
平面布置图


401462261517672217.jpg



回复 支持 反对

使用道具 举报

 楼主| 发表于 2018-10-28 16:13:18 | 显示全部楼层
本帖最后由 格堂小丽 于 2018-10-31 10:11 编辑


回复

使用道具 举报

 楼主| 发表于 2018-10-28 16:13:39 | 显示全部楼层
本帖最后由 格堂小丽 于 2018-10-31 10:11 编辑


回复

使用道具 举报

 楼主| 发表于 2018-10-28 16:14:04 | 显示全部楼层
本帖最后由 格堂小丽 于 2018-10-31 10:11 编辑


回复

使用道具 举报

 楼主| 发表于 2018-10-28 16:19:07 | 显示全部楼层


门套保护做好,防止后期施工磕碰


167278494905934129.jpg


833621891134848749.jpg


451277344219856638.jpg



回复 支持 反对

使用道具 举报

 楼主| 发表于 2018-10-28 16:20:15 | 显示全部楼层


下水管道用格堂专用保护盖保护好,防止后期施工泥沙进入


70610745064725602.jpg


379401501848635041.jpg



回复 支持 反对

使用道具 举报

 楼主| 发表于 2018-10-28 16:20:44 | 显示全部楼层


格堂专用简易马桶安装到位


413455302740781165.jpg



回复 支持 反对

使用道具 举报

 楼主| 发表于 2018-10-28 16:21:27 | 显示全部楼层


恭祝业主开工大吉、大吉大利!


885220585796551875.jpg



回复 支持 反对

使用道具 举报

您需要登录后才可以回帖 登录 | 立即注册

本版积分规则

全国统一客服电话
0570-8028505

24x7小时免费咨询

  • 官方在线客服

    QQ客服:小西

    点击交谈

    QQ客服:良子

    点击交谈

    QQ客服:闵月

    点击交谈
  • 衢州市柯城区财富中心3号楼2楼

  • 衢州格堂装饰有限公司

  • 扫一扫关注官方微信

    获取一手特惠信息

快速回复 返回顶部 返回列表