[龙游] 龙游观澜一号B18-2#170新中式——中式生活 |
|
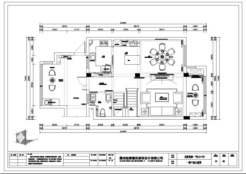
龙游观澜一号B18-2-707#170新中式——中式生活
格堂装饰为您全程记录装修全过程! 设计说明
本案在设计上着眼于让户型改后整体空间尺寸利用最大化的原则,解决了进门过道狭窄空间利用率不高的问题。同时把客厅和阳台打通设置一块休闲区域,让整个客厅显得更加大气,使整体空间在满足功能的要求下更开阔亮敞;风格上定位新中式,整个地面选用灰色色系搭配深色走边,沙发背景选用浅色硬包和深色线条搭配,又和电视背景的木格栅相互衬,使整个空间充满韵味的同时又不失大气。
更多信息
| |


在线客服
微信客服
关注有礼