• 手机版

    扫码体验手机版

  • 微信公众号

    扫码关注公众号

登录注册
游客您好
第三方账号登陆

[衢州] 高家安仁镇欧塘村别墅294㎡现代——《慢享·时光》

[复制链接]
发表于 2018-8-21 14:55:55 | 显示全部楼层 |阅读模式
高家安仁镇欧塘村别墅294㎡现代——《慢享·时光》

格堂装饰为您全程记录装修全过程!

小区名称
高家安仁镇欧塘村
房屋面积
294㎡
户型结构
别墅
装修风格
现代
装修方式
半包
装修造价
查看请联系客服万元
设计师
毛工
项目经理
周工
装修公司
格堂装饰
完工实景
完工实景
水电全景
水电全景
VR全景
VR全景
设计说明
时光静好,细数流年


最温馨的灯光,一定在你回家的路上


时至今日,朴实无华的自然情趣也没有半点贬值的迹象


我们深信那是让人内心宁静的永恒之美


而怎样的喧嚣浮华都归于平常
更多信息
效果图
456778686006352075.jpg
回复

使用道具 举报

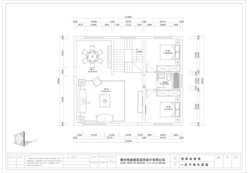
 楼主| 发表于 2018-8-21 15:10:01 | 显示全部楼层

一楼原始结构图
858598003423867159.jpg
一楼平面布置图
327056969632183157.jpg
回复 支持 反对

使用道具 举报

 楼主| 发表于 2018-8-21 15:10:35 | 显示全部楼层

二楼原始结构图
556426852109669475.jpg
二楼平面布置图
517400433504019216.jpg
回复 支持 反对

使用道具 举报

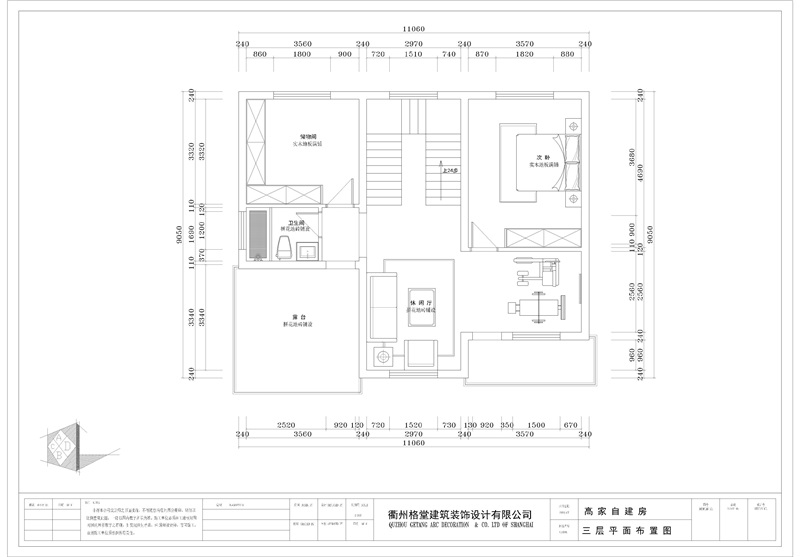
 楼主| 发表于 2018-8-21 15:11:09 | 显示全部楼层

三楼原始结构图
530016498089756944.jpg
三楼平面布置图
4664622133216018.jpg
回复 支持 反对

使用道具 举报

 楼主| 发表于 2018-8-21 15:16:38 | 显示全部楼层

今天是开工的好日子,恭祝业主开工大吉、大吉大利!!!
313276453664390132_副本.jpg

216494175234722722_副本.jpg
回复 支持 反对

使用道具 举报

 楼主| 发表于 2018-8-21 15:17:07 | 显示全部楼层

大门保护,防止后期磕碰到
7764357094551856.jpg

567847647184616781.jpg
回复 支持 反对

使用道具 举报

 楼主| 发表于 2018-8-21 15:18:28 | 显示全部楼层

没有拆改,直接水电放样
16950253498320364.jpg

73318789551665846.jpg

119378894923352576.jpg
回复 支持 反对

使用道具 举报

 楼主| 发表于 2018-8-21 15:19:47 | 显示全部楼层

设计师认真按照图纸放样,确保放样准确
324540040832778450.jpg

375829013994219625.jpg

474772553876299407_副本.jpg
回复 支持 反对

使用道具 举报

 楼主| 发表于 2018-8-21 15:20:56 | 显示全部楼层

好记性不如烂笔头,根据图纸,清楚标注开关和插座的位置。放样十分准确,后续师傅就可一步到位地进行施工了

380904603639220344.jpg

509618695336226511.jpg

9501039791691810.jpg
回复 支持 反对

使用道具 举报

 楼主| 发表于 2018-8-21 15:22:25 | 显示全部楼层

按照图纸尺寸放样
750149000100642300.jpg

754909526039108844.jpg
回复 支持 反对

使用道具 举报

您需要登录后才可以回帖 登录 | 立即注册

本版积分规则

全国统一客服电话
0570-8028505

24x7小时免费咨询

  • 官方在线客服

    QQ客服:小西

    点击交谈

    QQ客服:良子

    点击交谈

    QQ客服:闵月

    点击交谈
  • 衢州市柯城区财富中心3号楼2楼

  • 衢州格堂装饰有限公司

  • 扫一扫关注官方微信

    获取一手特惠信息

快速回复 返回顶部 返回列表