[衢州] 府前一号2-1#153㎡现代轻奢——我终生的等候,换不回你刹那凝眸 |
|
府前一号2-1#153㎡现代轻奢——我终生的等候,换不回你刹那凝眸
格堂装饰为您全程记录装修全过程! 设计说明
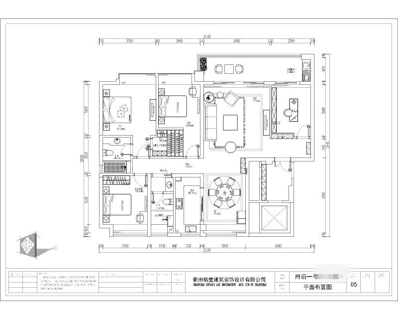
设计说明:本案的主题为现代轻奢风格,简约俐落的质材铺叙与敞明大方的格局尺度,是轻奢风定调的设计居宅中,不可或缺的重要元素。在案例中,设计师以陈设艺术品及金属线条材质来营造大气、自然、轻奢的装饰美学氛围。墙面、地面、家具陈设等均以简洁的造型、精细的工艺为其特征,强调品质感和细节处理,淡淡的随意,随着轻轻的希冀让人感受到的是空间弥漫的温馨与舒畅。
更多信息
| |
| |
| |


在线客服
微信客服
关注有礼