• 手机版

    扫码体验手机版

  • 微信公众号

    扫码关注公众号

登录注册
游客您好
第三方账号登陆

[衢州] 吾悦华府11-17#64㎡北欧——小幸运

[复制链接]
发表于 2018-8-8 14:52:45 | 显示全部楼层 |阅读模式
吾悦华府11-17#64㎡北欧——小幸运

格堂装饰为您全程记录装修全过程!

小区名称
吾悦华府
房屋面积
64㎡
户型结构
套房
装修风格
北欧
装修方式
半包
装修造价
查看请联系客服万元
设计师
周工
项目经理
余工
装修公司
格堂装饰
完工实景
完工实景
水电全景
水电全景
VR全景
VR全景
设计说明
此套房是业主买来的学区房,家中有两个可爱的宝宝,一家四口休憩于此,这套房子楼层17楼所以采光风景都特别赞,希望你们在这里获得小幸运。
更多信息
本帖最后由 格堂彩霞 于 2018-8-19 16:43 编辑

效果图

83476407361294614.jpg
回复

使用道具 举报

 楼主| 发表于 2018-8-8 14:53:53 | 显示全部楼层

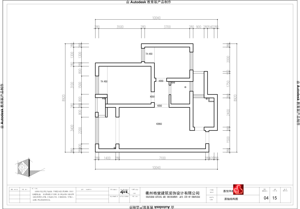
原始结构图
832187181324483933.png
平面布置图
882976314160749879.png
回复 支持 反对

使用道具 举报

 楼主| 发表于 2018-8-8 14:56:04 | 显示全部楼层

今天是开工的好日子,开工横幅、礼炮、鲜花都准备好咯
IMG_20180807_150156.jpg

IMG_20180807_150250.jpg

IMG_20180807_150317.jpg

IMG_20180807_150327.jpg
回复 支持 反对

使用道具 举报

 楼主| 发表于 2018-8-8 14:56:54 | 显示全部楼层

四大工种的施工规范牌,同样展示到位,方便检查和验收。进度控制表,使工地进度按预定的目标进行,确保按期完工。施工铭牌上标示着设计师、项目经理、施工工人的姓名和电话,方便业主随时监督。

IMG_20180807_150935.jpg
回复 支持 反对

使用道具 举报

 楼主| 发表于 2018-8-8 14:57:26 | 显示全部楼层

大门保护,防止磕碰到
IMG_20180807_150521.jpg

IMG_20180807_151108.jpg
回复 支持 反对

使用道具 举报

 楼主| 发表于 2018-8-8 14:57:49 | 显示全部楼层

煤气表保护
IMG_20180807_150923.jpg
回复 支持 反对

使用道具 举报

 楼主| 发表于 2018-8-8 14:58:35 | 显示全部楼层

简易马桶到位
IMG_20180807_150116.jpg

IMG_20180807_151101.jpg
回复 支持 反对

使用道具 举报

 楼主| 发表于 2018-8-8 15:02:27 | 显示全部楼层

恭祝业主开工大吉、万事如意!!!
IMG_20180807_150826_副本.jpg

IMG_20180807_150827_副本.jpg
回复 支持 反对

使用道具 举报

 楼主| 发表于 2018-8-8 15:03:06 | 显示全部楼层

美女业主的开工第一锤
IMG_20180807_150852.jpg

IMG_20180807_150900.jpg
回复 支持 反对

使用道具 举报

 楼主| 发表于 2018-8-8 15:05:39 | 显示全部楼层

我们家的户型结构很好,没什么大的改动,卧室两个飘窗需要敲掉
IMG_20180807_151031_副本.jpg

IMG_20180807_151044.jpg

IMG_20180807_151049.jpg
回复 支持 反对

使用道具 举报

您需要登录后才可以回帖 登录 | 立即注册

本版积分规则

全国统一客服电话
0570-8028505

24x7小时免费咨询

  • 官方在线客服

    QQ客服:小西

    点击交谈

    QQ客服:良子

    点击交谈

    QQ客服:闵月

    点击交谈
  • 衢州市柯城区财富中心3号楼2楼

  • 衢州格堂装饰有限公司

  • 扫一扫关注官方微信

    获取一手特惠信息

快速回复 返回顶部 返回列表