• 手机版

    扫码体验手机版

  • 微信公众号

    扫码关注公众号

登录注册
游客您好
第三方账号登陆

[衢州] 中央郡6#200㎡美式

[复制链接]
发表于 2018-6-21 10:04:33 | 显示全部楼层 |阅读模式
中央郡6#200㎡美式

格堂装饰为您全程记录装修全过程!

小区名称
中央郡
房屋面积
200㎡
户型结构
平层
装修风格
美式
装修方式
半包
装修造价
查看请联系客服万元
设计师
江工
项目经理
余工
装修公司
格堂装饰
完工实景
完工实景
水电全景
水电全景
VR全景
VR全景
设计说明
设计定位为现代美式风格,混搭简法家具,整体设计遵循简洁、硬朗、淡雅、沉稳兼跳跃、活泼的主基调,采取中灰度弱对比的搭配,选材都强调突出品质而又精致的一面。
更多信息
效果图
630088265981919271.jpg
731120960057235893.jpg
780404034450778043.jpg
回复

使用道具 举报

 楼主| 发表于 2018-6-21 10:11:27 | 显示全部楼层
原始结构图


1.jpg


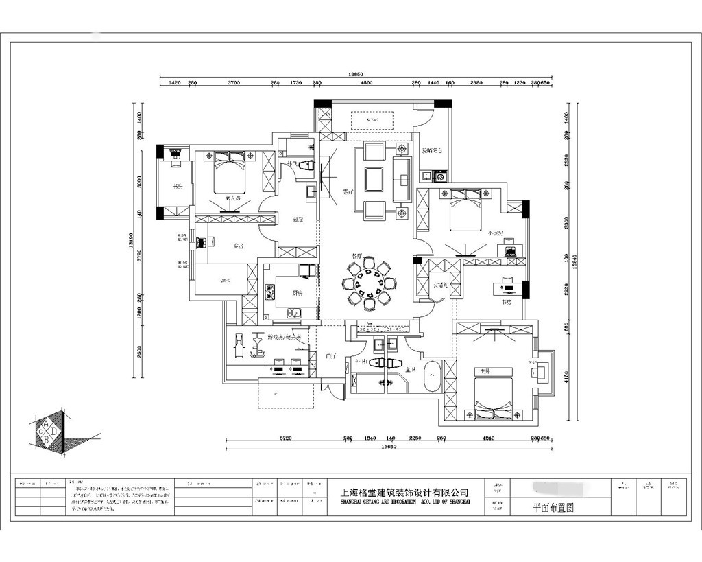
平面布置图


2.jpg


回复 支持 反对

使用道具 举报

 楼主| 发表于 2018-6-21 10:12:00 | 显示全部楼层
1.jpg


回复 支持 反对

使用道具 举报

 楼主| 发表于 2018-6-21 10:12:18 | 显示全部楼层
1.jpg


回复 支持 反对

使用道具 举报

 楼主| 发表于 2018-6-21 10:12:38 | 显示全部楼层
1.jpg


回复 支持 反对

使用道具 举报

 楼主| 发表于 2018-6-21 10:13:00 | 显示全部楼层
1.jpg


回复 支持 反对

使用道具 举报

 楼主| 发表于 2018-6-21 10:13:17 | 显示全部楼层
1.jpg


回复 支持 反对

使用道具 举报

 楼主| 发表于 2018-6-21 10:14:08 | 显示全部楼层
入户门进行保护



78821354004297812.jpg


835162041143776674.jpg


回复 支持 反对

使用道具 举报

 楼主| 发表于 2018-6-21 10:14:48 | 显示全部楼层
下水管防堵塞到位



792027431677513160.jpg


914883685627486396.jpg


回复 支持 反对

使用道具 举报

 楼主| 发表于 2018-6-21 10:15:44 | 显示全部楼层
煤气表保护到位



510616842913476112.jpg


回复 支持 反对

使用道具 举报

您需要登录后才可以回帖 登录 | 立即注册

本版积分规则

全国统一客服电话
0570-8028505

24x7小时免费咨询

  • 官方在线客服

    QQ客服:小西

    点击交谈

    QQ客服:良子

    点击交谈

    QQ客服:闵月

    点击交谈
  • 衢州市柯城区财富中心3号楼2楼

  • 衢州格堂装饰有限公司

  • 扫一扫关注官方微信

    获取一手特惠信息

快速回复 返回顶部 返回列表