[衢州] 郁金香郡6#111㎡中式——中式生活 |
|
郁金香郡6#111㎡中式——中式生活
格堂装饰为您全程记录装修全过程! 设计说明
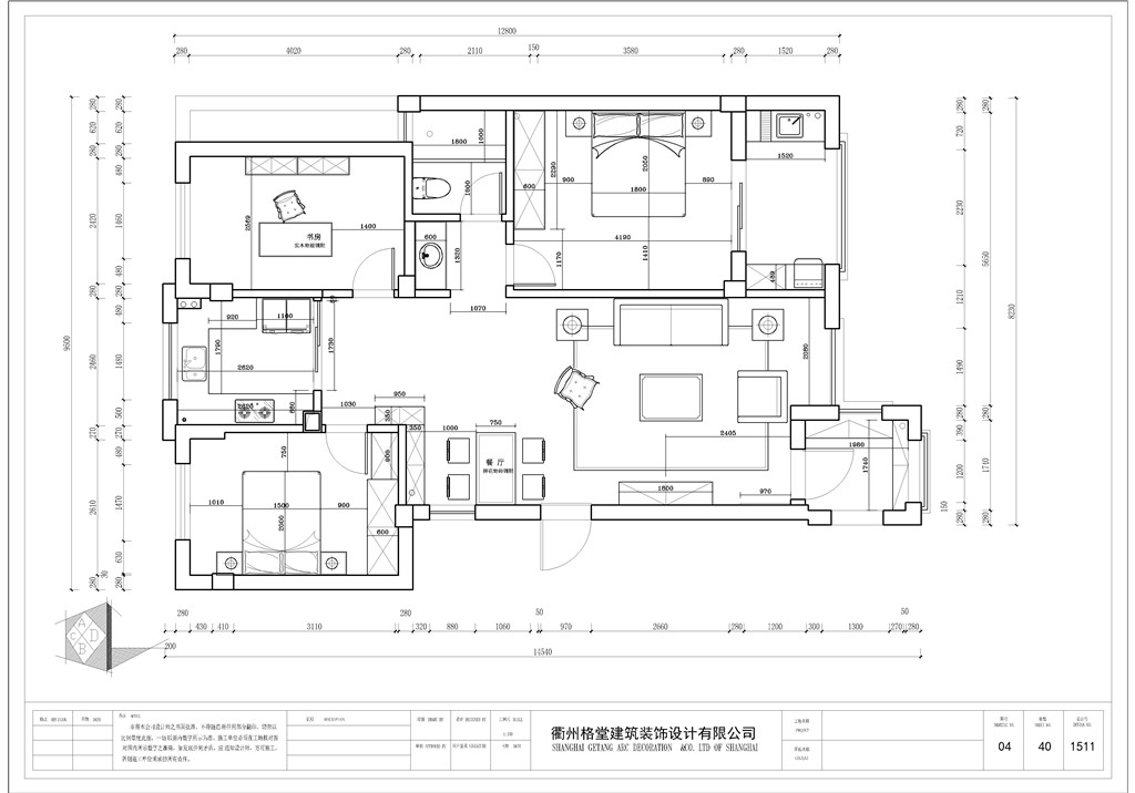
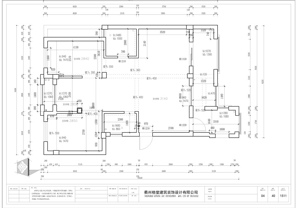
本案的主使用者为两位老人,所以设计风格取偏成熟稳重的中式,陈年的木色是对生活品质最好的诠释。在空间布置上充分考虑到老年人的生活习惯,并设计了孩子房及书房,将洗衣阳台设计在主卧边,方便老人的使用动线。干净的墙壁和地面,点缀上特色风景画,搭配上沉稳的木系家具,构筑出美好的晚年生活。适当地摆放一些绿植,不仅有利于身心健康,更使整个空间多了一些生机。
更多信息
|


在线客服
微信客服
关注有礼