• 手机版

    扫码体验手机版

  • 微信公众号

    扫码关注公众号

登录注册
游客您好
第三方账号登陆

[衢州] 迎和小区5#52㎡北欧——蜗·居

[复制链接]
发表于 2018-6-7 17:01:14 | 显示全部楼层 |阅读模式
迎和小区5#52㎡北欧——蜗·居

格堂装饰为您全程记录装修全过程!

小区名称
迎和小区
房屋面积
52㎡
户型结构
套房
装修风格
北欧
装修方式
半包
装修造价
查看请联系客服万元
设计师
王辉
项目经理
余工
装修公司
格堂装饰
完工实景
完工实景
水电全景
水电全景
VR全景
VR全景
设计说明
仅仅50平方大的居家空间,满足小孩上学的要求。为了使空间在满足所有需求的条件下还不闲得狭小,设计师采用了简单的硬装处理,沙发背景用一面跳色来烘托整个空间的北欧氛围。加上蓝色的沙发和简约餐桌椅,空间虽小,却不失个性。塑造了清新舒适的居家氛围。
更多信息
效果图
373570919336164591.jpg
回复

使用道具 举报

 楼主| 发表于 2018-6-7 17:02:58 | 显示全部楼层

原始结构图
599748155814025271_副本.jpg
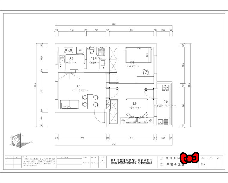
平面布置图
181285753262026200_副本.jpg
回复 支持 反对

使用道具 举报

 楼主| 发表于 2018-6-7 17:03:41 | 显示全部楼层


792449340357860543.jpg
回复 支持 反对

使用道具 举报

 楼主| 发表于 2018-6-7 17:04:12 | 显示全部楼层


792449340357860543.jpg
回复 支持 反对

使用道具 举报

 楼主| 发表于 2018-6-7 17:06:31 | 显示全部楼层


792449340357860543.jpg
回复 支持 反对

使用道具 举报

 楼主| 发表于 2018-6-7 17:07:18 | 显示全部楼层


792449340357860543.jpg
回复 支持 反对

使用道具 举报

 楼主| 发表于 2018-6-7 17:15:46 | 显示全部楼层

今天是开工的好日子,开工横幅挂起来!
472658686078527868.jpg

409133483208545860.jpg

54858496439815782.jpg
回复 支持 反对

使用道具 举报

 楼主| 发表于 2018-6-7 17:17:22 | 显示全部楼层

施工铭牌上标示着设计师、项目经理、施工工人的姓名和电话,方便业主随时监督。四大工种的施工规范牌,同样展示到位,方便检查和验收。进度控制表,使工地进度按预定的目标进行,确保按期完工

355579837790058055.jpg
回复 支持 反对

使用道具 举报

 楼主| 发表于 2018-6-7 17:17:54 | 显示全部楼层

大门保护到位,防止后期磕碰到
420697567163229900.jpg
回复 支持 反对

使用道具 举报

 楼主| 发表于 2018-6-7 17:21:59 | 显示全部楼层

吉时到,礼炮放起来。设计师、项目经理和业主一起拍照留念
恭祝业主开工大吉,大吉大利!!!


920432618137846742_副本.jpg

639772799601785353_副本.jpg
回复 支持 反对

使用道具 举报

您需要登录后才可以回帖 登录 | 立即注册

本版积分规则

全国统一客服电话
0570-8028505

24x7小时免费咨询

  • 官方在线客服

    QQ客服:小西

    点击交谈

    QQ客服:良子

    点击交谈

    QQ客服:闵月

    点击交谈
  • 衢州市柯城区财富中心3号楼2楼

  • 衢州格堂装饰有限公司

  • 扫一扫关注官方微信

    获取一手特惠信息

快速回复 返回顶部 返回列表