• 手机版

    扫码体验手机版

  • 微信公众号

    扫码关注公众号

登录注册
游客您好
第三方账号登陆

[衢州] 【格堂@春江月10@】“轻奢华新时尚”的生活

[复制链接]
发表于 2018-5-15 08:53:02 | 显示全部楼层 |阅读模式

格堂装饰为您全程记录装修全过程!

小区名称
春江月
房屋面积
200㎡
户型结构
框架结构
装修风格
法式
装修方式
半包
装修造价
查看请联系客服万元
设计师
何工
项目经理
施工
装修公司
格堂装饰
完工实景
完工实景
水电全景
水电全景
VR全景
VR全景
设计说明
更多信息
效果图
微信图片_20180514100935.jpg
微信图片_20180514100942.jpg
回复

使用道具 举报

 楼主| 发表于 2018-5-15 08:54:47 | 显示全部楼层
原始结构图
微信图片_20180514100954.jpg
微信图片_20180514101003.jpg
回复 支持 反对

使用道具 举报

 楼主| 发表于 2018-5-15 08:55:20 | 显示全部楼层
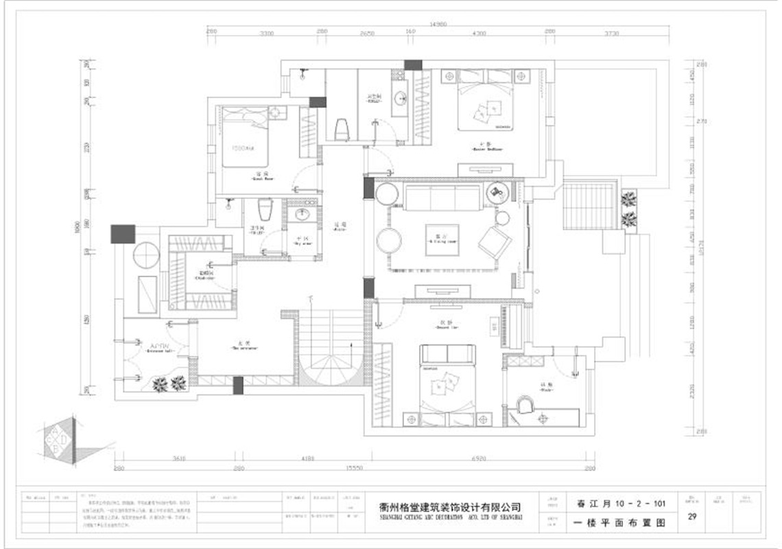
平面布置图
微信图片_20180514101001.jpg
微信图片_20180514100957.jpg
回复 支持 反对

使用道具 举报

 楼主| 发表于 2018-5-15 08:56:12 | 显示全部楼层

回复

使用道具 举报

 楼主| 发表于 2018-5-15 08:56:40 | 显示全部楼层

回复

使用道具 举报

 楼主| 发表于 2018-5-15 08:56:56 | 显示全部楼层

回复

使用道具 举报

 楼主| 发表于 2018-5-15 10:52:12 | 显示全部楼层

回复

使用道具 举报

 楼主| 发表于 2018-5-15 10:53:32 | 显示全部楼层
工地开工形象照
QQ图片20180513173943.jpg
QQ图片20180513173947.jpg
QQ图片20180513174013.jpg
QQ图片20180513174016.jpg
QQ图片20180513174019.jpg
QQ图片20180513174023.jpg
回复 支持 反对

使用道具 举报

 楼主| 发表于 2018-5-15 10:55:08 | 显示全部楼层
本帖最后由 格堂川之光 于 2018-5-15 11:03 编辑

吉时开工仪式准备
QQ图片20180513174110_副本.jpg
回复 支持 反对

使用道具 举报

 楼主| 发表于 2018-5-15 11:01:57 | 显示全部楼层
业主大人开工第一锤6666
QQ图片20180513174143_副本.jpg
QQ图片20180513174148_副本.jpg
回复 支持 反对

使用道具 举报

您需要登录后才可以回帖 登录 | 立即注册

本版积分规则

全国统一客服电话
0570-8028505

24x7小时免费咨询

  • 官方在线客服

    QQ客服:小西

    点击交谈

    QQ客服:良子

    点击交谈

    QQ客服:闵月

    点击交谈
  • 衢州市柯城区财富中心3号楼2楼

  • 衢州格堂装饰有限公司

  • 扫一扫关注官方微信

    获取一手特惠信息

快速回复 返回顶部 返回列表