[衢州] 郁金香郡31-1#160㎡美式——家的温暖 |
|
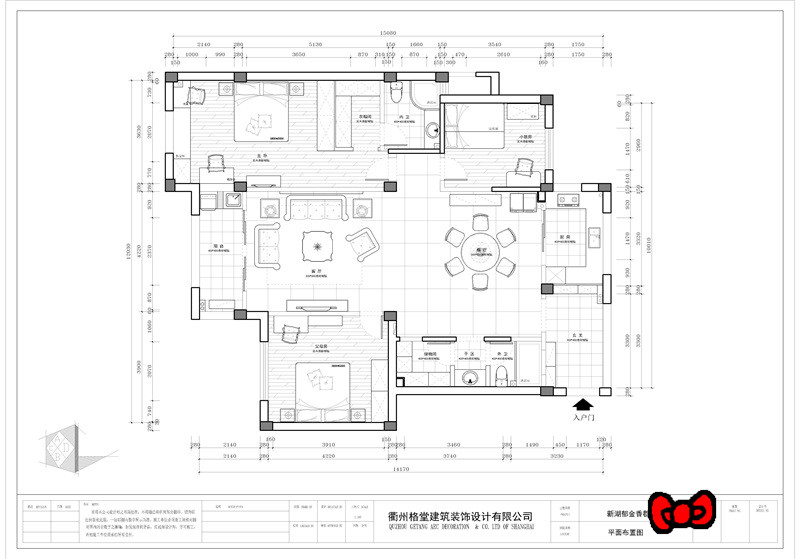
郁金香郡31-1#160㎡美式——家的温暖
格堂装饰为您全程记录装修全过程! 设计说明
小美风格讲究精致温馨,用简单的线条,自然的纹理材质营造出温馨的室内空间。地面拼花繁而不杂,暖色调的地面和木制家具都能给人一种家的温暖感。简单的线条沙发背景和电视背景墙线条相呼应。让空间整体不突兀。卧室也运用了这种暖色调,木制的地板和色彩丰富的地毯不会单调,让人一进门就有家的归属感。
更多信息
|


在线客服
微信客服
关注有礼