[衢州] 衢东御园2#130㎡中式——简约的中式住宅 |
|
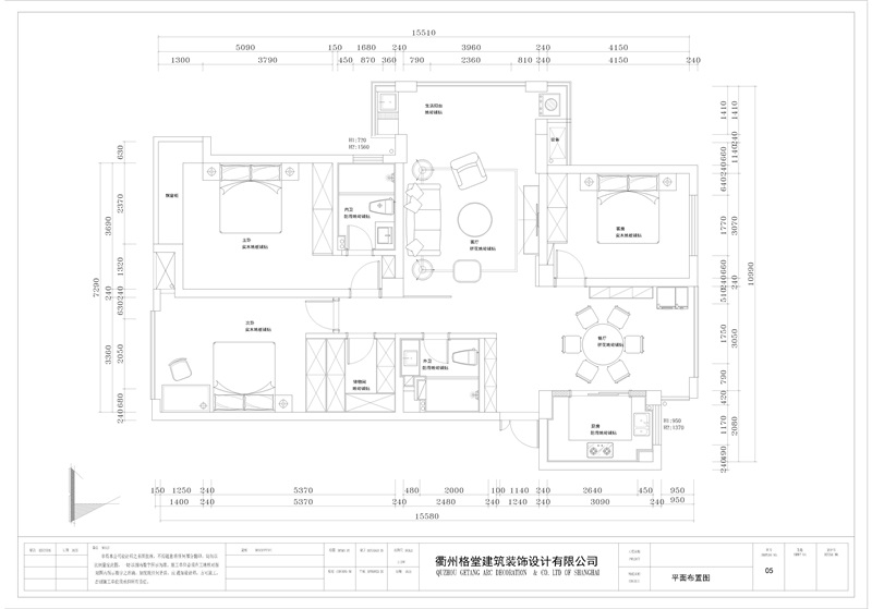
衢东御园2#130㎡中式——简约的中式住宅
格堂装饰为您全程记录装修全过程! 设计说明
这种风格非常讲究空间的层次感与跳跃感。在需要隔绝视线的地方,则使用中式的屏风、工艺隔断、简约化的中式“博古架”等。通过这种新的分隔方式,单元式住宅就展现出中式家居的层次之美。再配以一些简约的造型为基础,添加了中式元素,是整体空间更加丰富,大而不空、厚而不重,有格调又不显压抑。
更多信息
|


在线客服
微信客服
关注有礼