• 手机版

    扫码体验手机版

  • 微信公众号

    扫码关注公众号

登录注册
游客您好
第三方账号登陆

[衢州] 郁金香郡3#120㎡北欧——让您进入精彩纷呈、韵味无穷的世界

[复制链接]
发表于 2018-3-31 11:20:59 | 显示全部楼层 |阅读模式
郁金香郡3#120㎡北欧——让您进入精彩纷呈、韵味无穷的世界

格堂装饰为您全程记录装修全过程!

小区名称
郁金香郡
房屋面积
120㎡
户型结构
框架
装修风格
北欧
装修方式
半包
装修造价
查看请联系客服万元
设计师
余工
项目经理
施工
装修公司
格堂装饰
完工实景
完工实景
水电全景
水电全景
VR全景
VR全景
设计说明
待添加...
更多信息
回复

使用道具 举报

 楼主| 发表于 2018-4-11 10:19:29 | 显示全部楼层

回复

使用道具 举报

 楼主| 发表于 2018-4-13 09:41:22 | 显示全部楼层
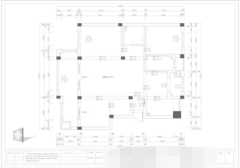
原始结构图:

123321.jpg
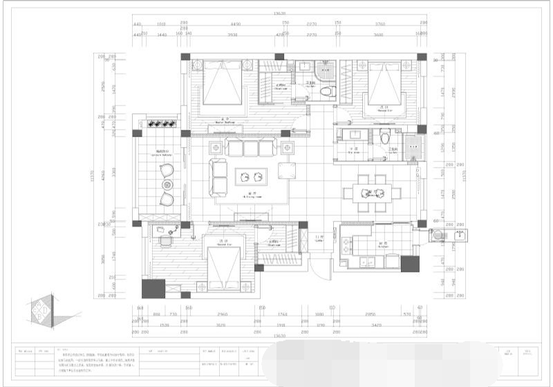
平面设计图:

11112222.jpg
回复 支持 反对

使用道具 举报

 楼主| 发表于 2018-4-13 09:41:40 | 显示全部楼层

回复

使用道具 举报

 楼主| 发表于 2018-4-13 09:43:40 | 显示全部楼层

回复

使用道具 举报

 楼主| 发表于 2018-4-13 09:44:25 | 显示全部楼层

回复

使用道具 举报

 楼主| 发表于 2018-4-13 09:56:01 | 显示全部楼层

开工:

微信图片_201804130953403.jpg

微信图片_201804130953406.jpg

微信图片_201804130953404.jpg




回复 支持 反对

使用道具 举报

 楼主| 发表于 2018-4-13 09:58:40 | 显示全部楼层
拆改工程:

微信图片_20180413095052.jpg

微信图片_201804130953401.jpg

微信图片_201804130953402.jpg
回复 支持 反对

使用道具 举报

 楼主| 发表于 2018-4-13 10:01:48 | 显示全部楼层
新老墙交接处植入钢筋,防后期墙体开裂,加固新老墙:


135552om6lvvuvxuuqomm7.jpg

file:///c:/users/ADMINI~1/appdata/roaming/360se6/USERDA~1/Temp/135552~1.JPG
回复 支持 反对

使用道具 举报

 楼主| 发表于 2018-4-13 10:03:45 | 显示全部楼层
专业砌筑:

微信图片_20180413093450.jpg

微信图片_201804130953408.jpg

微信图片_2018041309534011.jpg

微信图片_2018041309534012.jpg
回复 支持 反对

使用道具 举报

您需要登录后才可以回帖 登录 | 立即注册

本版积分规则

全国统一客服电话
0570-8028505

24x7小时免费咨询

  • 官方在线客服

    QQ客服:小西

    点击交谈

    QQ客服:良子

    点击交谈

    QQ客服:闵月

    点击交谈
  • 衢州市柯城区财富中心3号楼2楼

  • 衢州格堂装饰有限公司

  • 扫一扫关注官方微信

    获取一手特惠信息

快速回复 返回顶部 返回列表