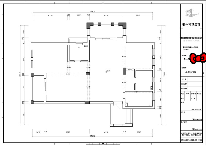
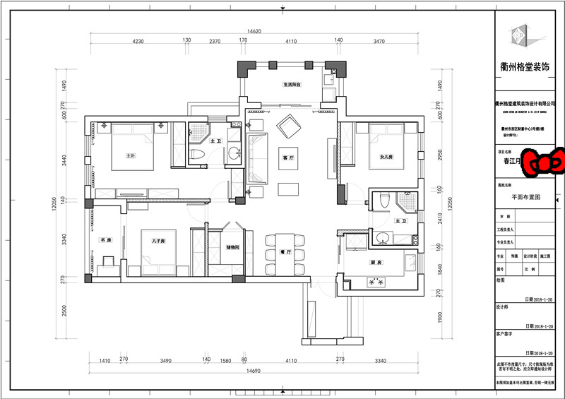
[衢州] 春江月6#120㎡简欧——浪漫与庄严的气质 文雅精巧不乏舒适 尽显雍容华贵 |
|
春江月6#120㎡简欧——浪漫与庄严的气质 文雅精巧不乏舒适 尽显雍容华贵
格堂装饰为您全程记录装修全过程! 设计说明
简欧风格沿袭古典欧式风格的主元素,融入了现代的生活元素。欧式的居室有的不只是豪华大气,更多的是惬意和浪漫。通过完美的线条,精益求精的细节处理,带给家人不尽的舒适触感。底色大多采用白色、淡色为主,家具也是白色为主,配上丝质面料显高贵。
更多信息
| |
| |
| |
|
格堂装饰网www.gtzs.com首创衢城(甚至全国)装修全新模式,为您记录装修全过程,有专门客服为您记录装修全过程传到格堂公司内部网站!
|
|
| |
|
格堂装饰网www.gtzs.com首创衢城(甚至全国)装修全新模式,为您记录装修全过程,有专门客服为您记录装修全过程传到格堂公司内部网站!
|
|
| |
|
格堂装饰网www.gtzs.com首创衢城(甚至全国)装修全新模式,为您记录装修全过程,有专门客服为您记录装修全过程传到格堂公司内部网站!
|
|


在线客服
微信客服
关注有礼