• 手机版

    扫码体验手机版

  • 微信公众号

    扫码关注公众号

登录注册
游客您好
第三方账号登陆

[衢州] 【格堂@新城吾悦9-1@】回归自然,崇尚原木的韵味

[复制链接]
发表于 2018-2-1 16:06:17 | 显示全部楼层 |阅读模式

格堂装饰为您全程记录装修全过程!

小区名称
新城吾悦
房屋面积
120㎡
户型结构
套房
装修风格
北欧
装修方式
半包
装修造价
查看请联系客服万元
设计师
毛工
项目经理
余工
装修公司
格堂装饰
完工实景
完工实景
水电全景
水电全景
VR全景
VR全景
设计说明
更多信息
本帖最后由 格堂飞飞 于 2018-2-6 13:25 编辑

687663812303166269.jpg


给客户营造一个北欧风格的居家空间,材质上的精挑细选,工艺上的尽善尽美,回归自然,崇尚原木韵味,外加现代、实用、精美的设计风
格,反映出现代都市人进入后现代社会的另一种思考方向。强调了简单结构与舒适功能的完美结合,即便是设计一把椅子,不仅要追求它的造型美,更注重从人体结构出发,讲究它的曲线如何与人体接触时完美地吻合在一起,使其与人体协调,倍感舒适

回复

使用道具 举报

 楼主| 发表于 2018-2-1 16:20:04 | 显示全部楼层

原始结构图
765419068345843876_副本.jpg
回复 支持 反对

使用道具 举报

 楼主| 发表于 2018-2-1 16:20:48 | 显示全部楼层

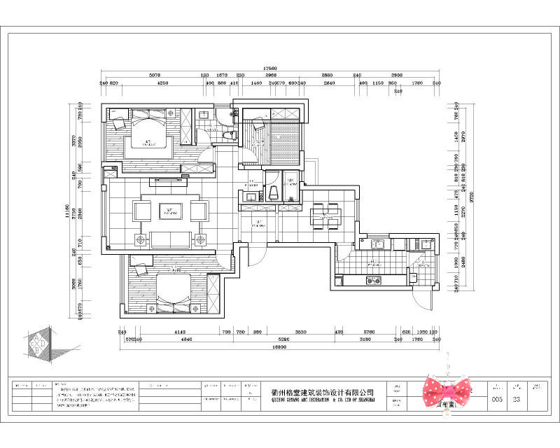
平面布置图
437185831392505850_副本.jpg
回复 支持 反对

使用道具 举报

 楼主| 发表于 2018-2-1 16:41:39 | 显示全部楼层
本帖最后由 格堂飞飞 于 2018-2-1 16:44 编辑

开工前准备工作先做好,红桌布喜气洋洋的
IMG_4104.JPG

美女设计师笑的多开心
IMG_4105.JPG

回复 支持 反对

使用道具 举报

 楼主| 发表于 2018-2-1 16:43:27 | 显示全部楼层

施工铭牌上标示着设计师、项目经理、施工工人的姓名和电话,方便业主随时监督。四大工种的施工规范牌,同样展示到位,方便检查和验收

IMG_4122.JPG

IMG_4123.JPG

IMG_4124.JPG

IMG_4125.JPG

回复 支持 反对

使用道具 举报

 楼主| 发表于 2018-2-1 16:46:23 | 显示全部楼层
本帖最后由 格堂飞飞 于 2018-2-2 17:16 编辑

开工前大门要先保护起来,防止以后磕碰

IMG_4107.JPG

IMG_4108_副本.jpg

回复 支持 反对

使用道具 举报

 楼主| 发表于 2018-2-1 16:47:45 | 显示全部楼层
本帖最后由 格堂飞飞 于 2018-2-2 17:11 编辑

电梯门口也要保护起来
IMG_4109_副本.jpg

IMG_4110.JPG


回复 支持 反对

使用道具 举报

 楼主| 发表于 2018-2-1 16:49:02 | 显示全部楼层
本帖最后由 格堂飞飞 于 2018-2-2 16:48 编辑

格堂专用锁盒安装到位
IMG_4111_副本.jpg
回复 支持 反对

使用道具 举报

 楼主| 发表于 2018-2-1 16:52:04 | 显示全部楼层

大门门槛保护到位,防止以后门槛变形和磕碰
IMG_4112.JPG
回复 支持 反对

使用道具 举报

 楼主| 发表于 2018-2-1 16:53:15 | 显示全部楼层

卫生间下水管用格堂专用保护盖保护,防止砂石堵塞管道
IMG_4115.JPG

IMG_4117.JPG
回复 支持 反对

使用道具 举报

您需要登录后才可以回帖 登录 | 立即注册

本版积分规则

全国统一客服电话
0570-8028505

24x7小时免费咨询

  • 官方在线客服

    QQ客服:小西

    点击交谈

    QQ客服:良子

    点击交谈

    QQ客服:闵月

    点击交谈
  • 衢州市柯城区财富中心3号楼2楼

  • 衢州格堂装饰有限公司

  • 扫一扫关注官方微信

    获取一手特惠信息

快速回复 返回顶部 返回列表