• 手机版

    扫码体验手机版

  • 微信公众号

    扫码关注公众号

登录注册
游客您好
第三方账号登陆

[衢州] 【格堂@枫丹白露13-4@】随意的生活态度,新旧混搭的自由

[复制链接]
发表于 2018-1-14 09:06:10 | 显示全部楼层 |阅读模式

格堂装饰为您全程记录装修全过程!

小区名称
枫丹白露
房屋面积
155㎡
户型结构
复式
装修风格
美式
装修方式
半包
装修造价
查看请联系客服万元
设计师
饶工
项目经理
彭工
装修公司
格堂装饰
完工实景
完工实景
水电全景
水电全景
VR全景
VR全景
设计说明
更多信息
本帖最后由 格堂飞飞 于 2018-1-24 16:18 编辑

203267823841100227.jpg

美式风格突出了生活的舒适和自由,不论是感觉笨重的家具,还是带有岁月沧桑的配饰,都在告诉人们这一点。把人的体验和自由作为基础是情景主义设计思想的核心价值,主张人在空间里不是被装饰所束缚,而是一个自由的主体。装饰不是死板的、是鲜活的、是有故事的 、是好玩的、是有情感的、把现实生活的人、景、事合符逻辑的连接起来用写意的手法搬到室内空间里,让人体验的不是一种装饰而是一种生活场景的互动,这就是设计师所缔造的情景主义美学观。

回复

使用道具 举报

 楼主| 发表于 2018-1-14 09:25:32 | 显示全部楼层
一楼原始结构图
858279152985511235_副本.jpg


回复 支持 反对

使用道具 举报

 楼主| 发表于 2018-1-14 09:27:02 | 显示全部楼层


一楼平面布置图
230977828612916076_副本.jpg
回复 支持 反对

使用道具 举报

 楼主| 发表于 2018-1-14 09:29:05 | 显示全部楼层

二楼原始结构图
288407847243644379_副本.jpg



回复 支持 反对

使用道具 举报

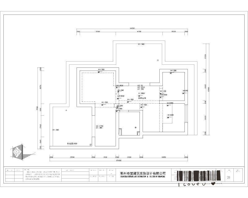
 楼主| 发表于 2018-1-14 09:30:16 | 显示全部楼层

二楼平面布置图
237500299195685054_副本.jpg
回复 支持 反对

使用道具 举报

 楼主| 发表于 2018-1-14 13:35:03 | 显示全部楼层

回复

使用道具 举报

 楼主| 发表于 2018-1-14 13:35:33 | 显示全部楼层



回复

使用道具 举报

 楼主| 发表于 2018-1-14 13:35:50 | 显示全部楼层



回复

使用道具 举报

 楼主| 发表于 2018-1-14 13:36:21 | 显示全部楼层



回复

使用道具 举报

 楼主| 发表于 2018-1-14 13:53:05 | 显示全部楼层

吉时还没有到准备工作先做好
IMG_1444.JPG

IMG_1447.JPG

回复 支持 反对

使用道具 举报

您需要登录后才可以回帖 登录 | 立即注册

本版积分规则

全国统一客服电话
0570-8028505

24x7小时免费咨询

  • 官方在线客服

    QQ客服:小西

    点击交谈

    QQ客服:良子

    点击交谈

    QQ客服:闵月

    点击交谈
  • 衢州市柯城区财富中心3号楼2楼

  • 衢州格堂装饰有限公司

  • 扫一扫关注官方微信

    获取一手特惠信息

快速回复 返回顶部 返回列表