• 手机版

    扫码体验手机版

  • 微信公众号

    扫码关注公众号

登录注册
游客您好
第三方账号登陆

[衢州] 【格堂**吾悦华府1-2-23**】自然小清新的幸福生活

[复制链接]
发表于 2017-12-1 11:17:12 | 显示全部楼层 |阅读模式

格堂装饰为您全程记录装修全过程!

小区名称
吾悦华府
房屋面积
107㎡
户型结构
套房
装修风格
北欧
装修方式
半包
装修造价
查看请联系客服万元
设计师
余工
项目经理
施工
装修公司
格堂装饰
完工实景
完工实景
水电全景
水电全景
VR全景
VR全景
设计说明
更多信息
本帖最后由 格堂彩霞 于 2017-12-21 10:55 编辑

效果图
667740101582802275.jpg

设计说明:现代北欧风格的清爽简洁干净,从很大程度上阐释了一种简单洒脱的生活态度,也反映了现代生活重压下人们对自然恬静生活的追求,本案业主喜欢北欧类家具,追求自然原木小清新,追求后期的软搭出效果,地面采用地板砖铺设,墙面白墙即可,吊顶和整体都很简洁自然,由于是婚房,储物空间并未做太多,但也已满足,相信业主今后也一定能更加幸福!
回复

使用道具 举报

 楼主| 发表于 2017-12-1 11:19:04 | 显示全部楼层

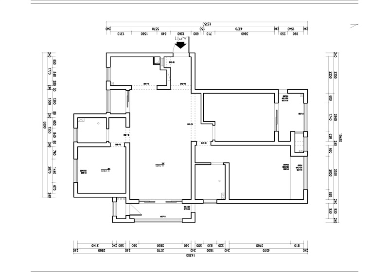
原始结构图
766409715691210786.jpg
回复 支持 反对

使用道具 举报

 楼主| 发表于 2017-12-1 11:19:24 | 显示全部楼层

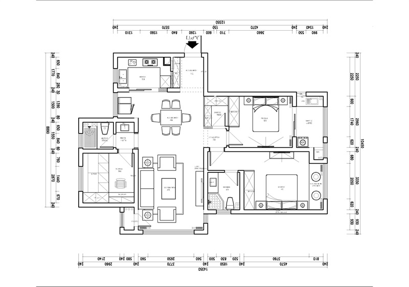
平面布置图
807677935633957538.jpg
回复 支持 反对

使用道具 举报

 楼主| 发表于 2017-12-1 11:20:02 | 显示全部楼层

回复

使用道具 举报

 楼主| 发表于 2017-12-1 11:20:18 | 显示全部楼层

回复

使用道具 举报

 楼主| 发表于 2017-12-1 11:20:39 | 显示全部楼层

回复

使用道具 举报

 楼主| 发表于 2017-12-1 11:20:57 | 显示全部楼层

回复

使用道具 举报

 楼主| 发表于 2017-12-2 10:43:24 | 显示全部楼层

今天是开工的好日子,我们已经准备好喽
微信图片_20171126163607.jpg

微信图片_20171126163226.jpg
回复 支持 反对

使用道具 举报

 楼主| 发表于 2017-12-2 10:44:59 | 显示全部楼层

大门保护好,防止后期搬运磕碰到
微信图片_20171126163131.jpg


回复 支持 反对

使用道具 举报

 楼主| 发表于 2017-12-2 10:46:05 | 显示全部楼层

地面保护、门槛保护到位
微信图片_20171126163204.jpg

微信图片_20171126163150.jpg
回复 支持 反对

使用道具 举报

您需要登录后才可以回帖 登录 | 立即注册

本版积分规则

全国统一客服电话
0570-8028505

24x7小时免费咨询

  • 官方在线客服

    QQ客服:小西

    点击交谈

    QQ客服:良子

    点击交谈

    QQ客服:闵月

    点击交谈
  • 衢州市柯城区财富中心3号楼2楼

  • 衢州格堂装饰有限公司

  • 扫一扫关注官方微信

    获取一手特惠信息

快速回复 返回顶部 返回列表