• 手机版

    扫码体验手机版

  • 微信公众号

    扫码关注公众号

登录注册
游客您好
第三方账号登陆

[衢州] 【格堂**吾悦华府1-2-15**】崇尚自然的北欧风格

[复制链接]
发表于 2017-11-18 11:18:53 | 显示全部楼层 |阅读模式

格堂装饰为您全程记录装修全过程!

小区名称
吾悦华府
房屋面积
107㎡
户型结构
套房
装修风格
北欧
装修方式
半包
装修造价
查看请联系客服万元
设计师
郑工
项目经理
施工
装修公司
格堂装饰
完工实景
完工实景
水电全景
水电全景
VR全景
VR全景
设计说明
更多信息
本帖最后由 格堂彩霞 于 2017-12-21 10:58 编辑

效果图

60239172645162020563916.jpg

设计说明:北欧风格的装修现在也成为简洁风格装修的一种典型代表,
没有过多冗杂的装饰和花纹,
用一种
最简单、直接、功能化且贴近自然的线条来表现其宁静的北欧风情
回复

使用道具 举报

 楼主| 发表于 2017-11-18 15:48:22 | 显示全部楼层

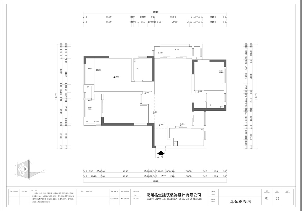
原始结构图
60061918743346686.jpg
回复 支持 反对

使用道具 举报

 楼主| 发表于 2017-11-18 15:48:50 | 显示全部楼层

平面布置图
902976214090032043.jpg
回复 支持 反对

使用道具 举报

 楼主| 发表于 2017-11-18 15:49:13 | 显示全部楼层

回复

使用道具 举报

 楼主| 发表于 2017-11-18 15:49:33 | 显示全部楼层

回复

使用道具 举报

 楼主| 发表于 2017-11-18 15:49:49 | 显示全部楼层

回复

使用道具 举报

 楼主| 发表于 2017-11-18 15:50:10 | 显示全部楼层

回复

使用道具 举报

 楼主| 发表于 2017-11-18 15:52:43 | 显示全部楼层
地面保护、大门保护先做起来
IMG_7762_副本.jpg

IMG_7760_副本.jpg
回复 支持 反对

使用道具 举报

 楼主| 发表于 2017-11-18 15:54:51 | 显示全部楼层

开工仪式准备好,等吉时开工喔
IMG_7770.JPG

IMG_7769.JPG

IMG_7767.JPG
回复 支持 反对

使用道具 举报

 楼主| 发表于 2017-11-18 16:05:44 | 显示全部楼层

今天的花很漂亮哦
IMG_7761_副本.jpg
回复 支持 反对

使用道具 举报

您需要登录后才可以回帖 登录 | 立即注册

本版积分规则

全国统一客服电话
0570-8028505

24x7小时免费咨询

  • 官方在线客服

    QQ客服:小西

    点击交谈

    QQ客服:良子

    点击交谈

    QQ客服:闵月

    点击交谈
  • 衢州市柯城区财富中心3号楼2楼

  • 衢州格堂装饰有限公司

  • 扫一扫关注官方微信

    获取一手特惠信息

快速回复 返回顶部 返回列表