• 手机版

    扫码体验手机版

  • 微信公众号

    扫码关注公众号

登录注册
游客您好
第三方账号登陆

[衢州] 香格里拉藏陇郡8#440㎡新中式——当婉约别致的古典元素与现代美学的共同整合

[复制链接]
 楼主| 发表于 2017-10-20 15:49:47 | 显示全部楼层
二层原始结构图
微信图片_20171012110337.jpg
回复 支持 反对

使用道具 举报

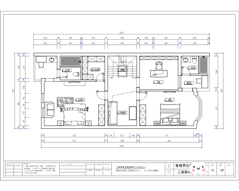
 楼主| 发表于 2017-10-20 15:50:12 | 显示全部楼层
二层平面布置图
微信图片_20171012110342.jpg
回复 支持 反对

使用道具 举报

 楼主| 发表于 2017-10-20 15:50:30 | 显示全部楼层
三层原始结构图
微信图片_20171012110345.jpg
回复 支持 反对

使用道具 举报

 楼主| 发表于 2017-10-20 15:50:48 | 显示全部楼层
三层平面布置图
微信图片_20171012110348.jpg
回复 支持 反对

使用道具 举报

 楼主| 发表于 2017-10-20 15:50:55 | 显示全部楼层

回复

使用道具 举报

发表于 2017-11-27 09:17:50 | 显示全部楼层

回复

使用道具 举报

发表于 2017-11-27 13:34:46 | 显示全部楼层

今天是开工的好日子
IMG_1255.JPG



IMG_1254.JPG
IMG_1243.JPG
回复 支持 反对

使用道具 举报

发表于 2017-11-27 13:36:42 | 显示全部楼层

吉时到,恭祝业主开工大吉,大吉大利!
IMG_1250_副本.jpg

IMG_1251_副本.jpg
回复 支持 反对

使用道具 举报

发表于 2017-11-27 13:37:35 | 显示全部楼层

开工第一锤,预祝顺顺利利!
IMG_1249_副本.jpg
回复 支持 反对

使用道具 举报

发表于 2017-11-27 13:39:15 | 显示全部楼层

设计师、项目经理、业主一起现场沟通
IMG_1280_副本.jpg

IMG_1281_副本.jpg
回复 支持 反对

使用道具 举报

您需要登录后才可以回帖 登录 | 立即注册

本版积分规则

全国统一客服电话
0570-8028505

24x7小时免费咨询

  • 官方在线客服

    QQ客服:小西

    点击交谈

    QQ客服:良子

    点击交谈

    QQ客服:闵月

    点击交谈
  • 衢州市柯城区财富中心3号楼2楼

  • 衢州格堂装饰有限公司

  • 扫一扫关注官方微信

    获取一手特惠信息

快速回复 返回顶部 返回列表