• 手机版

    扫码体验手机版

  • 微信公众号

    扫码关注公众号

登录注册
游客您好
第三方账号登陆

[衢州] 【格堂※月亮湾沁园2※】将现代元素和传统元素结合

[复制链接]
发表于 2017-10-18 09:11:46 | 显示全部楼层 |阅读模式

格堂装饰为您全程记录装修全过程!

小区名称
月亮湾沁园2
房屋面积
122㎡
户型结构
框架
装修风格
新中式
装修方式
半包
装修造价
查看请联系客服万元
设计师
郑工
项目经理
余工
装修公司
格堂装饰
完工实景
完工实景
水电全景
水电全景
VR全景
VR全景
设计说明
更多信息
本帖最后由 格堂彬彬 于 2017-10-18 10:16 编辑

效果图
5d515e7561ed64fa7b7a327f30a46fde.jpg
be2785c015a5f6e8e7552cade3a72879.jpg

回复

使用道具 举报

 楼主| 发表于 2017-10-18 09:12:03 | 显示全部楼层
本帖最后由 格堂彬彬 于 2017-10-18 10:16 编辑

原始结构图
9fc16539fef898a357859d266be0c361.jpg
回复 支持 反对

使用道具 举报

 楼主| 发表于 2017-10-18 09:12:18 | 显示全部楼层
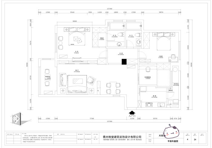
本帖最后由 格堂彬彬 于 2017-10-18 10:17 编辑

平面布置图
cc659a6993744e8ce662e6b1d594cfde.jpg
回复 支持 反对

使用道具 举报

 楼主| 发表于 2017-10-18 09:12:43 | 显示全部楼层
回复

使用道具 举报

 楼主| 发表于 2017-10-18 09:13:23 | 显示全部楼层
回复

使用道具 举报

 楼主| 发表于 2017-10-18 09:14:43 | 显示全部楼层
回复

使用道具 举报

 楼主| 发表于 2017-10-18 09:15:25 | 显示全部楼层
回复

使用道具 举报

 楼主| 发表于 2017-10-18 09:15:45 | 显示全部楼层
回复

使用道具 举报

 楼主| 发表于 2017-10-18 09:16:02 | 显示全部楼层
回复

使用道具 举报

 楼主| 发表于 2017-10-18 09:16:20 | 显示全部楼层
回复

使用道具 举报

您需要登录后才可以回帖 登录 | 立即注册

本版积分规则

全国统一客服电话
0570-8028505

24x7小时免费咨询

  • 官方在线客服

    QQ客服:小西

    点击交谈

    QQ客服:良子

    点击交谈

    QQ客服:闵月

    点击交谈
  • 衢州市柯城区财富中心3号楼2楼

  • 衢州格堂装饰有限公司

  • 扫一扫关注官方微信

    获取一手特惠信息

快速回复 返回顶部 返回列表