• 手机版

    扫码体验手机版

  • 微信公众号

    扫码关注公众号

登录注册
游客您好
第三方账号登陆

[开化] 开化东方广场#85㎡现代简约——愫.居

[复制链接]
发表于 2017-9-25 16:49:39 | 显示全部楼层 |阅读模式
开化东方广场#85㎡现代简约——愫.居

格堂装饰为您全程记录装修全过程!

小区名称
开化东方广场
房屋面积
85㎡
户型结构
框架
装修风格
现代
装修方式
全包
装修造价
查看请联系客服万元
设计师
余工
项目经理
彭工
装修公司
格堂装饰
完工实景
完工实景
水电全景
水电全景
VR全景
VR全景
设计说明
待添加...
更多信息
回复

使用道具 举报

 楼主| 发表于 2017-9-25 16:50:00 | 显示全部楼层
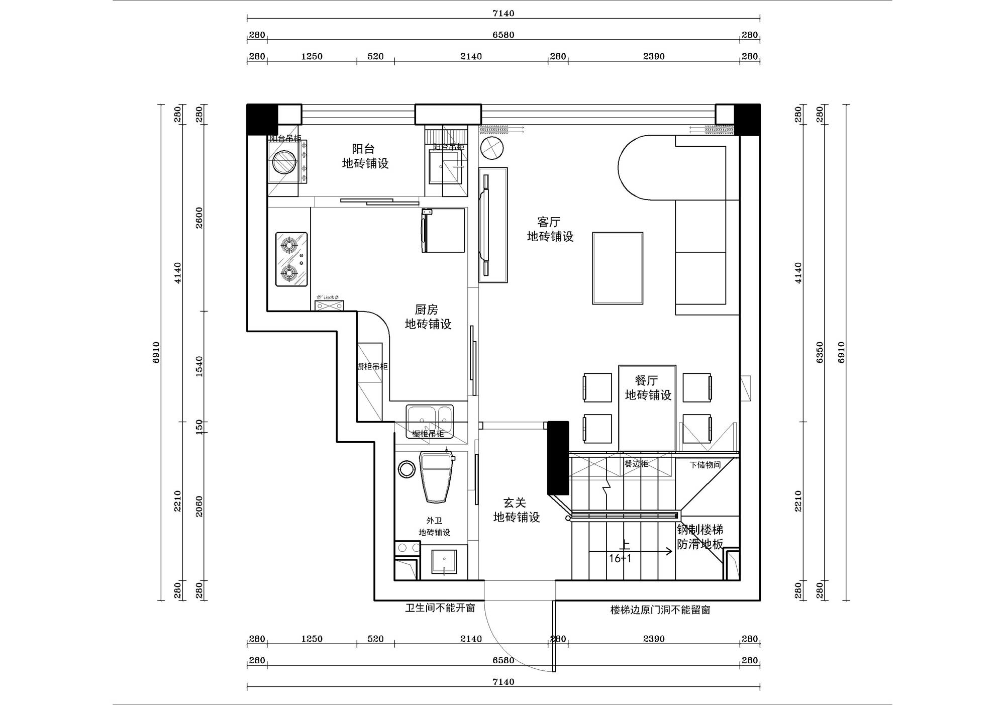
平面结构图
311829918907885464.jpg
74541692153831587.jpg
回复 支持 反对

使用道具 举报

 楼主| 发表于 2017-9-25 16:50:47 | 显示全部楼层
本帖最后由 格堂婷婷 于 2017-9-26 17:14 编辑

平面布置图
166754487914662471.jpg

335566727142026319.jpg


回复 支持 反对

使用道具 举报

 楼主| 发表于 2017-9-25 16:51:03 | 显示全部楼层

















回复

使用道具 举报

 楼主| 发表于 2017-9-25 16:51:21 | 显示全部楼层
















回复

使用道具 举报

 楼主| 发表于 2017-9-25 16:51:41 | 显示全部楼层

















回复

使用道具 举报

 楼主| 发表于 2017-9-25 16:54:16 | 显示全部楼层
开化好风景,先来看看窗外风景

IMG_6544.JPG

IMG_6591.JPG

IMG_6545.JPG


回复 支持 反对

使用道具 举报

 楼主| 发表于 2017-9-25 16:56:22 | 显示全部楼层

准备开工咯

IMG_6574.JPG

IMG_6548.JPG

IMG_6554.JPG

IMG_6555.JPG




回复 支持 反对

使用道具 举报

 楼主| 发表于 2017-9-25 17:00:08 | 显示全部楼层
吉时到,开工大吉

IMG_6565.JPG

IMG_6569.JPG


回复 支持 反对

使用道具 举报

 楼主| 发表于 2017-9-25 17:01:50 | 显示全部楼层
门槛,简易马桶保护到位

IMG_6558.JPG

IMG_6577.JPG

IMG_6578.JPG


回复 支持 反对

使用道具 举报

您需要登录后才可以回帖 登录 | 立即注册

本版积分规则

全国统一客服电话
0570-8028505

24x7小时免费咨询

  • 官方在线客服

    QQ客服:小西

    点击交谈

    QQ客服:良子

    点击交谈

    QQ客服:闵月

    点击交谈
  • 衢州市柯城区财富中心3号楼2楼

  • 衢州格堂装饰有限公司

  • 扫一扫关注官方微信

    获取一手特惠信息

快速回复 返回顶部 返回列表