• 手机版

    扫码体验手机版

  • 微信公众号

    扫码关注公众号

登录注册
游客您好
第三方账号登陆

[衢州] 【格堂**吾悦华府9**】大气而又不失自在与随意的美式风格

[复制链接]
发表于 2017-9-25 16:40:05 | 显示全部楼层 |阅读模式

格堂装饰为您全程记录装修全过程!

小区名称
吾悦华府
房屋面积
124㎡
户型结构
套房
装修风格
美式
装修方式
半包
装修造价
查看请联系客服万元
设计师
何工
项目经理
施工
装修公司
格堂装饰
完工实景
完工实景
水电全景
水电全景
VR全景
VR全景
设计说明
更多信息
本帖最后由 格堂彩霞 于 2017-12-21 11:06 编辑

效果图
2.jpg

1.jpg

设计说明:美式风格,顾名思义是来自于美国的装修和装饰风格。美国是一个崇尚自由的国家,这也造就了其自在、随意的不羁生活方式,没有太多造作的修饰与约束,不经意中也成就了另外一种休闲式的浪漫,而美国的文化又是一个移植文化为主导的脉络,它有着欧罗巴的奢侈与贵气,但又结合了美洲大陆这块水土的不羁,这样结合的结果是剔除了许多羁绊,但又能找寻文化根基的新的怀旧、贵气加大气而又不失自在与随意的风格。


回复

使用道具 举报

 楼主| 发表于 2017-9-25 16:40:34 | 显示全部楼层
原始结构图
308940594832178135_副本.jpg
回复 支持 反对

使用道具 举报

 楼主| 发表于 2017-9-25 16:41:03 | 显示全部楼层
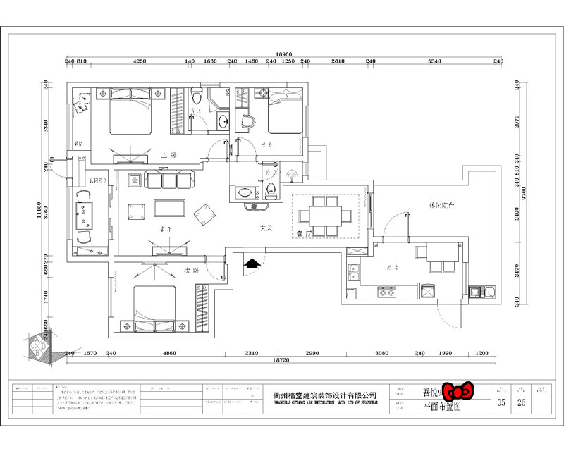
平面布置图
81856732997328862_副本.jpg
回复 支持 反对

使用道具 举报

 楼主| 发表于 2017-9-25 16:41:39 | 显示全部楼层
回复

使用道具 举报

 楼主| 发表于 2017-9-25 16:41:48 | 显示全部楼层
回复

使用道具 举报

 楼主| 发表于 2017-9-25 16:41:57 | 显示全部楼层
回复

使用道具 举报

 楼主| 发表于 2017-9-25 16:42:06 | 显示全部楼层
回复

使用道具 举报

 楼主| 发表于 2017-9-25 16:45:00 | 显示全部楼层
今天是个好日子,开工仪式准备好啦!
IMG_20170918_090413.jpg
回复 支持 反对

使用道具 举报

 楼主| 发表于 2017-9-25 16:45:29 | 显示全部楼层
煤气表保护到位
IMG_20170918_085932.jpg
回复 支持 反对

使用道具 举报

 楼主| 发表于 2017-9-25 16:46:17 | 显示全部楼层
下水管口保护到位
IMG_20170918_085741.jpg

IMG_20170918_085748.jpg

IMG_20170918_085939.jpg

IMG_20170918_085754.jpg
回复 支持 反对

使用道具 举报

您需要登录后才可以回帖 登录 | 立即注册

本版积分规则

全国统一客服电话
0570-8028505

24x7小时免费咨询

  • 官方在线客服

    QQ客服:小西

    点击交谈

    QQ客服:良子

    点击交谈

    QQ客服:闵月

    点击交谈
  • 衢州市柯城区财富中心3号楼2楼

  • 衢州格堂装饰有限公司

  • 扫一扫关注官方微信

    获取一手特惠信息

快速回复 返回顶部 返回列表