• 手机版

    扫码体验手机版

  • 微信公众号

    扫码关注公众号

登录注册
游客您好
第三方账号登陆

[衢州] 【格堂**新湖望江美寓31**】浓郁的家庭气氛在美式中诞生

[复制链接]
发表于 2017-9-24 16:24:08 | 显示全部楼层 |阅读模式

格堂装饰为您全程记录装修全过程!

小区名称
新湖望江美寓
房屋面积
126㎡
户型结构
套房
装修风格
美式
装修方式
半包
装修造价
查看请联系客服万元
设计师
胡工
项目经理
谢工
装修公司
格堂装饰
完工实景
完工实景
水电全景
水电全景
VR全景
VR全景
设计说明
更多信息
本帖最后由 格堂彩霞 于 2017-12-21 10:57 编辑

效果图
388327988053873791.jpg
回复

使用道具 举报

 楼主| 发表于 2017-9-24 16:25:03 | 显示全部楼层
原始结构图
379010520745497548_副本.jpg
回复 支持 反对

使用道具 举报

 楼主| 发表于 2017-9-24 16:25:26 | 显示全部楼层
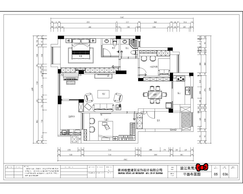
平面布置图
587516507911775731_副本.jpg
回复 支持 反对

使用道具 举报

 楼主| 发表于 2017-9-24 16:26:41 | 显示全部楼层
回复

使用道具 举报

 楼主| 发表于 2017-9-24 16:26:52 | 显示全部楼层
回复

使用道具 举报

 楼主| 发表于 2017-9-24 16:27:02 | 显示全部楼层
回复

使用道具 举报

 楼主| 发表于 2017-9-24 16:27:11 | 显示全部楼层
回复

使用道具 举报

 楼主| 发表于 2017-9-24 16:29:13 | 显示全部楼层
开工仪式准备好咯
IMG_20170920_181212.jpg
回复 支持 反对

使用道具 举报

 楼主| 发表于 2017-9-24 16:30:46 | 显示全部楼层
恭祝业主开工大吉!!!
IMG_20170920_181846_副本.jpg
好幸福的一家
IMG_20170920_181854_副本.jpg
回复 支持 反对

使用道具 举报

 楼主| 发表于 2017-9-24 16:31:23 | 显示全部楼层
本帖最后由 格堂彩霞 于 2017-9-24 16:34 编辑

业主敲下开工第一锤
IMG_20170920_182826_副本.jpg

IMG_20170920_182845.jpg
回复 支持 反对

使用道具 举报

您需要登录后才可以回帖 登录 | 立即注册

本版积分规则

全国统一客服电话
0570-8028505

24x7小时免费咨询

  • 官方在线客服

    QQ客服:小西

    点击交谈

    QQ客服:良子

    点击交谈

    QQ客服:闵月

    点击交谈
  • 衢州市柯城区财富中心3号楼2楼

  • 衢州格堂装饰有限公司

  • 扫一扫关注官方微信

    获取一手特惠信息

快速回复 返回顶部 返回列表