• 手机版

    扫码体验手机版

  • 微信公众号

    扫码关注公众号

登录注册
游客您好
第三方账号登陆

[衢州] 【格堂**鑫港尚城2**】清雅含蓄、端庄丰华的东方式精神追求

[复制链接]
发表于 2017-8-26 10:46:31 | 显示全部楼层 |阅读模式

格堂装饰为您全程记录装修全过程!

小区名称
鑫港尚城
房屋面积
150㎡
户型结构
套房
装修风格
中式
装修方式
全包
装修造价
查看请联系客服万元
设计师
王工
项目经理
施工
装修公司
格堂装饰
完工实景
完工实景
水电全景
水电全景
VR全景
VR全景
设计说明
更多信息
本帖最后由 格堂彩霞 于 2017-12-21 11:04 编辑

效果图
556300300233059190.jpg
回复

使用道具 举报

 楼主| 发表于 2017-8-26 10:46:50 | 显示全部楼层
本帖最后由 格堂彩霞 于 2017-11-14 15:56 编辑

原始结构图
212975651905017862_副本.jpg
回复 支持 反对

使用道具 举报

 楼主| 发表于 2017-8-26 10:46:59 | 显示全部楼层
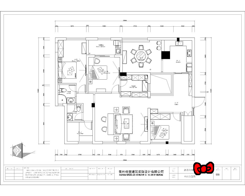
本帖最后由 格堂彩霞 于 2017-11-14 15:58 编辑

平面布置图
52216883875511608_副本.jpg
回复 支持 反对

使用道具 举报

 楼主| 发表于 2017-8-26 10:47:11 | 显示全部楼层
回复

使用道具 举报

 楼主| 发表于 2017-8-26 10:47:21 | 显示全部楼层
回复

使用道具 举报

 楼主| 发表于 2017-8-26 10:47:36 | 显示全部楼层
回复

使用道具 举报

 楼主| 发表于 2017-8-26 10:47:52 | 显示全部楼层
回复

使用道具 举报

 楼主| 发表于 2017-8-26 14:07:10 | 显示全部楼层
回复

使用道具 举报

 楼主| 发表于 2017-8-26 14:13:23 | 显示全部楼层
一大早就来开工,挑了个好日子呢
IMG_20170821_075908.jpg

IMG_20170821_080015.jpg
回复 支持 反对

使用道具 举报

 楼主| 发表于 2017-8-26 14:16:22 | 显示全部楼层
下水管口格堂专用保护盖保护好
IMG_20170821_075800.jpg

IMG_20170821_075808.jpg

IMG_20170821_075838.jpg
回复 支持 反对

使用道具 举报

您需要登录后才可以回帖 登录 | 立即注册

本版积分规则

全国统一客服电话
0570-8028505

24x7小时免费咨询

  • 官方在线客服

    QQ客服:小西

    点击交谈

    QQ客服:良子

    点击交谈

    QQ客服:闵月

    点击交谈
  • 衢州市柯城区财富中心3号楼2楼

  • 衢州格堂装饰有限公司

  • 扫一扫关注官方微信

    获取一手特惠信息

快速回复 返回顶部 返回列表