• 手机版

    扫码体验手机版

  • 微信公众号

    扫码关注公众号

登录注册
游客您好
第三方账号登陆

[衢州] 吾悦华府2-9#105㎡美式——美式不只是一种风格,也是一种生活态度

[复制链接]
发表于 2017-8-23 14:43:48 | 显示全部楼层 |阅读模式
吾悦华府2-9#105㎡美式——美式不只是一种风格,也是一种生活态度

格堂装饰为您全程记录装修全过程!

小区名称
吾悦华府
房屋面积
105㎡
户型结构
套房
装修风格
美式
装修方式
半包
装修造价
查看请联系客服万元
设计师
余工
项目经理
刘工
装修公司
格堂装饰
完工实景
完工实景
水电全景
水电全景
VR全景
VR全景
设计说明
待添加...
更多信息
本帖最后由 格堂彩霞 于 2019-1-1 10:41 编辑

效果图
608107850700592768.jpg
425363925755852421.jpg
回复

使用道具 举报

 楼主| 发表于 2017-8-23 14:47:36 | 显示全部楼层
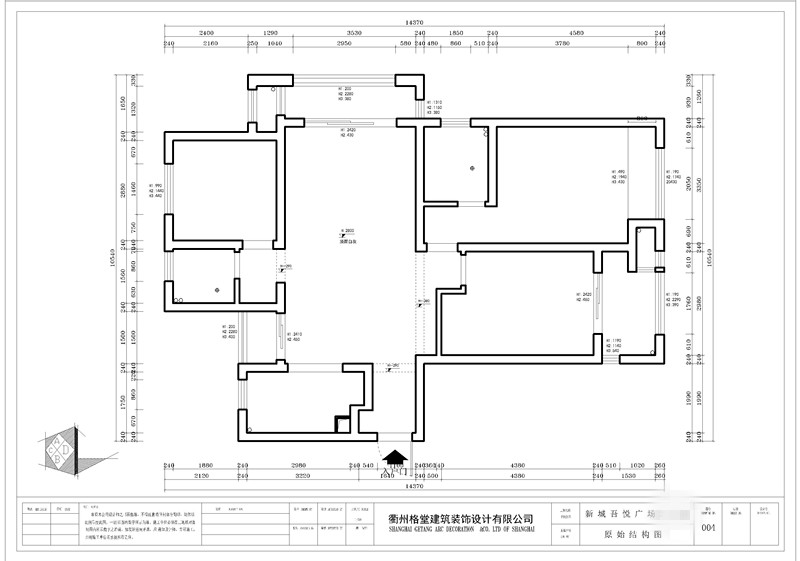
原始结构图
583853172940450408_副本.jpg
回复 支持 反对

使用道具 举报

 楼主| 发表于 2017-8-23 14:48:05 | 显示全部楼层
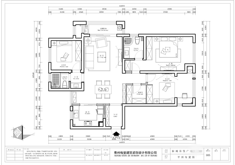
平面布置图
305986605785344122_副本.jpg
回复 支持 反对

使用道具 举报

 楼主| 发表于 2017-8-23 14:48:31 | 显示全部楼层
回复

使用道具 举报

 楼主| 发表于 2017-8-23 14:48:41 | 显示全部楼层
回复

使用道具 举报

 楼主| 发表于 2017-8-23 14:48:49 | 显示全部楼层
回复

使用道具 举报

 楼主| 发表于 2017-8-23 14:49:02 | 显示全部楼层
回复

使用道具 举报

 楼主| 发表于 2017-8-23 14:55:39 | 显示全部楼层
天气晴朗,开工的好日子!
IMG_20170821_093215.jpg

IMG_20170821_092803.jpg
回复 支持 反对

使用道具 举报

 楼主| 发表于 2017-8-23 15:06:30 | 显示全部楼层
本帖最后由 格堂彩霞 于 2017-8-23 15:54 编辑

大门先保护起来咯,防止后期磕碰到
IMG_20170821_094118.jpg

IMG_20170821_094039_副本.jpg

IMG_20170821_094458_副本.jpg
回复 支持 反对

使用道具 举报

 楼主| 发表于 2017-8-23 15:08:27 | 显示全部楼层
开工仪式准备好喽,就等吉时了
IMG_20170821_095217.jpg
回复 支持 反对

使用道具 举报

您需要登录后才可以回帖 登录 | 立即注册

本版积分规则

全国统一客服电话
0570-8028505

24x7小时免费咨询

  • 官方在线客服

    QQ客服:小西

    点击交谈

    QQ客服:良子

    点击交谈

    QQ客服:闵月

    点击交谈
  • 衢州市柯城区财富中心3号楼2楼

  • 衢州格堂装饰有限公司

  • 扫一扫关注官方微信

    获取一手特惠信息

快速回复 返回顶部 返回列表