• 手机版

    扫码体验手机版

  • 微信公众号

    扫码关注公众号

登录注册
游客您好
第三方账号登陆

[衢州] 【格堂#新城吾悦2幢#】暖心之美

[复制链接]
发表于 2017-8-23 10:46:08 | 显示全部楼层 |阅读模式

格堂装饰为您全程记录装修全过程!

小区名称
新城吾悦2幢
房屋面积
124㎡
户型结构
框架
装修风格
北欧
装修方式
全包
装修造价
查看请联系客服万元
设计师
王工
项目经理
刘工
装修公司
格堂装饰
完工实景
完工实景
水电全景
水电全景
VR全景
VR全景
设计说明
更多信息
本帖最后由 格堂婷婷 于 2017-8-23 11:49 编辑

效果图
IMG_5815.jpg



回复

使用道具 举报

 楼主| 发表于 2017-8-23 10:46:49 | 显示全部楼层
本帖最后由 格堂婷婷 于 2017-8-23 11:55 编辑

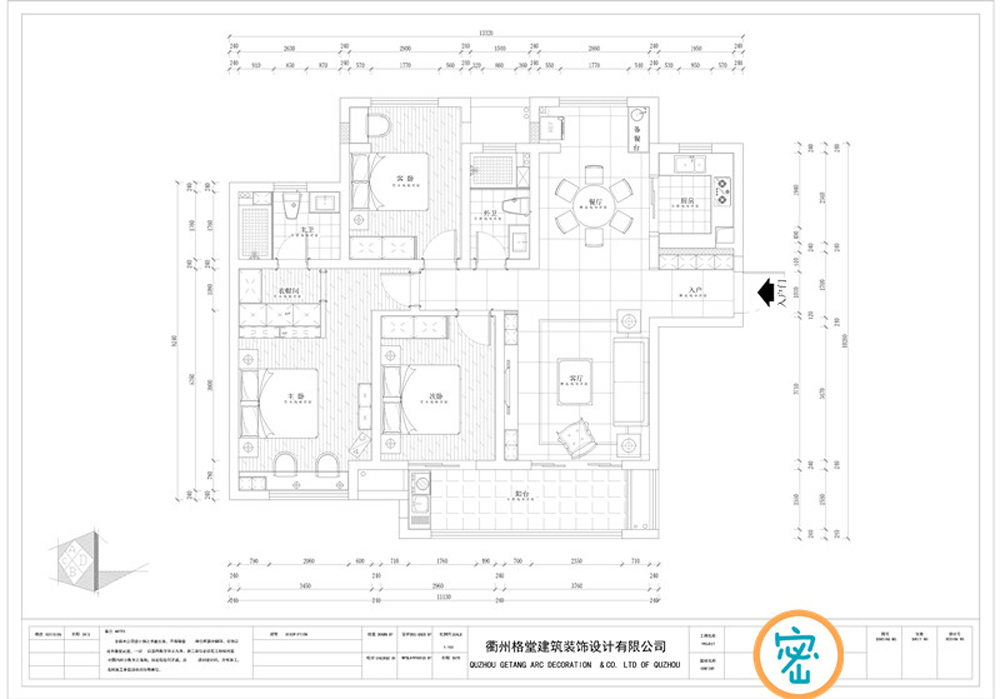
平面结构图
IMG_5855.JPG



回复 支持 反对

使用道具 举报

 楼主| 发表于 2017-8-23 10:47:20 | 显示全部楼层
本帖最后由 格堂婷婷 于 2017-8-23 11:55 编辑

平面布置图
IMG_5856.JPG





回复 支持 反对

使用道具 举报

 楼主| 发表于 2017-8-23 13:45:13 | 显示全部楼层
好日子,好天气,准备开工了

IMG_5816.JPG

IMG_5818.JPG

IMG_5819.JPG

IMG_5830.JPG


回复 支持 反对

使用道具 举报

 楼主| 发表于 2017-8-23 13:46:13 | 显示全部楼层
本帖最后由 格堂婷婷 于 2017-9-30 16:02 编辑

吉时到,开工啦

IMG_5825.JPG
IMG_5829.JPG


回复 支持 反对

使用道具 举报

 楼主| 发表于 2017-9-30 15:18:11 | 显示全部楼层
业主大人敲下开工的第一锤,开工顺顺利利

IMG_5831.JPG

IMG_5832.JPG


回复 支持 反对

使用道具 举报

 楼主| 发表于 2017-9-30 15:19:31 | 显示全部楼层
窗外美丽的风景

IMG_5834.JPG

IMG_5837.JPG


回复 支持 反对

使用道具 举报

 楼主| 发表于 2017-9-30 15:20:27 | 显示全部楼层
开始放样啦

IMG_5835.JPG

IMG_5838.JPG

IMG_5841.JPG


回复 支持 反对

使用道具 举报

 楼主| 发表于 2017-9-30 15:21:33 | 显示全部楼层
设计师在检查墙体是否能敲

IMG_5845.JPG

IMG_5843.JPG


回复 支持 反对

使用道具 举报

 楼主| 发表于 2017-9-30 15:22:25 | 显示全部楼层
拆改处
IMG_5839.JPG

IMG_5840.JPG


回复 支持 反对

使用道具 举报

您需要登录后才可以回帖 登录 | 立即注册

本版积分规则

全国统一客服电话
0570-8028505

24x7小时免费咨询

  • 官方在线客服

    QQ客服:小西

    点击交谈

    QQ客服:良子

    点击交谈

    QQ客服:闵月

    点击交谈
  • 衢州市柯城区财富中心3号楼2楼

  • 衢州格堂装饰有限公司

  • 扫一扫关注官方微信

    获取一手特惠信息

快速回复 返回顶部 返回列表