• 手机版

    扫码体验手机版

  • 微信公众号

    扫码关注公众号

登录注册
游客您好
第三方账号登陆

[衢州] 【格堂※幸福家园33※】无拘无束的自由 体会生活的美好

[复制链接]
发表于 2017-8-23 09:21:38 | 显示全部楼层 |阅读模式

格堂装饰为您全程记录装修全过程!

小区名称
幸福家园33
房屋面积
331㎡
户型结构
框架
装修风格
美式
装修方式
半包
装修造价
查看请联系客服万元
设计师
王工
项目经理
余工
装修公司
格堂装饰
完工实景
完工实景
水电全景
水电全景
VR全景
VR全景
设计说明
更多信息

回复

使用道具 举报

 楼主| 发表于 2017-8-23 09:23:35 | 显示全部楼层
           
回复 支持 反对

使用道具 举报

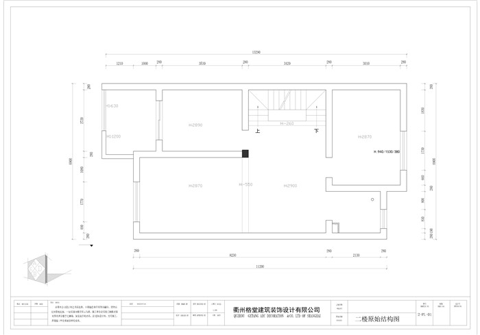
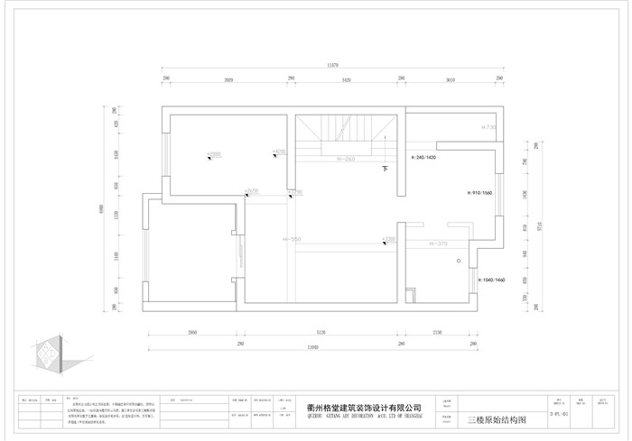
 楼主| 发表于 2017-8-23 09:23:53 | 显示全部楼层
本帖最后由 格堂彬彬 于 2017-8-25 16:37 编辑

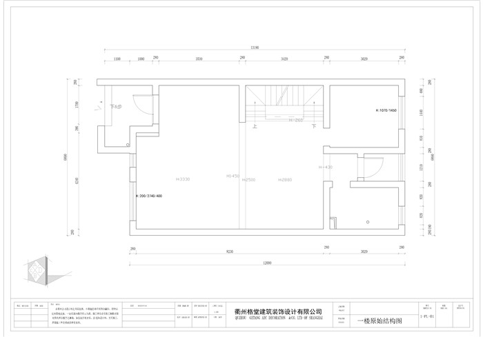
原始机构图

68fb05b779a25c1c03ca488d506d4b0c.jpg 74b541e2121f6fa0794312e4dbe07f1c.jpg
fe9ae0902cef6eab02b093481dce7668.jpg
871791cbd7cd76baa35401f020747f86.jpg





回复 支持 反对

使用道具 举报

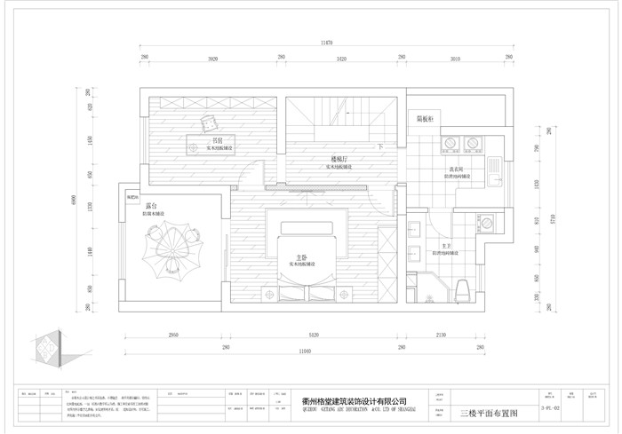
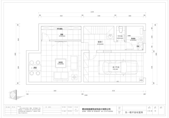
 楼主| 发表于 2017-8-23 09:24:10 | 显示全部楼层
本帖最后由 格堂彬彬 于 2017-8-25 16:40 编辑

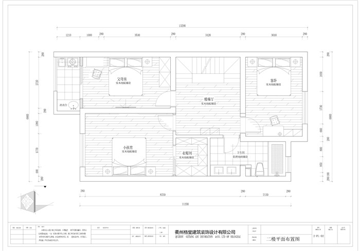
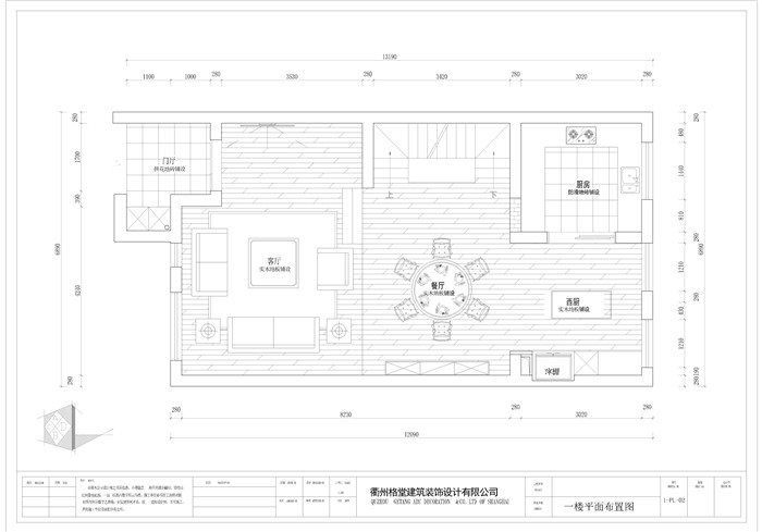
平面布置图
aa41605f3d700693fce815bfd6f475d3.jpg
160266a8b52e9a274a9e7c0eb7135eff.jpg
27ead35bae976ee33c037e2feeed21c7.jpg
a08c51bde20b00663795c83851b8bd9d.jpg

回复 支持 反对

使用道具 举报

 楼主| 发表于 2017-8-23 09:24:30 | 显示全部楼层
本帖最后由 格堂彬彬 于 2017-8-25 16:39 编辑



回复

使用道具 举报

 楼主| 发表于 2017-8-23 09:24:49 | 显示全部楼层
         
回复 支持 反对

使用道具 举报

 楼主| 发表于 2017-8-23 09:25:12 | 显示全部楼层
         
回复 支持 反对

使用道具 举报

 楼主| 发表于 2017-8-23 09:25:30 | 显示全部楼层
         
回复 支持 反对

使用道具 举报

 楼主| 发表于 2017-8-23 09:25:50 | 显示全部楼层
         
回复 支持 反对

使用道具 举报

 楼主| 发表于 2017-8-23 09:26:09 | 显示全部楼层
        
回复 支持 反对

使用道具 举报

您需要登录后才可以回帖 登录 | 立即注册

本版积分规则

全国统一客服电话
0570-8028505

24x7小时免费咨询

  • 官方在线客服

    QQ客服:小西

    点击交谈

    QQ客服:良子

    点击交谈

    QQ客服:闵月

    点击交谈
  • 衢州市柯城区财富中心3号楼2楼

  • 衢州格堂装饰有限公司

  • 扫一扫关注官方微信

    获取一手特惠信息

快速回复 返回顶部 返回列表