• 手机版

    扫码体验手机版

  • 微信公众号

    扫码关注公众号

登录注册
游客您好
第三方账号登陆

[衢州] 【格堂**月亮湾沁园3**】唯美的北欧风格,一种回归自然的亲近感

[复制链接]
发表于 2017-8-12 14:19:30 | 显示全部楼层 |阅读模式

格堂装饰为您全程记录装修全过程!

小区名称
月亮湾沁园
房屋面积
125㎡
户型结构
套房
装修风格
北欧
装修方式
全包
装修造价
查看请联系客服万元
设计师
饶工
项目经理
施工
装修公司
格堂装饰
完工实景
完工实景
水电全景
水电全景
VR全景
VR全景
设计说明
更多信息
本帖最后由 格堂彩霞 于 2017-12-21 10:52 编辑

效果图

859482852573426160.jpg

回复

使用道具 举报

 楼主| 发表于 2017-8-12 14:22:11 | 显示全部楼层
本帖最后由 格堂彩霞 于 2017-8-20 08:48 编辑

原始结构图
197999858673648580_副本.jpg
回复 支持 反对

使用道具 举报

 楼主| 发表于 2017-8-12 14:22:21 | 显示全部楼层
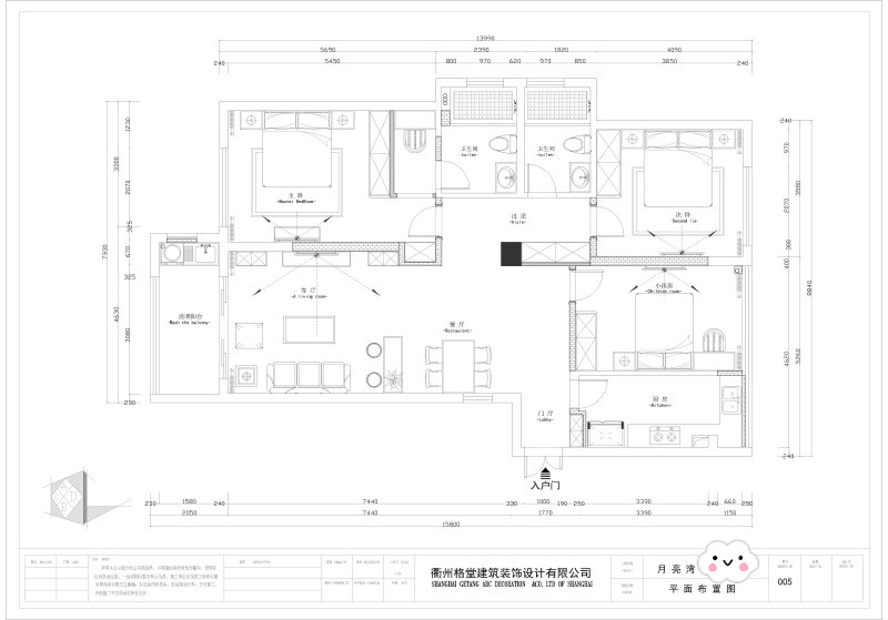
本帖最后由 格堂彩霞 于 2017-8-20 08:48 编辑

平面布置图
610229233436629757_副本.jpg
回复 支持 反对

使用道具 举报

 楼主| 发表于 2017-8-12 14:22:31 | 显示全部楼层
回复

使用道具 举报

 楼主| 发表于 2017-8-12 14:22:41 | 显示全部楼层
回复

使用道具 举报

 楼主| 发表于 2017-8-12 14:22:50 | 显示全部楼层
回复

使用道具 举报

 楼主| 发表于 2017-8-12 14:22:59 | 显示全部楼层
回复

使用道具 举报

 楼主| 发表于 2017-8-12 14:28:25 | 显示全部楼层
本帖最后由 格堂彩霞 于 2017-8-12 14:29 编辑

今天开工哦,准备先做好
IMG_5546.JPG

IMG_5549.JPG

IMG_5551.JPG
回复 支持 反对

使用道具 举报

 楼主| 发表于 2017-8-12 14:32:46 | 显示全部楼层
本帖最后由 格堂彩霞 于 2017-8-12 14:38 编辑

下水管口保护
IMG_5544.JPG

IMG_5553.JPG

回复 支持 反对

使用道具 举报

 楼主| 发表于 2017-8-12 14:37:51 | 显示全部楼层
煤气表保护
IMG_5552.JPG

IMG_5554.JPG
回复 支持 反对

使用道具 举报

您需要登录后才可以回帖 登录 | 立即注册

本版积分规则

全国统一客服电话
0570-8028505

24x7小时免费咨询

  • 官方在线客服

    QQ客服:小西

    点击交谈

    QQ客服:良子

    点击交谈

    QQ客服:闵月

    点击交谈
  • 衢州市柯城区财富中心3号楼2楼

  • 衢州格堂装饰有限公司

  • 扫一扫关注官方微信

    获取一手特惠信息

快速回复 返回顶部 返回列表