• 手机版

    扫码体验手机版

  • 微信公众号

    扫码关注公众号

登录注册
游客您好
第三方账号登陆

[衢州] 【格堂※月亮湾雅园10幢※】现代美式

[复制链接]
发表于 2017-8-4 11:44:17 | 显示全部楼层 |阅读模式

格堂装饰为您全程记录装修全过程!

小区名称
月亮湾雅园
房屋面积
125㎡
户型结构
3房2厅1厨2卫2阳台
装修风格
美式
装修方式
半包
装修造价
查看请联系客服万元
设计师
郑工
项目经理
余工
装修公司
格堂装饰
完工实景
完工实景
水电全景
水电全景
VR全景
VR全景
设计说明
更多信息
本帖最后由 格堂小徐 于 2017-8-4 11:45 编辑

效果图:
微信图片_20170804102347.jpg

回复

使用道具 举报

 楼主| 发表于 2017-8-4 11:44:57 | 显示全部楼层
本帖最后由 格堂小徐 于 2017-8-4 11:46 编辑

原始结构图:

微信图片_20170804102343.jpg
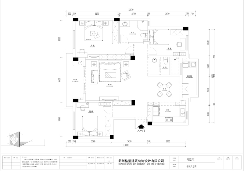
平面布置图:
微信图片_20170804102318.jpg
回复 支持 反对

使用道具 举报

 楼主| 发表于 2017-8-4 11:46:57 | 显示全部楼层

回复

使用道具 举报

 楼主| 发表于 2017-8-4 11:47:04 | 显示全部楼层

回复

使用道具 举报

 楼主| 发表于 2017-8-4 11:47:12 | 显示全部楼层

回复

使用道具 举报

 楼主| 发表于 2017-8-4 11:49:03 | 显示全部楼层
7月30日开工去
IMG_5330.jpg
回复 支持 反对

使用道具 举报

 楼主| 发表于 2017-8-4 11:50:16 | 显示全部楼层
开工仪式准备起来
IMG_5331.jpg
IMG_5332.jpg
回复 支持 反对

使用道具 举报

 楼主| 发表于 2017-8-4 11:54:28 | 显示全部楼层
王老吉、鲜花搞起来
IMG_5333.jpg
IMG_5335.jpg

回复 支持 反对

使用道具 举报

 楼主| 发表于 2017-8-4 11:57:38 | 显示全部楼层
煤气表跟水管保护到位
IMG_5345.jpg
IMG_5346.jpg
IMG_5340.jpg
IMG_5341.jpg
回复 支持 反对

使用道具 举报

 楼主| 发表于 2017-8-4 11:58:03 | 显示全部楼层
主卫
IMG_5397.jpg
IMG_5398.jpg
IMG_5399.jpg
回复 支持 反对

使用道具 举报

您需要登录后才可以回帖 登录 | 立即注册

本版积分规则

全国统一客服电话
0570-8028505

24x7小时免费咨询

  • 官方在线客服

    QQ客服:小西

    点击交谈

    QQ客服:良子

    点击交谈

    QQ客服:闵月

    点击交谈
  • 衢州市柯城区财富中心3号楼2楼

  • 衢州格堂装饰有限公司

  • 扫一扫关注官方微信

    获取一手特惠信息

快速回复 返回顶部 返回列表