• 手机版

    扫码体验手机版

  • 微信公众号

    扫码关注公众号

登录注册
游客您好
第三方账号登陆

[衢州] 【格堂※阳光水岸7幢※】美,而不同

[复制链接]
发表于 2017-8-1 14:14:05 | 显示全部楼层 |阅读模式

格堂装饰为您全程记录装修全过程!

小区名称
阳光水岸
房屋面积
123㎡
户型结构
框架
装修风格
美式
装修方式
半包
装修造价
查看请联系客服万元
设计师
毛工
项目经理
谢工
装修公司
格堂装饰
完工实景
完工实景
水电全景
水电全景
VR全景
VR全景
设计说明
更多信息
本帖最后由 格堂小徐 于 2017-8-4 11:14 编辑

效果图:

微信图片_20170804102533.jpg
微信图片_20170804102557.jpg
回复

使用道具 举报

 楼主| 发表于 2017-8-1 14:14:32 | 显示全部楼层
本帖最后由 格堂小徐 于 2017-8-4 11:14 编辑

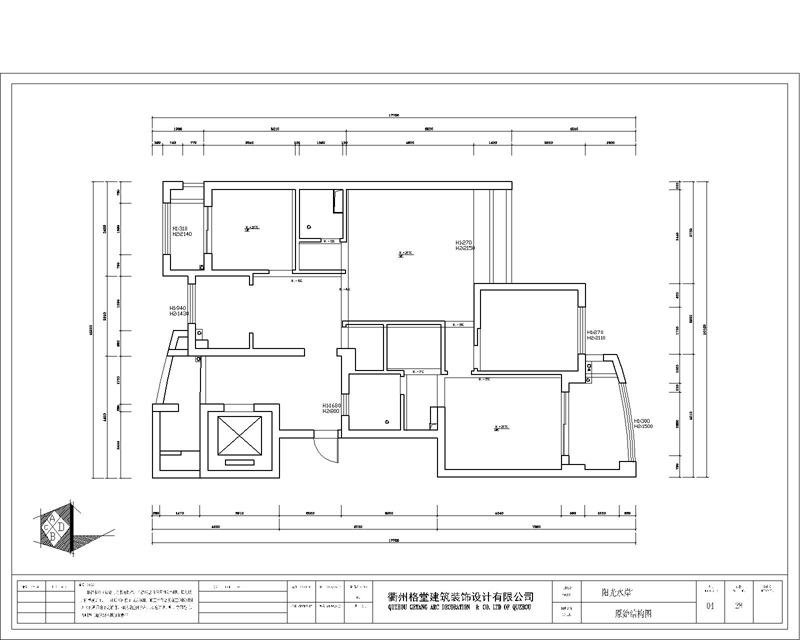
原始结构图:
微信图片_20170804102613.jpg

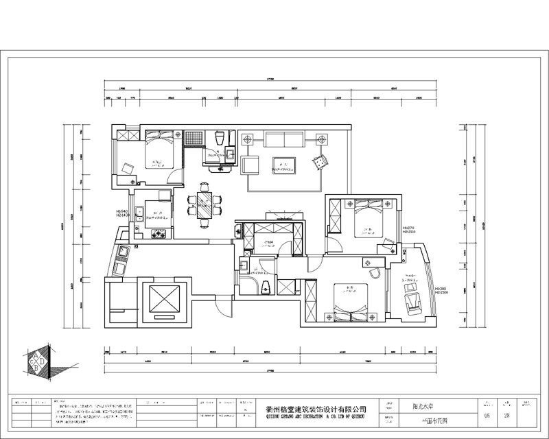
平面布置图:
微信图片_20170804102609.jpg
回复 支持 反对

使用道具 举报

 楼主| 发表于 2017-8-1 14:14:42 | 显示全部楼层

回复

使用道具 举报

 楼主| 发表于 2017-8-1 14:14:49 | 显示全部楼层

回复

使用道具 举报

 楼主| 发表于 2017-8-1 14:14:56 | 显示全部楼层

回复

使用道具 举报

 楼主| 发表于 2017-8-1 14:15:08 | 显示全部楼层

回复

使用道具 举报

 楼主| 发表于 2017-8-1 14:19:18 | 显示全部楼层
7月27日,开工去咯!
IMG_5241.jpg
IMG_5238.jpg
IMG_5239.jpg
回复 支持 反对

使用道具 举报

 楼主| 发表于 2017-8-1 14:20:13 | 显示全部楼层
开始做保护工作
简易马桶到位
IMG_5242.jpg
IMG_5243.jpg


回复 支持 反对

使用道具 举报

 楼主| 发表于 2017-8-1 14:20:51 | 显示全部楼层
门套保护进行中
IMG_5266.jpg
IMG_5267.jpg
回复 支持 反对

使用道具 举报

 楼主| 发表于 2017-8-1 14:21:26 | 显示全部楼层
开工仪式准备
IMG_5244.jpg
IMG_5246.jpg
IMG_5247.jpg

回复 支持 反对

使用道具 举报

您需要登录后才可以回帖 登录 | 立即注册

本版积分规则

全国统一客服电话
0570-8028505

24x7小时免费咨询

  • 官方在线客服

    QQ客服:小西

    点击交谈

    QQ客服:良子

    点击交谈

    QQ客服:闵月

    点击交谈
  • 衢州市柯城区财富中心3号楼2楼

  • 衢州格堂装饰有限公司

  • 扫一扫关注官方微信

    获取一手特惠信息

快速回复 返回顶部 返回列表