• 手机版

    扫码体验手机版

  • 微信公众号

    扫码关注公众号

登录注册
游客您好
第三方账号登陆

[衢州] 【格堂**玫瑰园65**】深沉里显露尊贵、典雅中浸透豪华

[复制链接]
发表于 2017-7-28 10:03:00 | 显示全部楼层 |阅读模式

格堂装饰为您全程记录装修全过程!

小区名称
玫瑰园
房屋面积
440㎡
户型结构
排屋
装修风格
简欧
装修方式
半包
装修造价
查看请联系客服万元
设计师
吕工
项目经理
施工
装修公司
格堂装饰
完工实景
完工实景
水电全景
水电全景
VR全景
VR全景
设计说明
更多信息
本帖最后由 格堂彩霞 于 2017-12-21 10:57 编辑

效果图
玫瑰主卧 水印.jpg
设计说明:
简欧风格,即有欧式设计风格的一些元素,又充分利用了现代简约设计的某些优势。简欧风格的室内设计打破以往欧式深沉的色彩,大量使用的白色调,把欧式风格设计融入现代设计中浑然一体家居风格。
白色调时尚温馨不突兀,客厅的白色墙面发出的是淡雅清新的现代简欧味道,时尚的米白色调沙发与电视背景墙的呼应,让整个客厅营造出时尚、高贵、轻松、愉悦的视觉感空间,营造出一个朴实之中的时尚简欧家居设计。 卧室同样延续了客厅以白色为主调的设计风格,白色简约的背景墙,加上浅暖黄色的窗帘,明亮的空间,卧室变得充满阳光、安静、舒适,可以让人有很好休息、睡眠。 餐厅是家居生活的心脏,不仅要美观,更重要的实用性,整体性。餐厅的灯光很重要既不能太强又不能太弱,顶部做了简单的吊顶。以米黄色为主色调,在灯光的映衬下,温馨暖和的浅橙色让人胃口大开。简欧风格的核心是去繁就简,留下简单的线条和几何图案。
无论是古典欧式风格还是简欧风格,其设计哲学都是追求深沉里显露尊贵、典雅中浸透豪华的设计表现,并期望这种表现能够完整地体现出居住人追求品质、典雅生活,视生活为艺术的人生态度。

回复

使用道具 举报

 楼主| 发表于 2017-7-28 10:31:50 | 显示全部楼层
地下室原始结构图
新湖玫瑰园7.6(1)(1)-地下室原始结构_副本.jpg
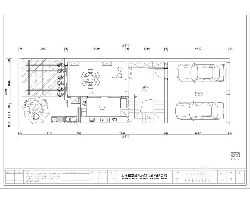
地下室平面布置图
新湖玫瑰园地下室平面_副本.jpg
回复 支持 反对

使用道具 举报

 楼主| 发表于 2017-7-28 10:34:36 | 显示全部楼层
一楼原始结构图
新湖玫瑰园一楼原始结构_副本.jpg
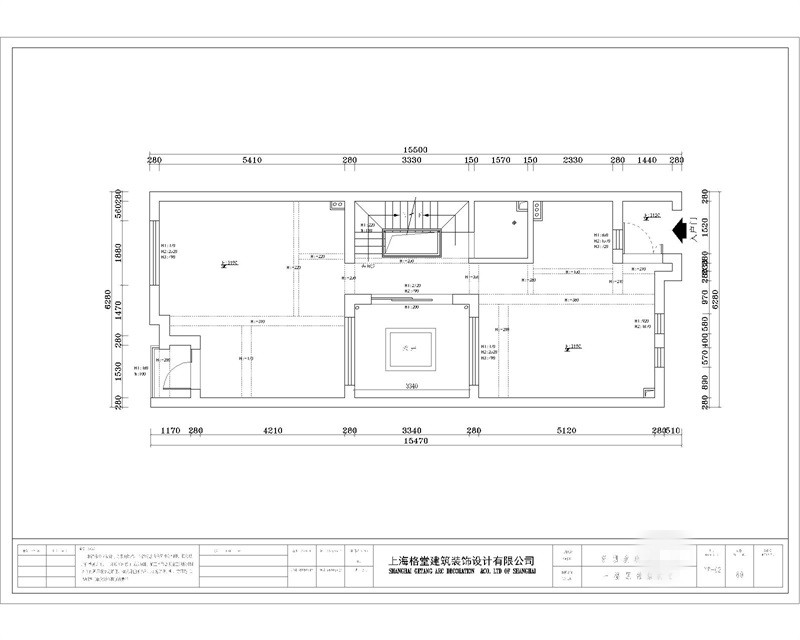
一楼平面布置图
新湖玫瑰园一楼平面_副本.jpg
回复 支持 反对

使用道具 举报

 楼主| 发表于 2017-7-28 10:35:54 | 显示全部楼层
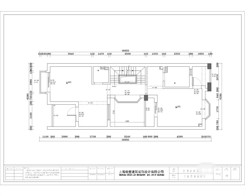
二楼原始结构图
新湖玫瑰园二楼原始结构图_副本.jpg
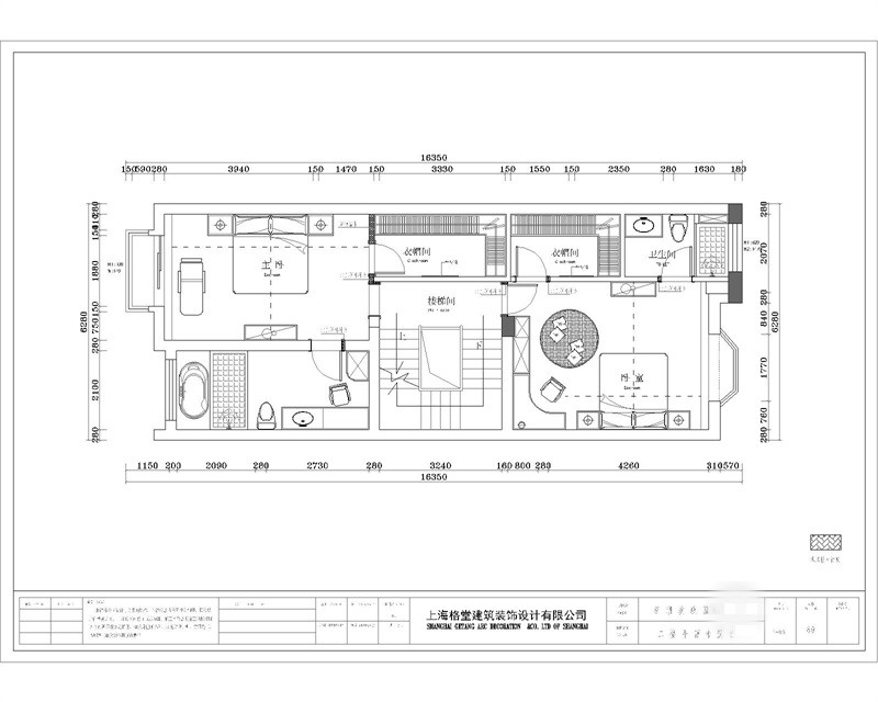
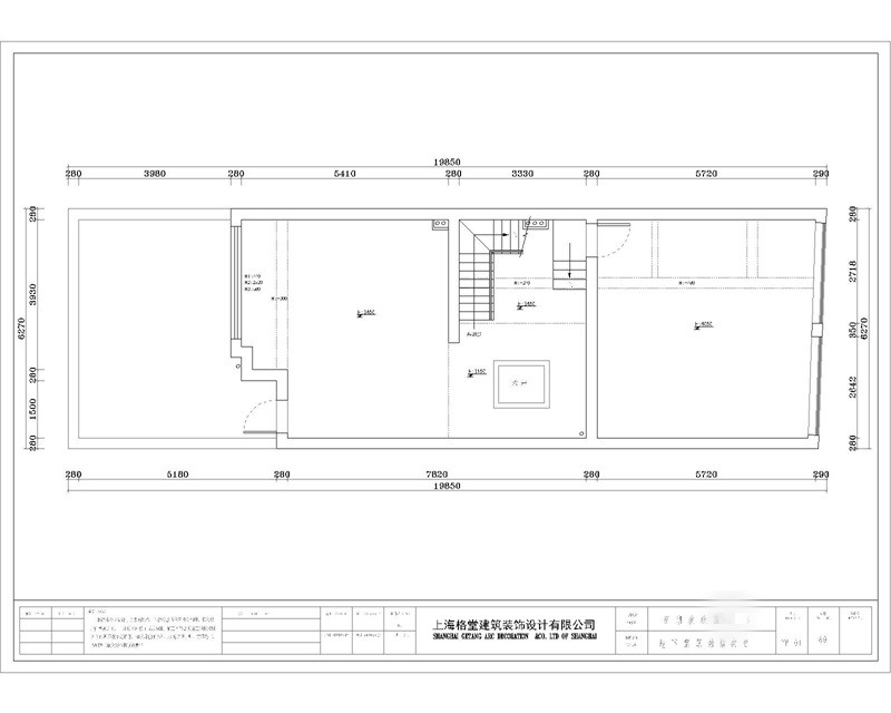
二楼平面布置图
新湖玫瑰园二楼平面_副本.jpg
回复 支持 反对

使用道具 举报

 楼主| 发表于 2017-7-28 10:37:08 | 显示全部楼层
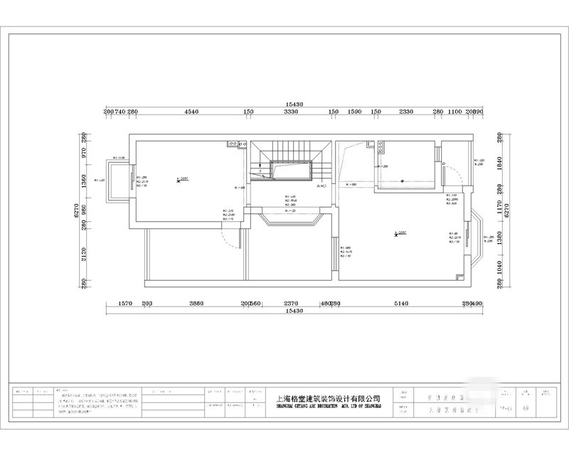
三楼原始结构图
新湖玫瑰园三楼原始结构图_副本.jpg
三楼平面布置图
新湖玫瑰园三楼平面_副本.jpg
回复 支持 反对

使用道具 举报

 楼主| 发表于 2017-7-28 10:38:58 | 显示全部楼层
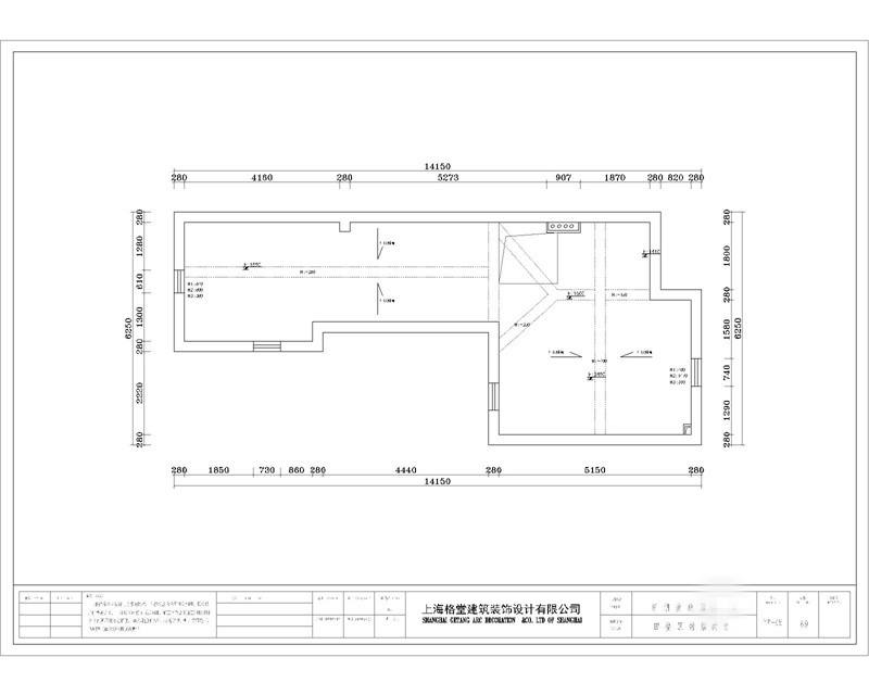
四楼原始结构图
新湖玫瑰园四楼原始结构图_副本.jpg
四楼平面布置图
新湖玫瑰园四楼平面_副本.jpg
回复 支持 反对

使用道具 举报

 楼主| 发表于 2017-7-28 10:41:38 | 显示全部楼层
回复

使用道具 举报

 楼主| 发表于 2017-7-28 10:41:51 | 显示全部楼层
回复

使用道具 举报

 楼主| 发表于 2017-7-28 10:42:01 | 显示全部楼层
回复

使用道具 举报

 楼主| 发表于 2017-7-28 10:42:09 | 显示全部楼层
回复

使用道具 举报

您需要登录后才可以回帖 登录 | 立即注册

本版积分规则

全国统一客服电话
0570-8028505

24x7小时免费咨询

  • 官方在线客服

    QQ客服:小西

    点击交谈

    QQ客服:良子

    点击交谈

    QQ客服:闵月

    点击交谈
  • 衢州市柯城区财富中心3号楼2楼

  • 衢州格堂装饰有限公司

  • 扫一扫关注官方微信

    获取一手特惠信息

快速回复 返回顶部 返回列表