• 手机版

    扫码体验手机版

  • 微信公众号

    扫码关注公众号

登录注册
游客您好
第三方账号登陆

[衢州] 【格堂#春江月14幢#】光.年

[复制链接]
发表于 2017-7-23 11:28:59 | 显示全部楼层 |阅读模式

格堂装饰为您全程记录装修全过程!

小区名称
春江月14幢
房屋面积
120㎡
户型结构
框架
装修风格
现代
装修方式
半包
装修造价
查看请联系客服万元
设计师
张工
项目经理
余工
装修公司
格堂装饰
完工实景
完工实景
水电全景
水电全景
VR全景
VR全景
设计说明
更多信息
本帖最后由 格堂婷婷 于 2017-8-20 14:37 编辑

效果图
318891132709607019.jpg



回复

使用道具 举报

 楼主| 发表于 2017-7-23 11:30:14 | 显示全部楼层
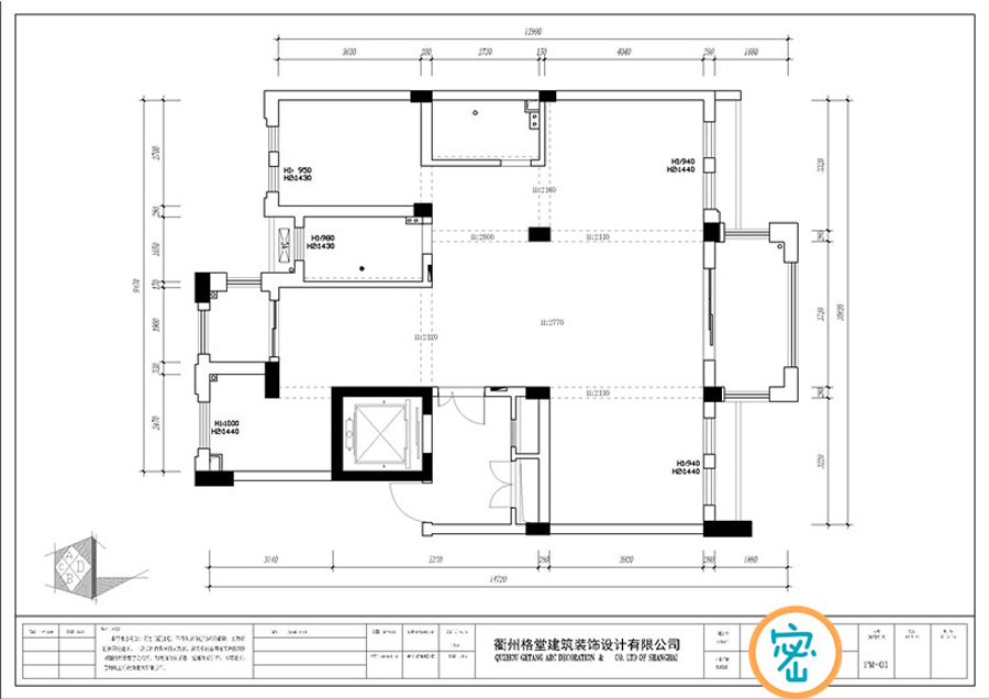
本帖最后由 格堂婷婷 于 2017-8-20 14:38 编辑

平面结构图

272508807552025656.jpg


回复 支持 反对

使用道具 举报

 楼主| 发表于 2017-7-23 11:30:42 | 显示全部楼层
本帖最后由 格堂婷婷 于 2017-8-20 14:39 编辑

平面布置图
244719532723727799.jpg



回复 支持 反对

使用道具 举报

 楼主| 发表于 2017-7-23 11:31:20 | 显示全部楼层

















回复

使用道具 举报

 楼主| 发表于 2017-7-23 11:32:01 | 显示全部楼层

















回复

使用道具 举报

 楼主| 发表于 2017-7-23 11:32:37 | 显示全部楼层

















回复

使用道具 举报

 楼主| 发表于 2017-7-23 11:34:45 | 显示全部楼层
本帖最后由 格堂婷婷 于 2017-7-23 11:38 编辑

准备开始放样咯

IMG_4451.JPG

IMG_4439.JPG
IMG_4434.JPG



回复 支持 反对

使用道具 举报

 楼主| 发表于 2017-7-23 11:36:09 | 显示全部楼层
煤气管道保护到位

IMG_4435.JPG

IMG_4436.JPG

IMG_4437.JPG


回复 支持 反对

使用道具 举报

 楼主| 发表于 2017-7-23 11:37:36 | 显示全部楼层
简易马桶及管道保护到位

IMG_4433.JPG

IMG_4432.JPG

IMG_4431.JPG


回复 支持 反对

使用道具 举报

 楼主| 发表于 2017-7-23 11:42:19 | 显示全部楼层
设计师和项目经理认真的和业主够沟通图纸
IMG_4442.JPG

IMG_4449.JPG

IMG_4443.JPG

IMG_4444.JPG

IMG_4450.JPG


回复 支持 反对

使用道具 举报

您需要登录后才可以回帖 登录 | 立即注册

本版积分规则

全国统一客服电话
0570-8028505

24x7小时免费咨询

  • 官方在线客服

    QQ客服:小西

    点击交谈

    QQ客服:良子

    点击交谈

    QQ客服:闵月

    点击交谈
  • 衢州市柯城区财富中心3号楼2楼

  • 衢州格堂装饰有限公司

  • 扫一扫关注官方微信

    获取一手特惠信息

快速回复 返回顶部 返回列表