• 手机版

    扫码体验手机版

  • 微信公众号

    扫码关注公众号

登录注册
游客您好
第三方账号登陆

[衢州] 【格堂※幸福家园8幢※】大气而又不失自在与随意

[复制链接]
发表于 2017-7-14 10:37:50 | 显示全部楼层 |阅读模式

格堂装饰为您全程记录装修全过程!

小区名称
幸福家园
房屋面积
335㎡
户型结构
框架
装修风格
美式
装修方式
半包
装修造价
查看请联系客服万元
设计师
王工
项目经理
余工
装修公司
格堂装饰
完工实景
完工实景
水电全景
水电全景
VR全景
VR全景
设计说明
更多信息
本帖最后由 格堂小徐 于 2017-8-19 09:57 编辑


回复

使用道具 举报

 楼主| 发表于 2017-7-14 11:15:46 | 显示全部楼层
负一楼:原始结构图:
负一楼原始结构图.jpg

平面结构图:

负一楼平面布置图.jpg
回复 支持 反对

使用道具 举报

 楼主| 发表于 2017-7-14 11:16:58 | 显示全部楼层
一楼:
原始结构图:
一楼原始结构图.jpg

平面布置图:
一楼平面布置图.jpg
回复 支持 反对

使用道具 举报

 楼主| 发表于 2017-7-14 11:17:32 | 显示全部楼层
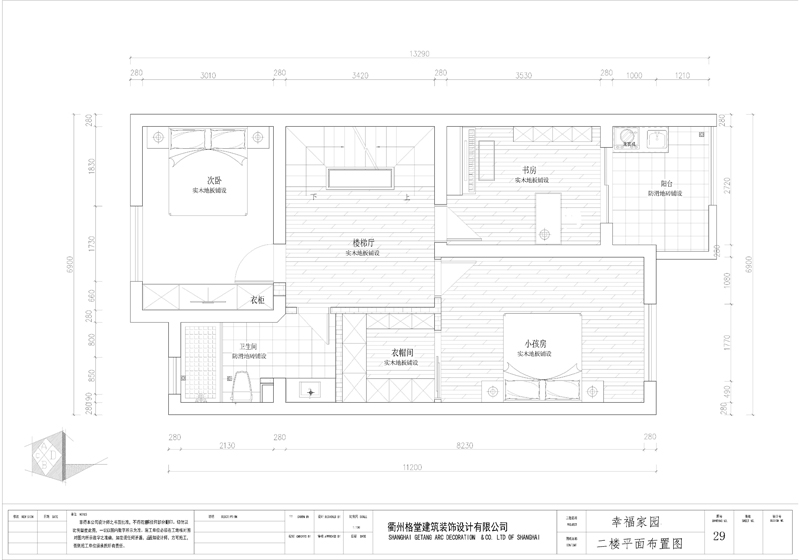
二楼:
原始结构图:
二楼原始结构图.jpg
平面布置图:
二楼平面布置图.jpg
回复 支持 反对

使用道具 举报

 楼主| 发表于 2017-7-14 11:18:07 | 显示全部楼层
三楼:
原始结构图:

平面布置图:
三楼平面布置图.jpg
回复 支持 反对

使用道具 举报

 楼主| 发表于 2017-7-14 11:39:12 | 显示全部楼层
7月2号,万事皆宜的好日子,我们开工去!
IMG_7228.jpg
IMG_7209.jpg
IMG_7212.jpg
回复 支持 反对

使用道具 举报

 楼主| 发表于 2017-7-14 11:47:49 | 显示全部楼层
开工仪式已经准备好咯
IMG_7227.jpg
回复 支持 反对

使用道具 举报

 楼主| 发表于 2017-7-14 11:55:57 | 显示全部楼层
离吉时还有些时间,开始拆改放样

负一楼的原有平台要往下拆哦
IMG_7223.jpg
IMG_7224_副本.jpg
IMG_7225_副本.jpg
回复 支持 反对

使用道具 举报

 楼主| 发表于 2017-7-14 13:42:59 | 显示全部楼层
负一楼茶室位置
IMG_7214.jpg
IMG_7216.jpg
IMG_7218.jpg
回复 支持 反对

使用道具 举报

 楼主| 发表于 2017-7-14 13:45:01 | 显示全部楼层
厨房位置的这面墙要拆除
IMG_7229_副本.jpg
IMG_7230.jpg
IMG_7232.jpg
IMG_7233.jpg
回复 支持 反对

使用道具 举报

您需要登录后才可以回帖 登录 | 立即注册

本版积分规则

全国统一客服电话
0570-8028505

24x7小时免费咨询

  • 官方在线客服

    QQ客服:小西

    点击交谈

    QQ客服:良子

    点击交谈

    QQ客服:闵月

    点击交谈
  • 衢州市柯城区财富中心3号楼2楼

  • 衢州格堂装饰有限公司

  • 扫一扫关注官方微信

    获取一手特惠信息

快速回复 返回顶部 返回列表