• 手机版

    扫码体验手机版

  • 微信公众号

    扫码关注公众号

登录注册
游客您好
第三方账号登陆

【格堂★阳光水岸16๑۩۩.. 】回归自然悠闲、舒畅、自然的生活情趣

[复制链接]
发表于 2017-6-29 09:14:02 | 显示全部楼层 |阅读模式
                    Basic        information            

       【小    区】阳光水岸

      【面    积】205平米

         【装修风格】英式风格

【房    型】套房

                  【设计&施工公司】格堂装饰

   【设 计 师】苏工

——————————    设计说明    ——————————

      本案业主也是搞工程的,对家装工艺也有所了解,因此对我们格堂的高标准 工艺规范表示认可;业主这套房子户型算是小区里非常好的户型了,江景房 !大客厅餐厅!采光通风原始结构就已经不错了!再经过一番设计之后,更 是扩大提升了该户型的优点并规避了缺点,比如一进门专门隔了一个玄关背 景,不仅不影响采光,还通过改变进厅方向使得客餐厅玄关各功能区域分明 ,厨房的设计也别出心裁,在餐厅与厨房之间设计了两隔墙门套,不仅可以 放厨房高柜电器,还将厨房和餐厅的缓冲区域扩大,风格造型上公共区域全 部采用弧形门套造型,不要小看弧形这一点,它可以瞬间提升整个空间的温 馨柔和感,使得英式风格更具田园自然和谐,再配上温馨质感的米黄色仿古 砖设计和背景罗马柱设计,使得空间除了温馨柔和外还不失大气!餐厅的设 计更是将英式的田园自然、沉稳复古、优雅大气、温馨柔和的特点完美诠释 ,梁位的借用与创造成就了这间餐厅!总而言之,业主的温馨幸福之家即将 实现!

效果图▼▼▼
1.jpg

2.jpg

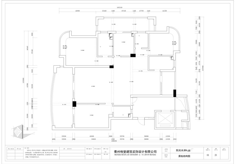
原始结构图▼▼▼
3.jpg



格堂装饰网www.gtzs.com首创衢城(甚至全国)装修全新模式,为您记录装修全过程,有专门客服为您记录装修全过程传到格堂公司内部网站!
回复

使用道具 举报

 楼主| 发表于 2017-6-29 09:19:05 | 显示全部楼层
客厅▼▼▼

1L6A9582.jpg


1L6A9584.jpg


1L6A9589.jpg


1L6A9593.jpg

格堂装饰网www.gtzs.com首创衢城(甚至全国)装修全新模式,为您记录装修全过程,有专门客服为您记录装修全过程传到格堂公司内部网站!
回复 支持 反对

使用道具 举报

 楼主| 发表于 2017-6-29 09:30:43 | 显示全部楼层
客厅▼▼▼

1L6A9595.jpg


1L6A9598.jpg


1L6A9604.jpg


1L6A9609.jpg

格堂装饰网www.gtzs.com首创衢城(甚至全国)装修全新模式,为您记录装修全过程,有专门客服为您记录装修全过程传到格堂公司内部网站!
回复 支持 反对

使用道具 举报

 楼主| 发表于 2017-6-29 09:32:18 | 显示全部楼层
客厅▼▼▼

1L6A9621.jpg


1L6A9634.jpg


1L6A9730.jpg

1L6A9747.jpg

格堂装饰网www.gtzs.com首创衢城(甚至全国)装修全新模式,为您记录装修全过程,有专门客服为您记录装修全过程传到格堂公司内部网站!
回复 支持 反对

使用道具 举报

 楼主| 发表于 2017-6-29 09:35:53 | 显示全部楼层
餐厅▼▼▼

1L6A9630.jpg


1L6A9638.jpg


1L6A9649.jpg

格堂装饰网www.gtzs.com首创衢城(甚至全国)装修全新模式,为您记录装修全过程,有专门客服为您记录装修全过程传到格堂公司内部网站!
回复 支持 反对

使用道具 举报

 楼主| 发表于 2017-6-29 09:38:42 | 显示全部楼层
餐厅▼▼▼

1L6A9643.jpg


1L6A9651.jpg


1L6A9654.jpg


1L6A9709.jpg

格堂装饰网www.gtzs.com首创衢城(甚至全国)装修全新模式,为您记录装修全过程,有专门客服为您记录装修全过程传到格堂公司内部网站!
回复 支持 反对

使用道具 举报

 楼主| 发表于 2017-6-29 09:40:29 | 显示全部楼层
玄关▼▼▼

1L6A9625.jpg


1L6A9659.jpg

格堂装饰网www.gtzs.com首创衢城(甚至全国)装修全新模式,为您记录装修全过程,有专门客服为您记录装修全过程传到格堂公司内部网站!
回复 支持 反对

使用道具 举报

 楼主| 发表于 2017-6-29 09:43:47 | 显示全部楼层
阳台▼▼▼

1L6A9614.jpg


1L6A9618.jpg


1L6A9662.jpg


1L6A9664.jpg

格堂装饰网www.gtzs.com首创衢城(甚至全国)装修全新模式,为您记录装修全过程,有专门客服为您记录装修全过程传到格堂公司内部网站!
回复 支持 反对

使用道具 举报

 楼主| 发表于 2017-6-29 09:45:16 | 显示全部楼层
厨房▼▼▼

1L6A9697.jpg


1L6A9700.jpg


1L6A9704.jpg


1L6A9706.jpg

格堂装饰网www.gtzs.com首创衢城(甚至全国)装修全新模式,为您记录装修全过程,有专门客服为您记录装修全过程传到格堂公司内部网站!
回复 支持 反对

使用道具 举报

 楼主| 发表于 2017-6-29 09:46:54 | 显示全部楼层
主卧▼▼▼

1L6A9682.jpg


1L6A9687.jpg


1L6A9689.jpg

格堂装饰网www.gtzs.com首创衢城(甚至全国)装修全新模式,为您记录装修全过程,有专门客服为您记录装修全过程传到格堂公司内部网站!
回复 支持 反对

使用道具 举报

您需要登录后才可以回帖 登录 | 立即注册

本版积分规则

全国统一客服电话
0570-8028505

24x7小时免费咨询

  • 官方在线客服

    QQ客服:小西

    点击交谈

    QQ客服:良子

    点击交谈

    QQ客服:闵月

    点击交谈
  • 衢州市柯城区财富中心3号楼2楼

  • 衢州格堂装饰有限公司

  • 扫一扫关注官方微信

    获取一手特惠信息

快速回复 返回顶部 返回列表