• 手机版

    扫码体验手机版

  • 微信公众号

    扫码关注公众号

登录注册
游客您好
第三方账号登陆

[衢州] 【格堂★横路自建房๑۩۩.. 】追求华丽、高雅的欧式风格

[复制链接]
发表于 2017-6-20 15:01:33 | 显示全部楼层 |阅读模式

格堂装饰为您全程记录装修全过程!

小区名称
横路自建房
房屋面积
355㎡
户型结构
框架
装修风格
欧式
装修方式
半包
装修造价
查看请联系客服万元
设计师
吕工
项目经理
施工
装修公司
格堂装饰
完工实景
完工实景
水电全景
水电全景
VR全景
VR全景
设计说明
更多信息
本帖最后由 格堂小诗 于 2017-6-20 15:05 编辑

设计说明:


一楼客厅效果图:

拱门.jpg

三楼娱乐室效果图:

娱乐室().jpg

二楼主卧效果图:

LX自建房主卧 (2).jpg


回复

使用道具 举报

 楼主| 发表于 2017-6-20 15:03:34 | 显示全部楼层

一楼原始结构图:

自建房1(1)(1)-Model.jpg

二楼原始结构图:

自建房1(1)(1)-Mode.jpg

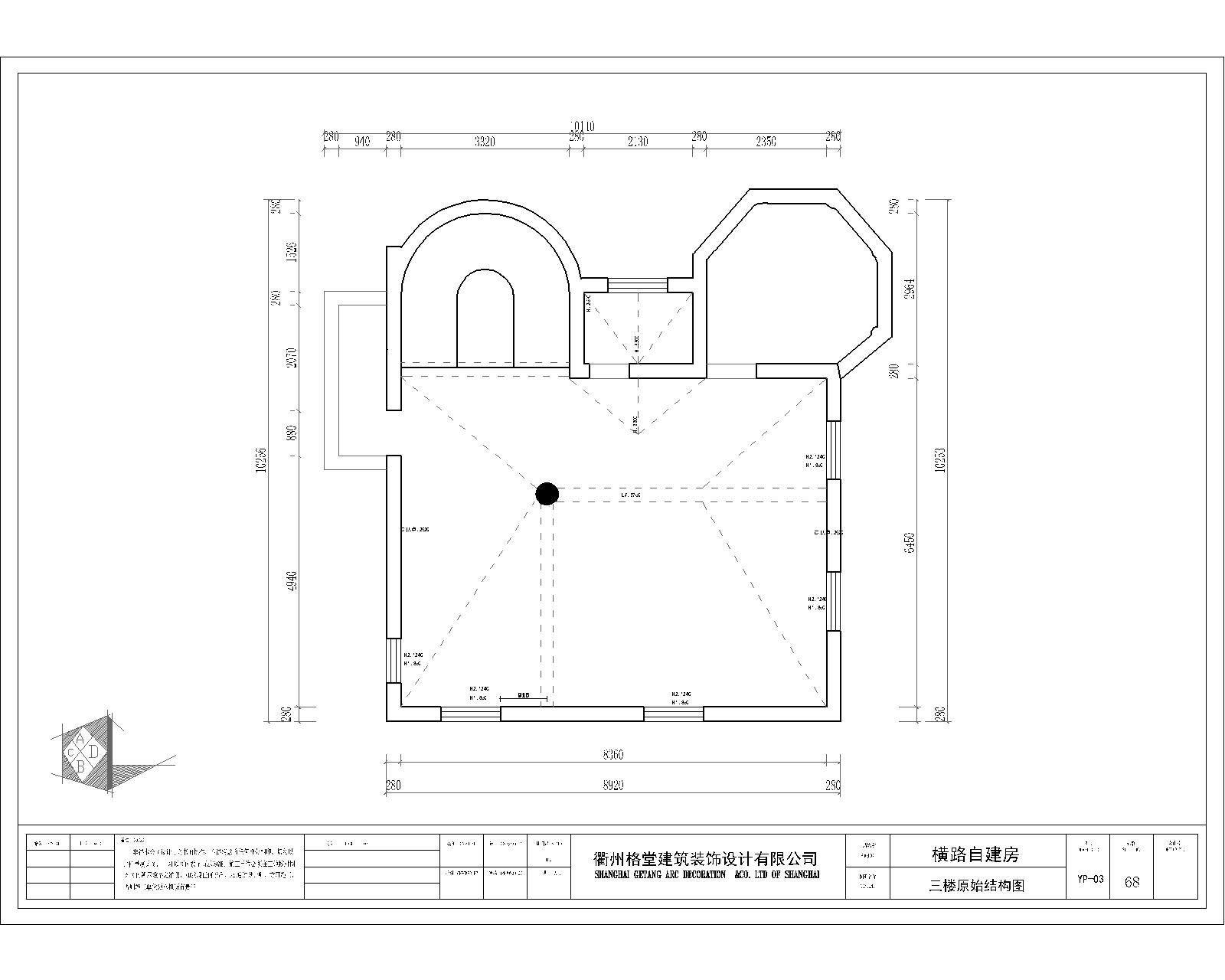
三楼原始结构图:

自建房1(1)(1)-Mel.jpg


回复 支持 反对

使用道具 举报

 楼主| 发表于 2017-6-20 15:07:51 | 显示全部楼层

回复

使用道具 举报

 楼主| 发表于 2017-6-20 15:08:24 | 显示全部楼层


回复

使用道具 举报

 楼主| 发表于 2017-6-20 15:09:49 | 显示全部楼层

回复

使用道具 举报

 楼主| 发表于 2017-6-21 08:19:06 | 显示全部楼层

到啦到啦!超大的院子

IMG_1432.JPG
回复 支持 反对

使用道具 举报

 楼主| 发表于 2017-6-21 10:03:21 | 显示全部楼层

我们这边设计师吕工,项目经理施工还有敲墙师傅先放样哈,看看哪里要拆要改的

IMG_1435.JPG

IMG_1438.JPG

IMG_1439.JPG


回复 支持 反对

使用道具 举报

 楼主| 发表于 2017-6-21 10:26:25 | 显示全部楼层

各个位置敲墙放样

IMG_1447.JPG

IMG_1449.JPG

IMG_1450.JPG


回复 支持 反对

使用道具 举报

 楼主| 发表于 2017-6-21 10:28:46 | 显示全部楼层

10:18分吉时到!恭祝业主开工大吉!!

IMG_1465_副本.jpg
回复 支持 反对

使用道具 举报

 楼主| 发表于 2017-6-21 10:30:24 | 显示全部楼层

业主大人敲响开工第一锤 !

IMG_1472_副本.jpg
回复 支持 反对

使用道具 举报

您需要登录后才可以回帖 登录 | 立即注册

本版积分规则

全国统一客服电话
0570-8028505

24x7小时免费咨询

  • 官方在线客服

    QQ客服:小西

    点击交谈

    QQ客服:良子

    点击交谈

    QQ客服:闵月

    点击交谈
  • 衢州市柯城区财富中心3号楼2楼

  • 衢州格堂装饰有限公司

  • 扫一扫关注官方微信

    获取一手特惠信息

快速回复 返回顶部 返回列表