• 手机版

    扫码体验手机版

  • 微信公众号

    扫码关注公众号

登录注册
游客您好
第三方账号登陆

[衢州] 【格堂$$银湖山庄湖畔居5*】端庄风华的东方式精神界的的追求

[复制链接]
发表于 2017-6-7 16:42:13 | 显示全部楼层 |阅读模式

格堂装饰为您全程记录装修全过程!

小区名称
银湖山庄湖畔居
房屋面积
80㎡
户型结构
框架
装修风格
中式
装修方式
全包
装修造价
查看请联系客服万元
设计师
余工
项目经理
周工
装修公司
格堂装饰
完工实景
完工实景
水电全景
水电全景
VR全景
VR全景
设计说明
更多信息
本帖最后由 格堂小宋 于 2017-6-7 16:43 编辑


回复

使用道具 举报

 楼主| 发表于 2017-6-7 17:11:35 | 显示全部楼层
效果图
微信图片_20170607162725.jpg
回复

使用道具 举报

 楼主| 发表于 2017-6-7 17:14:18 | 显示全部楼层
原始结构图
微信图片_20170607162824.jpg
回复 支持 反对

使用道具 举报

 楼主| 发表于 2017-6-7 17:14:41 | 显示全部楼层
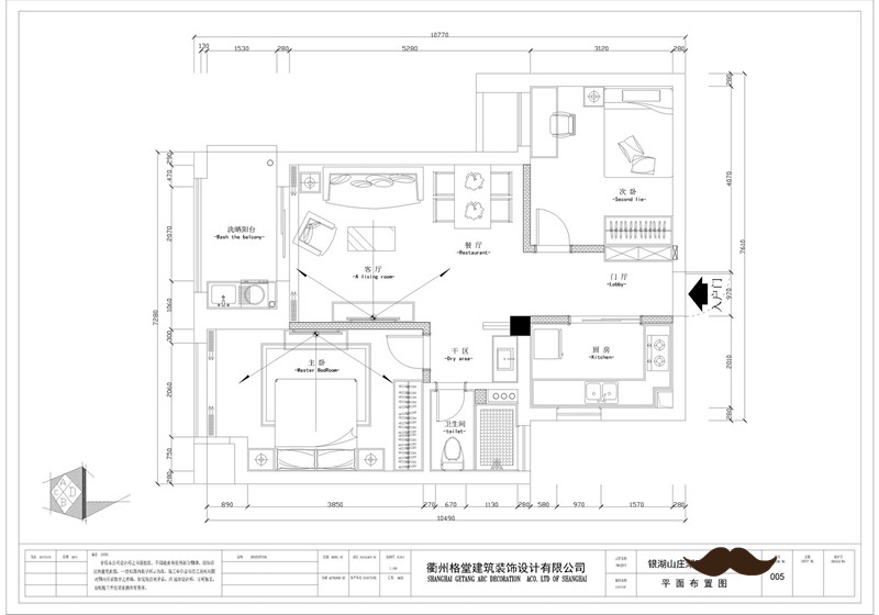
平面布置图
微信图片_20170607162829.jpg
回复 支持 反对

使用道具 举报

 楼主| 发表于 2017-6-7 17:15:00 | 显示全部楼层

回复

使用道具 举报

 楼主| 发表于 2017-6-7 17:15:07 | 显示全部楼层

回复

使用道具 举报

 楼主| 发表于 2017-6-7 17:15:14 | 显示全部楼层

回复

使用道具 举报

 楼主| 发表于 2017-6-11 14:03:31 | 显示全部楼层
远离市区,拥抱大自然,清新的空气!早晨和业主大人一起驱车到这静谧的新家
IMG_3342.JPG
IMG_3344.JPG
IMG_3353.JPG
IMG_3354.JPG
回复 支持 反对

使用道具 举报

 楼主| 发表于 2017-6-11 14:20:18 | 显示全部楼层
物业手续先办起来
IMG_3341.JPG
IMG_3339.JPG
IMG_3340.JPG
回复 支持 反对

使用道具 举报

 楼主| 发表于 2017-6-11 14:21:27 | 显示全部楼层
物业大姐很热情的带我们过去房子里讲解装修须知
IMG_3345.JPG
IMG_3346.JPG
回复 支持 反对

使用道具 举报

您需要登录后才可以回帖 登录 | 立即注册

本版积分规则

全国统一客服电话
0570-8028505

24x7小时免费咨询

  • 官方在线客服

    QQ客服:小西

    点击交谈

    QQ客服:良子

    点击交谈

    QQ客服:闵月

    点击交谈
  • 衢州市柯城区财富中心3号楼2楼

  • 衢州格堂装饰有限公司

  • 扫一扫关注官方微信

    获取一手特惠信息

快速回复 返回顶部 返回列表