• 手机版

    扫码体验手机版

  • 微信公众号

    扫码关注公众号

登录注册
游客您好
第三方账号登陆

[衢州] 【格堂※阳光水岸7※】走进轻奢之路

[复制链接]
发表于 2017-5-21 13:21:34 | 显示全部楼层 |阅读模式

格堂装饰为您全程记录装修全过程!

小区名称
阳光水岸7
房屋面积
122㎡
户型结构
框架
装修风格
美式
装修方式
半包
装修造价
查看请联系客服万元
设计师
毛工
项目经理
余工
装修公司
格堂装饰
完工实景
完工实景
水电全景
水电全景
VR全景
VR全景
设计说明
更多信息

回复

使用道具 举报

 楼主| 发表于 2017-5-21 13:21:57 | 显示全部楼层
本帖最后由 格堂彬彬 于 2017-5-27 14:06 编辑

效果图
IQACQNAUQPQD2JBK3P3XU888_4000x3000.jpg
IQACXJYUQPQD2JBK3P3WG888_4000x3000.jpg

回复 支持 反对

使用道具 举报

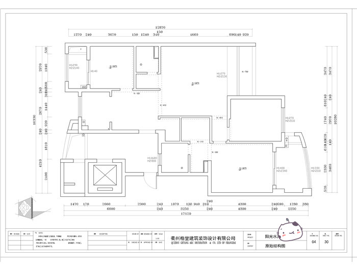
 楼主| 发表于 2017-5-21 13:22:18 | 显示全部楼层
本帖最后由 格堂彬彬 于 2017-5-27 14:06 编辑

原始结构图
-Model.jpg


回复 支持 反对

使用道具 举报

 楼主| 发表于 2017-5-21 13:22:35 | 显示全部楼层
本帖最后由 格堂彬彬 于 2017-5-27 14:07 编辑

平面布置图
阳-Model.jpg

回复 支持 反对

使用道具 举报

 楼主| 发表于 2017-5-21 13:22:53 | 显示全部楼层
...
回复

使用道具 举报

 楼主| 发表于 2017-5-21 13:23:32 | 显示全部楼层
.......
回复

使用道具 举报

 楼主| 发表于 2017-5-21 13:23:49 | 显示全部楼层
.........
回复

使用道具 举报

 楼主| 发表于 2017-5-21 13:24:07 | 显示全部楼层
..
回复

使用道具 举报

 楼主| 发表于 2017-5-21 13:24:24 | 显示全部楼层
..
回复

使用道具 举报

 楼主| 发表于 2017-5-21 13:24:49 | 显示全部楼层
..
回复

使用道具 举报

您需要登录后才可以回帖 登录 | 立即注册

本版积分规则

全国统一客服电话
0570-8028505

24x7小时免费咨询

  • 官方在线客服

    QQ客服:小西

    点击交谈

    QQ客服:良子

    点击交谈

    QQ客服:闵月

    点击交谈
  • 衢州市柯城区财富中心3号楼2楼

  • 衢州格堂装饰有限公司

  • 扫一扫关注官方微信

    获取一手特惠信息

快速回复 返回顶部 返回列表