• 手机版

    扫码体验手机版

  • 微信公众号

    扫码关注公众号

登录注册
游客您好
第三方账号登陆

[衢州] 【格堂**玫瑰园76**】明亮简洁与实用的结合

[复制链接]
发表于 2017-5-9 09:07:21 | 显示全部楼层 |阅读模式

格堂装饰为您全程记录装修全过程!

小区名称
玫瑰园
房屋面积
160㎡
户型结构
复式
装修风格
北欧
装修方式
半包
装修造价
查看请联系客服万元
设计师
王工
项目经理
余工
装修公司
格堂装饰
完工实景
完工实景
水电全景
水电全景
VR全景
VR全景
设计说明
更多信息
本帖最后由 格堂彩霞 于 2017-12-21 11:07 编辑


回复

使用道具 举报

 楼主| 发表于 2017-5-9 14:26:07 | 显示全部楼层
效果图
689922043529753308.jpg
329253309367495361.jpg
185196929301399209.jpg
回复 支持 反对

使用道具 举报

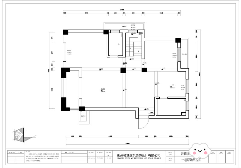
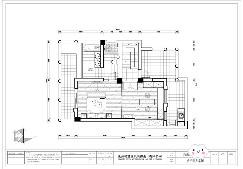
 楼主| 发表于 2017-5-9 14:29:51 | 显示全部楼层
一楼原始结构图
191715754709581971_副本.jpg

二楼原始结构图
687293649356117941_副本.jpg

回复 支持 反对

使用道具 举报

 楼主| 发表于 2017-5-9 14:32:37 | 显示全部楼层
一楼平面布置图
734610807546051405_副本.jpg
二楼平面布置图
418533373601449145_副本.jpg
回复 支持 反对

使用道具 举报

 楼主| 发表于 2017-5-9 14:33:41 | 显示全部楼层
回复

使用道具 举报

 楼主| 发表于 2017-5-9 14:33:58 | 显示全部楼层
回复

使用道具 举报

 楼主| 发表于 2017-5-9 14:34:13 | 显示全部楼层
回复

使用道具 举报

 楼主| 发表于 2017-5-9 14:34:44 | 显示全部楼层
回复

使用道具 举报

 楼主| 发表于 2017-5-9 14:34:59 | 显示全部楼层
回复

使用道具 举报

 楼主| 发表于 2017-5-9 14:35:16 | 显示全部楼层
回复

使用道具 举报

您需要登录后才可以回帖 登录 | 立即注册

本版积分规则

全国统一客服电话
0570-8028505

24x7小时免费咨询

  • 官方在线客服

    QQ客服:小西

    点击交谈

    QQ客服:良子

    点击交谈

    QQ客服:闵月

    点击交谈
  • 衢州市柯城区财富中心3号楼2楼

  • 衢州格堂装饰有限公司

  • 扫一扫关注官方微信

    获取一手特惠信息

快速回复 返回顶部 返回列表