• 手机版

    扫码体验手机版

  • 微信公众号

    扫码关注公众号

登录注册
游客您好
第三方账号登陆

[衢州] 【格堂※月亮湾雅园14※】高层次的创作境界

[复制链接]
发表于 2017-5-1 11:23:18 | 显示全部楼层 |阅读模式

格堂装饰为您全程记录装修全过程!

小区名称
月亮湾雅园14
房屋面积
140㎡
户型结构
框架
装修风格
现代
装修方式
半包
装修造价
查看请联系客服万元
设计师
毛工
项目经理
余工
装修公司
格堂装饰
完工实景
完工实景
水电全景
水电全景
VR全景
VR全景
设计说明
更多信息
本帖最后由 格堂彬彬 于 2017-5-1 11:25 编辑

回复

使用道具 举报

 楼主| 发表于 2017-5-1 11:24:15 | 显示全部楼层
本帖最后由 格堂彬彬 于 2017-5-6 16:13 编辑

效果图
1.jpg
设计说明:现代简约风格强调少即是多,舍弃不必要的装饰元素,追求时尚和现代的简洁造型、愉悦色彩。室内墙面、地面、顶面以及家具陈设乃至灯具器皿等均以简洁的造型、纯洁的质地、精细的工艺为其特征,家具突出强调功能性设计,设计线条简约流畅。以简洁的表现形式来满足人们对空间环境那种感性的、本能的和理性的需求,这就是现代简约风格。


回复 支持 反对

使用道具 举报

 楼主| 发表于 2017-5-1 11:24:33 | 显示全部楼层
本帖最后由 格堂彬彬 于 2017-5-1 14:28 编辑

原始结构图
月亮湾14-3-402原始图.jpg
回复 支持 反对

使用道具 举报

 楼主| 发表于 2017-5-1 11:25:04 | 显示全部楼层
本帖最后由 格堂彬彬 于 2017-5-1 14:29 编辑

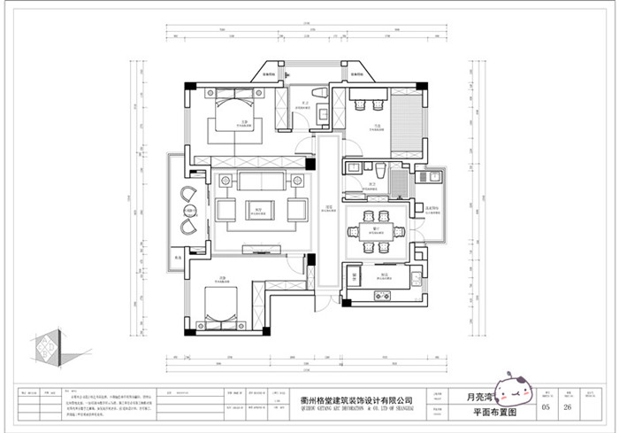
平面布置图
月亮湾14-3-402-平面图.jpg
回复 支持 反对

使用道具 举报

 楼主| 发表于 2017-5-1 11:25:22 | 显示全部楼层
................
回复

使用道具 举报

 楼主| 发表于 2017-5-1 11:26:03 | 显示全部楼层
...........
回复

使用道具 举报

 楼主| 发表于 2017-5-1 11:26:19 | 显示全部楼层
...........
回复

使用道具 举报

 楼主| 发表于 2017-5-1 11:26:55 | 显示全部楼层
.............
回复

使用道具 举报

 楼主| 发表于 2017-5-1 13:36:43 | 显示全部楼层
本帖最后由 格堂彬彬 于 2017-5-1 13:37 编辑

五一是个好日子,设计师项目经理提前来到房子门口等业主,准备开工
IMG20170501093806.jpg
IMG20170501093826.jpg

回复 支持 反对

使用道具 举报

 楼主| 发表于 2017-5-1 13:39:17 | 显示全部楼层
业主吴阿姨来啦,给我们开门
IMG20170501095336.jpg
回复 支持 反对

使用道具 举报

您需要登录后才可以回帖 登录 | 立即注册

本版积分规则

全国统一客服电话
0570-8028505

24x7小时免费咨询

  • 官方在线客服

    QQ客服:小西

    点击交谈

    QQ客服:良子

    点击交谈

    QQ客服:闵月

    点击交谈
  • 衢州市柯城区财富中心3号楼2楼

  • 衢州格堂装饰有限公司

  • 扫一扫关注官方微信

    获取一手特惠信息

快速回复 返回顶部 返回列表