• 手机版

    扫码体验手机版

  • 微信公众号

    扫码关注公众号

登录注册
游客您好
第三方账号登陆

[衢州] 【格堂ゅ≈阳光水岸16#】格调高雅,造型简朴优美的中式

[复制链接]
发表于 2017-4-28 15:34:37 | 显示全部楼层 |阅读模式

格堂装饰为您全程记录装修全过程!

小区名称
阳光水岸
房屋面积
160㎡
户型结构
框架
装修风格
中式
装修方式
半包
装修造价
查看请联系客服万元
设计师
胡工
项目经理
余工
装修公司
格堂装饰
完工实景
完工实景
水电全景
水电全景
VR全景
VR全景
设计说明
更多信息
本帖最后由 格堂小王 于 2017-4-29 16:20 编辑

设计说明:


效果图

微信图片_20170426125919.jpg

微信图片_20170426125910.jpg

回复

使用道具 举报

 楼主| 发表于 2017-4-28 15:35:05 | 显示全部楼层
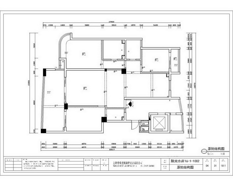
原始结构图


微信图片_20170426130150.jpg

回复 支持 反对

使用道具 举报

 楼主| 发表于 2017-4-28 15:35:29 | 显示全部楼层
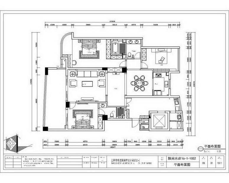
平面布置图

微信图片_20170426130147.jpg
回复 支持 反对

使用道具 举报

 楼主| 发表于 2017-4-28 16:19:58 | 显示全部楼层
朦胧朦胧的小雨,开工感觉也很好哦

DSC06947.JPG

DSC06948.JPG
回复 支持 反对

使用道具 举报

 楼主| 发表于 2017-4-28 16:21:12 | 显示全部楼层
最喜欢姜姐家这个大阳台,江景的

DSC06967.JPG

DSC06969.JPG

DSC06966.JPG

回复 支持 反对

使用道具 举报

 楼主| 发表于 2017-4-28 16:24:06 | 显示全部楼层
门套保护

DSC06975.JPG

DSC06987.JPG
回复 支持 反对

使用道具 举报

 楼主| 发表于 2017-4-28 16:25:36 | 显示全部楼层
简易马桶和下水保护


DSC06973.JPG

DSC06961.JPG
回复 支持 反对

使用道具 举报

 楼主| 发表于 2017-4-28 16:26:07 | 显示全部楼层
厨房煤气表防尘袋,以防施工时的灰尘


DSC06959.JPG
回复 支持 反对

使用道具 举报

 楼主| 发表于 2017-4-28 16:26:54 | 显示全部楼层
开工准备已经备好

DSC06958.JPG
回复 支持 反对

使用道具 举报

 楼主| 发表于 2017-4-28 16:27:48 | 显示全部楼层
拆改放样
DSC06951.JPG

DSC06955.JPG
回复 支持 反对

使用道具 举报

您需要登录后才可以回帖 登录 | 立即注册

本版积分规则

全国统一客服电话
0570-8028505

24x7小时免费咨询

  • 官方在线客服

    QQ客服:小西

    点击交谈

    QQ客服:良子

    点击交谈

    QQ客服:闵月

    点击交谈
  • 衢州市柯城区财富中心3号楼2楼

  • 衢州格堂装饰有限公司

  • 扫一扫关注官方微信

    获取一手特惠信息

快速回复 返回顶部 返回列表