• 手机版

    扫码体验手机版

  • 微信公众号

    扫码关注公众号

登录注册
游客您好
第三方账号登陆

[衢州] 【格堂&月亮湾沁园7#】生活需要格调

[复制链接]
发表于 2017-4-21 13:07:40 | 显示全部楼层 |阅读模式

格堂装饰为您全程记录装修全过程!

小区名称
月亮湾沁园
房屋面积
110㎡
户型结构
套房
装修风格
简美
装修方式
半包
装修造价
查看请联系客服万元
设计师
毛工
项目经理
余工
装修公司
格堂装饰
完工实景
完工实景
水电全景
水电全景
VR全景
VR全景
设计说明
更多信息
本帖最后由 格堂小马 于 2017-6-16 11:12 编辑



回复

使用道具 举报

 楼主| 发表于 2017-4-21 16:32:34 | 显示全部楼层



回复

使用道具 举报

 楼主| 发表于 2017-4-21 16:33:18 | 显示全部楼层



回复

使用道具 举报

 楼主| 发表于 2017-4-21 16:33:49 | 显示全部楼层
本帖最后由 格堂小马 于 2017-5-4 16:04 编辑

客餐厅效果图
601545689853330670.jpg

设计说明
回复 支持 反对

使用道具 举报

 楼主| 发表于 2017-4-21 16:34:27 | 显示全部楼层
本帖最后由 格堂小马 于 2017-5-4 16:13 编辑

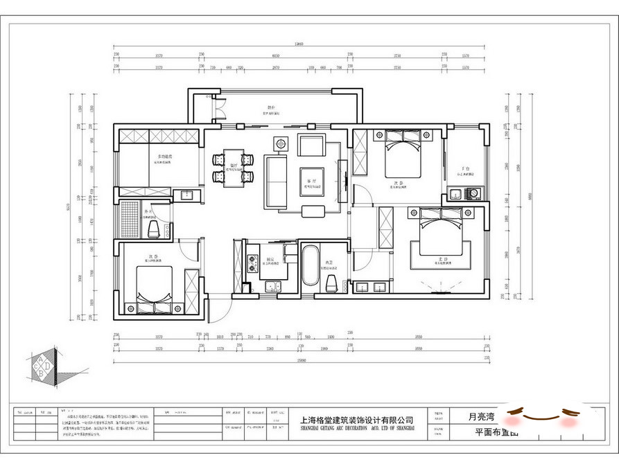
平面布置图
91830541085850686.jpg
原始结构图

502645577089735834.jpg
回复 支持 反对

使用道具 举报

 楼主| 发表于 2017-4-21 17:30:18 | 显示全部楼层

美美的月亮湾我又来开工啦
698650746768672629.jpg
IMG_3695.JPG
回复 支持 反对

使用道具 举报

 楼主| 发表于 2017-4-21 17:32:32 | 显示全部楼层

开工仪式结束啦,开始拆改放样
IMG_2115.JPG
IMG_2116.JPG
IMG_2118.JPG
回复 支持 反对

使用道具 举报

 楼主| 发表于 2017-4-21 17:33:10 | 显示全部楼层

拆改放样
IMG_2122.JPG
IMG_2121.JPG
IMG_2135.JPG
回复 支持 反对

使用道具 举报

 楼主| 发表于 2017-4-21 17:33:47 | 显示全部楼层

物业办理开工手续
IMG_2140.JPG
IMG_2143.JPG
IMG_2142.JPG
回复 支持 反对

使用道具 举报

 楼主| 发表于 2017-4-21 17:34:17 | 显示全部楼层
本帖最后由 格堂小马 于 2017-4-22 18:20 编辑

铲灰
IMG_7883.JPG
铲墙是为了防止墙顶面出现空鼓,
在做好油漆后不会有墙顶面整块油漆脱落的现象。
IMG_7884.JPG
IMG_7885.JPG
回复 支持 反对

使用道具 举报

您需要登录后才可以回帖 登录 | 立即注册

本版积分规则

全国统一客服电话
0570-8028505

24x7小时免费咨询

  • 官方在线客服

    QQ客服:小西

    点击交谈

    QQ客服:良子

    点击交谈

    QQ客服:闵月

    点击交谈
  • 衢州市柯城区财富中心3号楼2楼

  • 衢州格堂装饰有限公司

  • 扫一扫关注官方微信

    获取一手特惠信息

快速回复 返回顶部 返回列表