• 手机版

    扫码体验手机版

  • 微信公众号

    扫码关注公众号

登录注册
游客您好
第三方账号登陆

[衢州] 【格堂#聚龙嘉苑20#】儒雅清蕰之美

[复制链接]
发表于 2017-4-19 17:04:14 | 显示全部楼层 |阅读模式

格堂装饰为您全程记录装修全过程!

小区名称
聚龙嘉苑20幢
房屋面积
270㎡
户型结构
框架
装修风格
中式
装修方式
半包
装修造价
查看请联系客服万元
设计师
余工
项目经理
余工
装修公司
格堂装饰
完工实景
完工实景
水电全景
水电全景
VR全景
VR全景
设计说明
更多信息
本帖最后由 格堂婷婷 于 2017-5-6 10:20 编辑

设计说明:新中式风格充分演绎了中式传统美学的内涵与当前时代背景下人们的审美取向,因而更好地表现了现代家居的美学精神,体现出人们对中式传统事物的理解与追求。
沙发墙是客厅的一个视觉中心,无论如何设计,沙发及墙面的搭配都体现出整体风格与格调,更多的时候,它是一幅画,墙面设计是室内空间里的一张张丰富的表情,它可以呈现很多的表演形式,或沉稳大气,或清新雅致,或展现古典的风情,或含蓄时代的力量,竹影婆裟,光影摇曳,新中式带给人的视觉愉悦难以形容。
本案业主对从传统中式笔墨纸砚字画非常喜欢,更喜欢原木的味道,地面材质不走寻常路,设计用水泥抛光地面保留着最自然的原始味道
,水泥的天然斑驳,有着特别的肌理质感,
让整个空间营造出格外放松、质朴的氛围,电视背景的设计更是集功能与美观一体,茶室里放上一簇中式盆景,靠在飘窗上饮茶看着窗外的田园风光,任由惬意的时光从指间飞过,妙哉!
效果图:

一楼
7753205300862452.jpg

二楼

603130742015527080.jpg
回复

使用道具 举报

 楼主| 发表于 2017-4-19 17:04:32 | 显示全部楼层
本帖最后由 格堂婷婷 于 2017-4-20 13:57 编辑

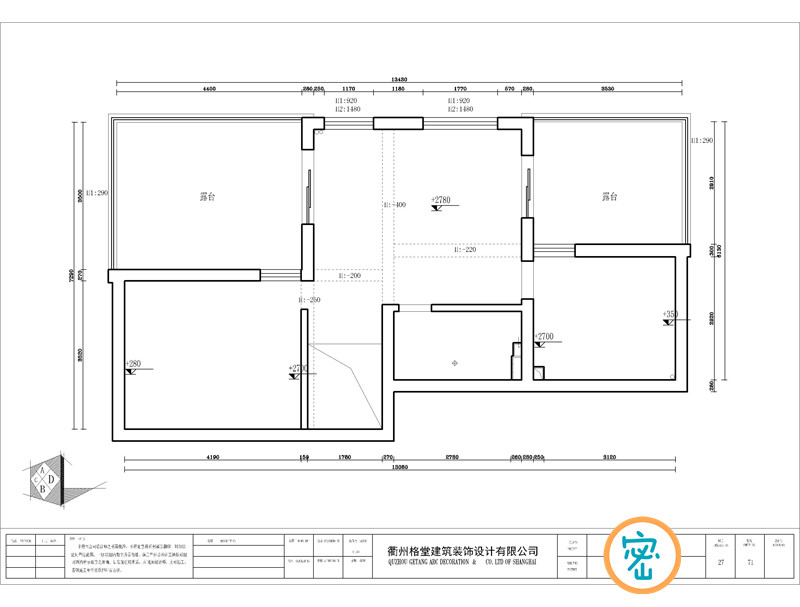
平面结构图:
一楼

13_副本.jpg

二楼

12_副本.jpg

三楼

11_副本.jpg



回复 支持 反对

使用道具 举报

 楼主| 发表于 2017-4-19 17:04:47 | 显示全部楼层
本帖最后由 格堂婷婷 于 2017-4-20 14:01 编辑

平面布置图:
一楼

14.jpg

二楼

16_副本.jpg

三楼

15_副本.jpg


回复 支持 反对

使用道具 举报

 楼主| 发表于 2017-4-19 17:05:02 | 显示全部楼层
本帖最后由 格堂婷婷 于 2017-4-20 14:12 编辑










回复

使用道具 举报

 楼主| 发表于 2017-4-19 17:05:18 | 显示全部楼层

















回复

使用道具 举报

 楼主| 发表于 2017-4-19 17:05:34 | 显示全部楼层

















回复

使用道具 举报

 楼主| 发表于 2017-4-19 17:06:14 | 显示全部楼层
本帖最后由 格堂婷婷 于 2017-4-20 14:13 编辑

4月17号我们开工去咯

IMG_1018.JPG
IMG_0991.JPG


回复 支持 反对

使用道具 举报

 楼主| 发表于 2017-4-19 17:06:27 | 显示全部楼层
本帖最后由 格堂婷婷 于 2017-4-20 14:17 编辑

8:58开工大吉,今天也是业主家的好日子哦,双喜临门
IMG_1003.JPG




回复 支持 反对

使用道具 举报

 楼主| 发表于 2017-4-19 17:06:39 | 显示全部楼层
本帖最后由 格堂婷婷 于 2017-4-20 14:20 编辑

业主大人敲下开工的第一锤
IMG_1012_副本.jpg


回复 支持 反对

使用道具 举报

 楼主| 发表于 2017-4-19 17:07:02 | 显示全部楼层
本帖最后由 格堂婷婷 于 2017-4-20 14:26 编辑

门套,门槛已保护好

IMG_1020_副本.jpg
IMG_1055.JPG

IMG_1054.JPG



回复 支持 反对

使用道具 举报

您需要登录后才可以回帖 登录 | 立即注册

本版积分规则

全国统一客服电话
0570-8028505

24x7小时免费咨询

  • 官方在线客服

    QQ客服:小西

    点击交谈

    QQ客服:良子

    点击交谈

    QQ客服:闵月

    点击交谈
  • 衢州市柯城区财富中心3号楼2楼

  • 衢州格堂装饰有限公司

  • 扫一扫关注官方微信

    获取一手特惠信息

快速回复 返回顶部 返回列表