• 手机版

    扫码体验手机版

  • 微信公众号

    扫码关注公众号

登录注册
游客您好
第三方账号登陆

[衢州] 【格堂&金河湾21#-1】视点不一样触点就不一样

[复制链接]
发表于 2017-4-17 15:29:11 | 显示全部楼层 |阅读模式

格堂装饰为您全程记录装修全过程!

小区名称
金河湾
房屋面积
100㎡
户型结构
套房
装修风格
美式
装修方式
半包
装修造价
查看请联系客服万元
设计师
何工
项目经理
施工
装修公司
格堂装饰
完工实景
完工实景
水电全景
水电全景
VR全景
VR全景
设计说明
更多信息
本帖最后由 格堂彩霞 于 2017-7-5 15:34 编辑



回复

使用道具 举报

 楼主| 发表于 2017-4-17 15:30:33 | 显示全部楼层
本帖最后由 格堂彩霞 于 2017-4-28 09:34 编辑


效果图
金河湾21-1-802.jpg
回复 支持 反对

使用道具 举报

 楼主| 发表于 2017-4-17 16:00:17 | 显示全部楼层
本帖最后由 格堂彩霞 于 2017-4-28 09:40 编辑

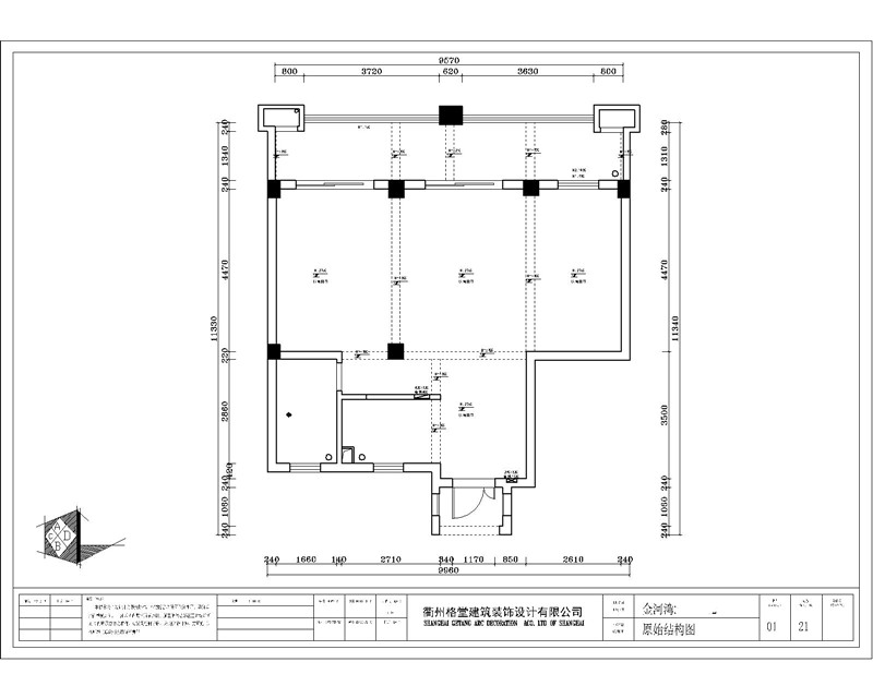
原始结构图
669819393092192606_副本.jpg
平面布置图
653598375574030900_副本.jpg



回复 支持 反对

使用道具 举报

 楼主| 发表于 2017-4-17 16:00:48 | 显示全部楼层



回复

使用道具 举报

 楼主| 发表于 2017-4-17 16:01:12 | 显示全部楼层



回复

使用道具 举报

 楼主| 发表于 2017-4-17 16:02:01 | 显示全部楼层
本帖最后由 格堂小马 于 2017-4-17 16:32 编辑

风和日丽,开工咯
IMG_3570.JPG
IMG_5991.JPG
回复 支持 反对

使用道具 举报

 楼主| 发表于 2017-4-17 16:04:02 | 显示全部楼层
本帖最后由 格堂小马 于 2017-4-17 16:07 编辑

开工准备。门保护起来,以免施工中碰伤门
IMG_3573.JPG
     煤气表防尘袋
IMG_3572.JPG
  喜庆的横幅挂起来
IMG_3578.JPG



回复 支持 反对

使用道具 举报

 楼主| 发表于 2017-4-17 16:11:11 | 显示全部楼层

恭祝业主大人开工大吉
IMG_3585.JPG
回复 支持 反对

使用道具 举报

 楼主| 发表于 2017-4-17 16:11:58 | 显示全部楼层

业主大人豪迈的敲响了开工锤
IMG_3599.JPG
IMG_3600.JPG
回复 支持 反对

使用道具 举报

 楼主| 发表于 2017-4-17 16:12:46 | 显示全部楼层

拆改放样
IMG_3576.JPG
IMG_3601.JPG
IMG_3605.JPG
回复 支持 反对

使用道具 举报

您需要登录后才可以回帖 登录 | 立即注册

本版积分规则

全国统一客服电话
0570-8028505

24x7小时免费咨询

  • 官方在线客服

    QQ客服:小西

    点击交谈

    QQ客服:良子

    点击交谈

    QQ客服:闵月

    点击交谈
  • 衢州市柯城区财富中心3号楼2楼

  • 衢州格堂装饰有限公司

  • 扫一扫关注官方微信

    获取一手特惠信息

快速回复 返回顶部 返回列表